66023 Francavilla al Mare, Province of Chieti, Italy
Residential - Other
Briefing
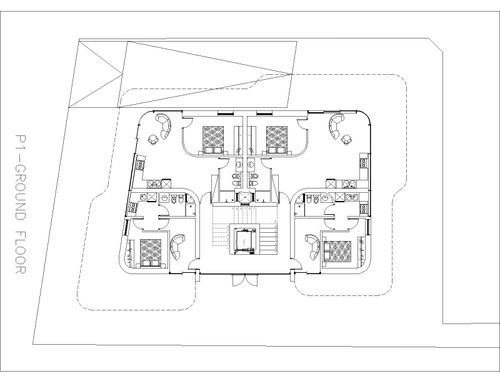
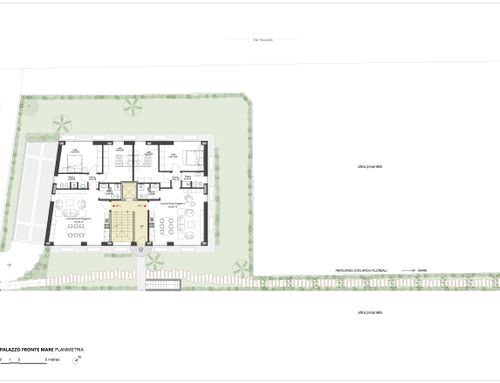
ENG: Demolition of existing building, with reconstruction of a residential building, consisting of 4 two-room units per floor on 3 floors (the top floor is the attic) and the basement used as a garage. The 4 two-room apartments should be designed to be easily marged to create only 2 units per floor. The 2 units on the floor must contain 2 bedrooms (1 double and 1 single bedroom), 2 bathrooms, a living room and a kitchen.
ITA: Demolizione di fabbricato esistente, con ricostruzione di palazzo residenziale, composto da 4 unitĂ bilocali a piano x 3 piani (ultimo piano sottotetto) ed un piano, seminterrato, adibito a garage. I 4 bilocali vanno progettati per essere facilmente uniti nella formazione di sole 2 unitĂ a piano. Le 2 unitĂ a piano devono contenere 2 camere da letto (1 Metrimoniale ed una cameretta), 2 Bagni, sala e cucina.
SPA: Derribo de edificio existente, con reconstrucción de edificio residencial, compuesto por 4 viviendas de dos habitaciones por planta distribuidas en 3 plantas (la planta superior es la buhardilla) y el sótano destinado a garaje. Los 4 apartamentos de dos habitaciones deben diseñarse para que se marquen fácilmente para crear solo 2 unidades por piso. Las 2 unidades en el piso deben contener 2 habitaciones (1 habitación doble y 1 habitación individual), 2 baños, una sala de estar y una cocina.