
Campo nell'Elba, LI, Italia
Residenziale - Villa
Descrizione
ENG:
Hello, I purchased this house which dates back to 1991!
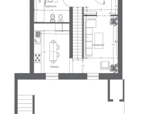
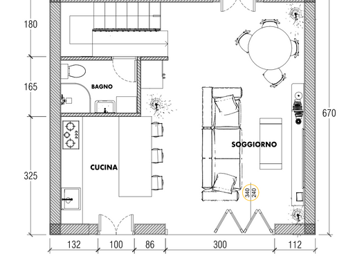
The spaces are poorly divided: the living area is very large, while the kitchen is small with a tiny and practically useless storage room. I would like to have a kitchen with a central island.
Both bathrooms are windowless: one faces the kitchen and the other the stairs. I would like to have at least one bathroom with a window.
The staircase is very steep and the space underneath is unusable because it is open.
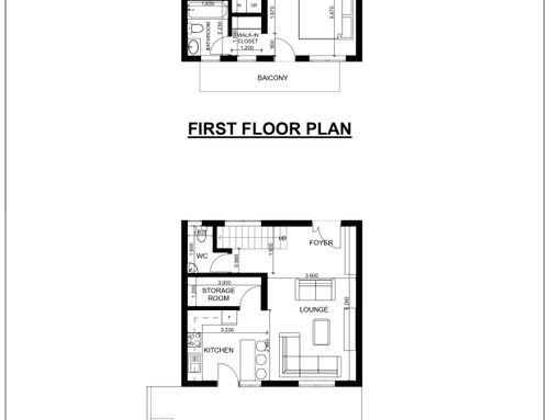
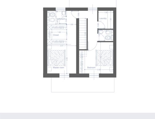
The sleeping area currently consists of 3 bedrooms, but I only need 2, with a walk-in closet in the master bedroom.
The laundry area should be upstairs, as the balconies are very convenient for managing the laundry.
SPA:
¡Hola! He comprado esta casa que es del año 1991.
Los espacios están mal distribuidos: la zona de estar es muy grande, mientras que la cocina es pequeña con un trastero diminuto e inútil de esas dimensiones. Me gustaría tener una cocina con isla central.
Los dos baños son ciegos: uno da a la cocina y el otro a las escaleras. Me gustaría que al menos uno de ellos tuviera ventana.
La escalera es muy empinada y el espacio debajo resulta inutilizable porque está abierto.
La zona de noche actualmente consta de 3 dormitorios, pero solo necesito 2, con un vestidor en el dormitorio principal.
La zona de lavandería la quisiera en la planta superior, ya que los balcones son muy prácticos para la gestión de la colada.
ITA:
Salve ho acquistato questa casa che è dal 1991!
Gli spazi sono divisi male con una zona giorno grandissima, la cucina piccola con ripostiglio minuscolo ed inutile di queste dimensioni. Vorrei una cucina con isola centrale. I bagni sono entrambi ciechi e uno dà sulla cucina mente l'altro sulle scale, vorrei almeno un bagno con finestra.
Le scale sono molto ripide e lo spazio sotto inutilizzabile perché sono aperte.
La zona notte è composta da 3 camere, me ne bastano 2 con una cabina armadio nella stanza padronale. La zona lavanderia vorrei fosse sopra in quanto molto comodi i balconi per la gestione del bucato.
Aggiornamento: è venuto oggi il muratore a vedere la casa, dice che la parete portante si può togliere facendo un 'cerchiaggio', a questo punto l'idea potrebbe essere allargare la scala e farla che gira verso la parte portante come nelle foto che ho messo e spostare il bagno in quello che sarà il sottoscala con accesso dalla cucina?!?!