
Naples, Metropolitan City of Naples, Italy
Residenziale - Appartamento
Descrizione
Project Description
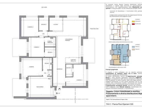
The project involves the division of an existing 188 sqm sea view apartment, 4th and last floor of the building, into two independent units:
Notes: No weight bearing walls, all partitions. Only mind the pillars.
Apartment A: approx. 120 sqm – primary residence
Apartment B: approx. 60 sqm – intended for short- or long-term rental
The property already benefits from two separate entrances, which facilitates the subdivision.
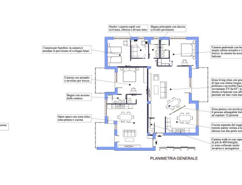
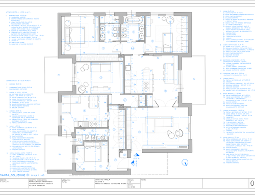
The main focus of the project is Apartment A, which will be my family home, shared with my wife and our 3-year-old daughter. The desired aesthetic is modern industrial design with a minimalist approach, prioritizing functionality, clean lines, natural light, and high-quality materials. A must will be keeping the sea vien in either livinig or kitchen area
Apartment A – Main Residence (approx. 120 sqm)
Required layout:
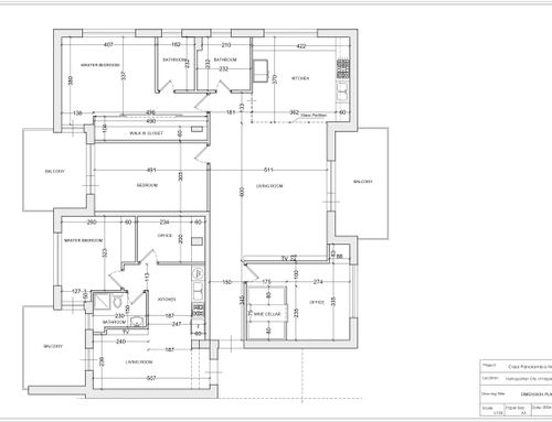
3 bedrooms
1 living room
2 bathrooms
Separate kitchen
2 balconies
Key requirements:
Master bedroom with:
En-suite bathroom
Large walk-in wardrobe
Ideally direct access to one of the balconies
Children’s bedroom
Office / guest bedroom
Main bathroom
Spacious living room with:
Large sofa (potentially with chaise longue)
65” TV
Ideally direct access to a balcony and potentially exposure to sea view side
Kitchen:
Preferably separated from the living room by a glass door or glass partition
Must include at least one large sea-facing window, as it offers a sea view
Wine storage (optional but highly desired):
Small walk-in wine cellar integrated either into the living room or the office or the kitchen
Capacity for approximately 400 bottles
Apartment B – Secondary Unit (approx. 60 sqm)
Designed as an independent apartment suitable for rental purposes.
Required layout:
1 bedroom
1 bathroom
1 kitchen–living area (open space preferred)
1 balcony- 1 master bedroom with (possibly) private bathroom
- 1 kids bedroom
- 1 office/guest room
- 1 main bathroom
- big living room + kitchen maybe separated by glass door
- making sure at least one of the big windows facing north will be in kitchen or in the living as it is sea view
- Potentially creating a small walking wine cellar either in the office or in the living room to hold my wine collection approx 300 bottles
- Apartment B must have a fully equipped bathroom a bedroom and a kitchen/living open space + 1 balcony
SPA:
El proyecto consiste en la división de un apartamento existente de 188 m² con vistas al mar, ubicado en la 4ª y última planta del edificio, en dos unidades independientes.
Notas:
No hay muros de carga, solo tabiques. Es necesario tener en cuenta únicamente los pilares estructurales.
Apartamento A: aprox. 120 m² – vivienda principal
Apartamento B: aprox. 60 m² – destinado a alquiler de corta o larga duración
La propiedad ya dispone de dos accesos independientes, lo que facilita la subdivisión.
El enfoque principal del proyecto es el Apartamento A, que será la vivienda familiar, compartida con mi esposa y nuestra hija de 3 años.
El estilo deseado es industrial moderno, con un enfoque minimalista, priorizando la funcionalidad, las líneas limpias, la luz natural y materiales de alta calidad.
Un requisito imprescindible es mantener la vista al mar desde la zona de estar o la cocina.
Apartamento A – Vivienda Principal (aprox. 120 m²)
Distribución requerida:
3 dormitorios
1 salón
2 baños
Cocina independiente
2 balcones
Requisitos clave:
Dormitorio principal con:
Baño en suite
Amplio vestidor
Idealmente acceso directo a uno de los balcones
Dormitorio infantil
Oficina / dormitorio de invitados
Baño principal
Zona de estar amplia con:
Sofá grande (posiblemente con chaise longue)
Televisor de 65”
Idealmente acceso directo a un balcón y, si es posible, orientación hacia la vista al mar
Cocina:
Preferiblemente separada del salón mediante puerta o tabique de vidrio
Debe contar con al menos una gran ventana orientada al norte, ya que ofrece vistas al mar
Bodega de vinos (opcional pero muy deseada):
Pequeña bodega walk-in integrada en el salón o en la oficina
Capacidad aproximada de 400 botellas
Apartamento B – Unidad Secundaria (aprox. 60 m²)
Diseñado como un apartamento independiente, adecuado para alquiler.
Distribución requerida:
1 dormitorio
1 baño
Zona cocina–salón (preferiblemente en espacio abierto)
1 balcón
Requisitos:
Dormitorio principal (posiblemente con baño privado)
Cocina y salón en open space completamente equipados
Al menos un dormitorio
1 baño completo
1 balcón
ITA:
Il progetto prevede la suddivisione di un appartamento esistente di 188 mq con vista mare, situato al 4° e ultimo piano dell’edificio, in due unità indipendenti.
Note:
Non sono presenti muri portanti, ma solo tramezzi. È necessario prestare attenzione esclusivamente ai pilastri strutturali.
Appartamento A: circa 120 mq – abitazione principale
Appartamento B: circa 60 mq – destinato ad affitto a breve o lungo termine
L’immobile dispone già di due ingressi separati, elemento che facilita la suddivisione.
Il focus principale del progetto è l’Appartamento A, che sarà la casa della mia famiglia, condivisa con mia moglie e nostra figlia di 3 anni.
Lo stile desiderato è moderno industriale, con un approccio minimalista, privilegiando funzionalità, linee pulite, luce naturale e materiali di alta qualità.
Un requisito fondamentale è mantenere la vista mare nella zona living o nella cucina.
Appartamento A – Abitazione Principale (circa 120 mq)
Distribuzione richiesta:
3 camere da letto
1 soggiorno
2 bagni
Cucina separata
2 balconi
Requisiti principali:
Camera padronale con:
Bagno en-suite
Ampia cabina armadio
Idealmente accesso diretto a uno dei balconi
Camera per bambini
Studio / camera ospiti
Bagno principale
Zona living ampia con:
Grande divano (possibilmente con chaise longue)
TV da 65”
Idealmente accesso diretto a un balcone e, se possibile, affaccio sul lato vista mare
Cucina:
Preferibilmente separata dal soggiorno tramite porta o parete vetrata
Deve includere almeno una grande finestra esposta a nord, in quanto offre vista mare
Cantina vini (opzionale ma fortemente desiderata):
Piccola cantina walk-in integrata nel soggiorno o nello studio
Capacità indicativa di circa 400 bottiglie
Appartamento B – Unità Secondaria (circa 60 mq)
Progettato come appartamento indipendente, adatto alla locazione.
Distribuzione richiesta:
1 camera da letto
1 bagno
Zona cucina–living (preferibilmente open space)
1 balcone
Requisiti:
Camera matrimoniale (possibilmente con bagno privato)
Cucina e soggiorno open space completamente attrezzati
Almeno una camera da letto
1 bagno completo
1 balcone