
Novara corso Torino 30
Residential - Apartment
Briefing
https://youtu.be/L26T67V9qTw?si=spujg1XvRNAASR0I
Video esplicativo
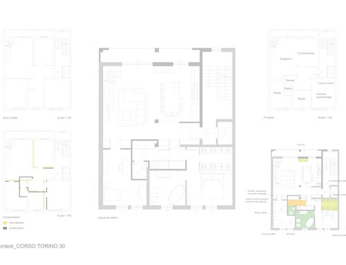
Casa con arredamento stile moderno contemporaneo. La zona del terzo piano è riservata agli ospiti e ai genitori. Il piano superiore è riservato ai tre figli. Serve la progettazione del solo piano inferiore.
Si vuole usare la casa per viverci e accogliere ospiti per pranzi e cene senza che gli ospiti usino spazi privati.
La signora è abile in cucina ma durante le preparazioni vuole essere parte della convivialità quindi cucina e soggiorno stanno nello stesso spazio. Non vengono posti limiti alla progettazione, ogni tipo di demolizione e ricostruzione è presa in esame ma gli interventi devono comunque essere contenuti nei costi. Quindi per quando si sia aperti ad una ristrutturazione completa un occhio ai costi sarà preferito. Gli scarichi sarebbe meglio non allontanarlo troppo dalla posizione attuale.
Per il pavimento verrà posato un laminato e quindi è possibile prevedere tracce a terra.
Negli spazi devono essere inseriti:
- un bagno (anche cieco) per gli ospiti wc e lavandino lavamani
- un bagno padronale con accesso dalla camera matrimoniale con vasca freestanding ovale min 175cm, wc, bidet e lavandino
- uno studio riservato al marito di minimo 9mq che possa accogliere una poltrona/letto singola, un armadio e una scrivania
- una camera matrimoniale con cabina armadio e letto king size,
- cucina con isola (preferita) o penisola dove mangiare in 8 e possibilità con una consolle di raddoppiare i commensali.
- soggiorno zona tv per la famiglia (5 persone)
- in ingresso si necessita uno spazio in muratura o in arredo di buona capienza nel quale i ragazzi possono nascondere scarpe, zaini e giubbotti all'arrivo.
È presente un camino che si vorrebbe tenere rendendolo anche bifrontale.
La proprietà vorrebbe valutare anche uno spazio lavanderia.