
Napoli, NA, Italia
Residential - Apartment
Briefing
ENG:
The renovation concerns only part of the flat because a full refurbishment would require very long timelines and very high costs that we do not intend to undertake at the moment. I have thoroughly studied the needs and the available spaces, and my idea is to keep the bedrooms as they are and intervene only in the living/kitchen/bathrooms area.
In my view, the following works should be carried out:
- Remove the wall between the kitchen and the entrance/living area in order to create continuity between the kitchen and the living room. The wall can be removed completely (leaving about 1 metre in place to keep the two entrances separate), or only partially, while still creating a wide opening between the two areas.
- Remove the partition wall where the TV is currently located.
- Move the existing door (the scenic red/orange/lilac one) back, aligning it with the wall of the first WC.
- Relocate the door to the first bedroom, positioning it behind the scenic door.
- Remove the low wall currently existing between the pillar and the scenic door.
- Remove the existing platform.
- Remove the mid-height wall currently located near the sofa, to enlarge the access to the living area. I am unsure whether to keep the curved low shaping of the pillar or not.
These interventions would create a large open area, making the home more suitable for hosting friends and family.
Regarding the living area, I would like to modify it as follows:
- Remove the existing sofa (I might keep one or both of the existing poufs, possibly reupholstering them).
- Modify and extend the existing low boiserie, continuing it along the wall where the sofa is currently placed.
- Install a TV screen on the wall above the new boiserie.
Where the curved boiserie with the two poufs currently is, place a large curved-shaped sofa and, if space allows, add an armchair beside it. The round coffee table, although very beautiful, is probably too large and should be removed.
Keep the bookcase, but introduce a new dining table and seating. The table could be oval-shaped and extendable, so as to accommodate many people (during some dinners we reach 16/18 people). In this regard, I am not sure whether the boiserie where the current table and Munari’s stocking lamp are located should be removed (the lamp could be placed elsewhere). This would provide more room for the table, which when closed could be positioned lengthwise along the window, and moved/extended lengthwise along the bookcase when hosting more guests.
A very important element of the renovation is the need to create a laundry/storage area.
This space must hold a washing machine and tumble dryer (stacked one on top of the other), a laundry sink, and storage for everything needed for home maintenance (iron and ironing board, brooms, buckets, vacuum cleaner, shoe cabinet, etc.).
The matter of the laundry room is directly linked to the bathrooms: both bathrooms need to be renovated and, if possible, enlarged.
There are therefore two alternatives:
1a) Create the laundry zone in a new location yet to be defined, while renovating the two bathrooms in their current position.
2a) Intervene in the area containing the two bathrooms, the end of the corridor, and part of the third bedroom, removing the walls and creating a laundry and two bathrooms, slightly reducing the size of the third bedroom.
It should also be considered that a small part of the balcony could be used to house the stacked washing machine and dryer.
Some considerations:
The renovation aims to make the home more comfortable and liveable; the kitchen and the new adjacent area should host more spacious units, larger worktops and cooking areas, as well as a table for meals or possibly a peninsula.
I am not sure whether the corridor (which is quite wide) could be used to insert storage elements (custom-made carpentry).
The flat was designed and built in 1968. The chromatic choices and the use of curves, shapes, lines, and design elements—always inspired by soft forms—remain, in my view, very beautiful even after more than 50 years. Designs from the 1960s obviously did not take current trends and needs into account; therefore, I would like the new project not to depart stylistically or chromatically from the current one, while making the flat more comfortable and functional.
I would like to keep some furnishing elements: the bookcase, Munari’s lamp, and the low white arc lamp.
The white wall panel with the applied green disc is actually a projection screen: in the 1960s/70s people used film projectors for home videos; the green disc is attached to the white panel and, when needed, removed to reveal the projection surface. I would like to keep it.
The image of the woman in black on a yellow background is a lightbox. I would remove it and replace it with another beautiful image in my possession.
Flooring: clearly, a new floor must be installed in the kitchen and in the area where the platform currently exists (which I wish to remove). I am unsure whether to keep the parquet in the rest of the home (which would need refinishing). Replacing the entire floor would require long timelines and high costs. I would appreciate a suggestion on the matter, and if the parquet is kept, I wonder how it would look next to the new flooring to be selected.
I emphasise that all plans, sketches, and layout proposals were made by me, and therefore are not professional-grade. Measurements are accurate but not absolutely precise. However, I believe they are sufficient to develop a preliminary project.
Good luck.
SPA;
La intervención afecta solo a una parte del apartamento, porque una reforma completa requeriría tiempos demasiado largos y costes muy elevados que, por el momento, no estamos dispuestos a asumir. He estudiado a fondo las necesidades y los espacios disponibles, y mi idea es dejar los dormitorios tal como están e intervenir únicamente en la zona de salón/cocina/baños.
En mi opinión, deberían realizarse las siguientes obras:
- Eliminar el tabique entre la cocina y la zona de entrada/salón para crear continuidad entre la cocina y el salón. El tabique puede eliminarse completamente (dejando aproximadamente 1 metro para mantener las dos entradas separadas) o solo parcialmente, dejando aún así un amplio paso entre ambas zonas.
- Eliminar el tabique donde actualmente se encuentra la televisión.
- Retrasar la puerta existente (la puerta escenográfica en rojo/naranja/lila) alineándola con la pared del primer aseo.
- Mover la puerta de acceso al primer dormitorio, colocándola detrás de la puerta escenográfica.
- Eliminar el murete bajo que existe entre el pilar y la puerta escenográfica.
- Eliminar la tarima existente.
- Eliminar el murete a media altura que existe cerca del sofá, para ampliar el acceso al salón. Tengo dudas sobre si mantener o no la forma curva de la base del pilar.
Con estas intervenciones se obtendría un espacio muy amplio, haciendo la casa más adecuada para recibir amigos y familiares.
Respecto a la zona de estar, me gustaría modificarla de la siguiente manera:
- Eliminar el sofá existente (quizás conservaría uno o ambos poufs, que podrían tapizarse con otro tejido).
- Modificar y prolongar la boiserie baja existente, haciéndola continuar a lo largo de la pared donde actualmente está el sofá.
- Instalar una pantalla de televisión en la pared sobre la nueva boiserie.
Donde actualmente está la boiserie curva con los dos poufs, colocar un gran sofá de forma curva y, si el espacio lo permite, añadir una butaca al lado. La mesa de centro redonda, por muy bonita que sea, probablemente es demasiado grande y debería eliminarse.
Conservar la librería, pero incorporar una nueva mesa y nuevas sillas. La mesa podría ser ovalada y extensible, para poder acoger a muchas personas (en algunas cenas somos incluso 16/18 personas). En este sentido, no sé si conviene eliminar la boiserie donde está actualmente la mesa y la lámpara de Munari (que podría reubicarse). Esto permitiría más espacio para la mesa, que pudiera colocarse en posición longitudinal hacia la ventana cuando está cerrada, y desplazarse y extenderse longitudinalmente hacia la librería cuando haya más invitados.
Un elemento muy importante de la intervención es la necesidad de crear una zona de lavandería/trastero.
Este espacio deberá contener lavadora y secadora (instaladas en columna), un fregadero de lavado, y espacio para guardar todo lo necesario para el mantenimiento del hogar (plancha y tabla de planchar, escobas, cubos, aspiradora, zapatero, etc.).
La creación de la lavandería está estrechamente relacionada con la cuestión de los baños: ambos baños deben renovarse y, si es posible, ampliarse.
Existen por lo tanto dos alternativas:
1a) Crear la lavandería en un nuevo espacio por determinar, y renovar los baños manteniéndolos en su posición actual.
2a) Intervenir en la zona de los dos baños, el tramo final del pasillo y parte del tercer dormitorio, eliminando los tabiques y creando la lavandería y dos baños, reduciendo ligeramente el tamaño del tercer dormitorio.
También debe considerarse que podría usarse una pequeña parte del balcón para ubicar la lavadora y secadora en columna.
Algunas consideraciones:
La intervención pretende hacer la casa más cómoda y habitable; la cocina y la nueva zona adyacente deberán albergar muebles más espaciosos, encimeras y zonas de cocción más amplias, así como una mesa para comidas o incluso una posible península.
No sé si el pasillo (bastante amplio) puede utilizarse para integrar elementos de almacenaje (realizados a medida en carpintería).
El apartamento fue diseñado y construido en 1968. Las elecciones cromáticas y el uso de formas, curvas, líneas y elementos de diseño inspirados en las geometrías suaves siguen siendo, en mi opinión, muy bellos incluso después de más de 50 años. Los proyectos de los años 60 obviamente no tenían en cuenta las tendencias actuales ni las necesidades contemporáneas; por ello, me gustaría que el nuevo proyecto no se alejara cromática ni estilísticamente del actual, pero que hiciera el apartamento más cómodo y funcional.
Me gustaría mantener algunos elementos del mobiliario: la librería, la lámpara de Munari y la lámpara de arco blanca baja.
El panel de pared blanco con el disco verde aplicado es, en realidad, una pantalla de proyección: en los años 60/70 se usaban proyectores domésticos; el disco verde se engancha al panel blanco y se retira cuando se necesita la superficie de proyección. Me gustaría conservarlo.
La imagen de la mujer de negro sobre fondo amarillo es una caja de luz. La eliminaría para sustituirla por otra imagen muy bonita que tengo.
El suelo: evidentemente, en la cocina y en la zona donde actualmente está la tarima (que quiero eliminar) debe colocarse un suelo nuevo. No sé si en el resto de la casa convendría mantener el parquet (que debería ser renovado). Sustituir todo el suelo implicaría tiempos y costes elevados. Agradecería un consejo al respecto y, en caso de mantener el parquet, me pregunto cómo quedaría junto al nuevo pavimento que se elija.
Quisiera destacar que todos los planos, croquis e hipótesis han sido realizados por mí, por lo que no tienen calidad profesional. Las medidas son precisas pero no exactísimas. No obstante, creo que son suficientes para elaborar un proyecto preliminar.
Buen trabajo.
ITA:
L'intervento riguarda solo parte dell'appartamento perché una ristrutturazione totale richiederebbe tempi troppo lunghi e costi molto elevati che al momento non intendiamo sostenere. Ho studiato a fondo le necessità e gli spazi a disposizione e l'idea che mi sono fatto è quella di lasciare le camere da letto così come sono, e intervenire solo sulla zona living/cucina/bagni.
Gli interventi che, a mio avviso, andrebbero fatti sono i seguenti:
1) eliminare la parete tra la cucina e la zona ingresso/living in modo da creare una continuità tra cucina e living. La parete può essere eliminata completamente (lasciandone comunque circa mt.1 per tenere i due ingressi separati), oppure solo in parte ma lasciando comunque un ampio varco tra le due zone.
2) eliminare il tramezzo dove attualmente esiste la TV
3) arretrare la porta esistente (quella scenografica in rosso/arancio/lilla) ed allinearla alla parete del primo WC.
4) spostare la porta di accesso alla prima camera da letto, posizionandola dietro la porta scenografica
5) eliminare il muretto basso attualmente esistente tra il pilastro e la porta scenografica.
6) eliminare la pedana esistente
7) eliminare il muretto a media altezza attualmente esistente vicino al divano, in modo da ampliare l'accesso alla zona living. Ho dei dubbi se lasciare o meno la sagomatura bassa curva del pilastro.
Con questi interventi si otterrebbe una zona molto ampia a disposizione per rendere la casa più adatta ad ospitare amici e parenti.
Per quanto riguarda la zona living, vorrei modificarla come segue:
1) eliminare il divano attualmente esistente (forse terrei uno o entrambi i pouf esistenti che potrebbero essere rivestiti con altro tessuto).
2) modificare e prolungare la boiserie bassa esistente, facendola proseguire lungo la parete dove attualmente esiste il divano
3) sulla parete sopra la nuova boiserie andrebbe installato uno schermo TV
4) dove attualmente esiste la boiserie curva con i due pouf, posizionare un grande divano a sagoma curva e di lato, se lo spazio lo consente, inserire una poltroncina. Il tavolo basso tondo, per quanto sia molto bello, forse è troppo grande e andrebbe eliminato.
5) lascerei la libreria, ma inserirei un nuovo tavolo e nuove sedute. Il tavolo potrebbe essere di sagoma ovale e anche allungabile, in modo da poter ospitare molte persone (in alcune cene siamo anche 16/18 persone). A tal proposito non so se sia il caso di eliminare la boiserie dove attualmente esiste il tavolo e la lampada a calza di Munari (che potrebbe essere spostata altrove). In questo caso ci sarebbe più spazio per il tavolo che potrebbe essere posizionato longitudinalmente alla finestra quando chiuso, e verrebbe spostato ed allungato longitudinalmente alla libreria quando ci sono più ospiti.
Un elemento importantissimo che riguarda l'intervento è la necessità di creare una zona lavanderia/ripostiglio.
Questo spazio dovrà contenere lavatrice e asciugatrice (installate a colonna una sull'altra, un lavatoio, e lo spazio per riporre tutto ciò che è necessario per manutenere un appartamento (ferro e tavolo da stiro, scope, secchi, aspirapolvere, scarpiera, ecc.ecc.).
Il punto relativo alla realizzazione della lavanderia è strettamente legato alla questione bagni: i due bagni vanno ristrutturati e, se possibile, allargati.
Pertanto esistono due alternative:
1a) si sceglie di creare la zona lavanderia realizzando un nuovo spazio in una posizione da individuare, e i bagni vengono ristrutturati lasciandoli nella posizione attuale
2a) si interviene sulla zona dei due bagni, della parte finale del corridoio e di parte della terza camera da letto, eliminando le pareti e creando lavanderia e due bagni, rimpicciolendo un po la terza camera da letto.
Al riguardo va considerato che potrebbe essere utilizzata una piccola parte del balcone per alloggiare lavatrice e asciugatrice a colonna.
Alcune considerazioni:
l'intervento da realizzare vuole rendere la casa più comoda e vivibile; la cucina e la nuova zona adiacente dovranno ospitare mobili più capienti, piani di lavoro e di cottura più ampi, tavolo per il pranzo o la cena, o anche eventuale penisola.
Non so se il corridoio (piuttosto ampio) può essere utilizzato per inserire elementi contenitori (da realizzare su misura in falegnameria)
L'appartamento è stato progettato e realizzato nel 1968. Le scelte cromatiche e l'utilizzo di forme, sagome, segni ed elementi di design sempre ispirati alle curve, dopo più di 50 anni restano a mio avviso molto belli. I progetti degli anni 60 ovviamente non tenevano conto delle nuove tendenze e delle attuali necessità; vorrei quindi che il nuovo progetto non si distacchi cromaticamente e stilisticamente da quello attuale, me renda l'appartamento più comodo e fruibile.
Vorrei mantenere alcuni elementi di arredo: la libreria, la lampada di Munari, la lampada ad arco bianca bassa
Il pannello a parete bianco con il disco verde applicato è, in realtà, uno schermo per proiezioni: negli anni 60/70 si usavano i filmini da riprodurre con il proiettore: il disco verde è agganciato sul pannello bianco e, all'occorrenza, veniva rimosso per lasciare solo lo schermo su cui proiettare i filmini. Mi piacerebbe lasciarlo
L'immagine della donna in nero su fondo giallo è un cassonetto luminoso. Lo eliminerei per sostituirlo con un'altra immagine molto bella in mio possesso.
Il pavimento: chiaramente in cucina e nella zona dove attualmente esiste la pedana (che vorrei eliminare) va posizionato un nuovo pavimento. Non so se nella restante parte della casa lasciare il parquet (che andrebbe rigenerato). Chiaramente sostituire tutto il pavimento richiede tempi e costi elevati. Al riguardo vorrei un suggerimento, e nel caso si scelga di tenere il parquet, mi domando come risulterebbero vicino il parquet e il nuovo pavimento da scegliere.
Allego:
1) foto attuali dell'appartamento
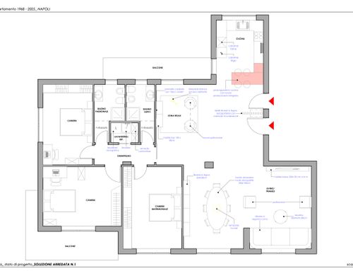
2) pianta attuale dell'appartamento completo di arredi
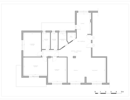
3) pianta dell'appartamento vuoto
4) pianta con alcune modifiche da me apportate
5) pianta con una mia ipotesi parziale di allestimento
6) schizzo con evidenziati gli interventi da fare
Ci tengo a sottolineare che tutte le piante e gli schizzi e le ipotesi sono state fatte da me, e quindi non hanno una qualità professionale. Anche le misure sono precise ma non sono precisissime. Tuttavia credo che siano sufficienti per elaborare un progetto di massima
Buon lavoro