
Lipari, ME, Italia
Residential - Villa
Briefing
ENG:
Villa CATENESI Renovation
1. Outdoor Areas
Built-in Outdoor Kitchen
Construction of a built-in masonry outdoor kitchen.
Evaluate two layout options:
Option A: Keep the current location.
Option B: Move it facing the volcano, in the area where the foosball table is currently located. Include a central island with countertop and/or social seating area.
Dining Area and Seating
Rebuild the masonry dining table.
Complete renovation of:
Outdoor flooring in Lecce stone color or traditional azulejos (blue/light blue/white tones),
Built-in masonry bench integrated into the dining area,
Corner masonry sofa between the column at the back.
3. Upper Floor
Bedroom / Independent Unit
Renovation of the small bedroom on the upper floor including:
Independent entrance door,
Sleeping area with beds/bench (IKEA-style solution) + small table with chairs + sofa bed, storage wardrobe, and a curtain/stage-style drape covering the large half-moon window.
Option:
Keep the existing green flooring and develop a green/ochre interior concept,
Or replace the flooring with light tones such as Lecce stone.
4. Lower Floor
Bathroom
Expand the existing bathroom, remove the bidet and install a shower.
Functional redistribution of interior spaces.
Living / Sleeping Area
Reorganize the room to create:
A living corner with sofa bed,
A separate sleeping area.
Evaluate two alternative solutions:
Open space with integrated functions,
Separation using a dividing bookshelf or lightweight element (not masonry), such as wooden slats or shelving.
Overall Functionality & Separate Rental
Evaluate the design feasibility of making:
The upper and lower floors rentable separately.
Outdoor Living Area
Design a built-in masonry sofa including:
Internal storage compartment,
Dedicated space to store cushions and textiles at the end of the season.
Outdoor Lighting
Complete lighting design study including:
Functional lighting (kitchen, table, pathways),
Ambient lighting (living area and patio).
Include integrated lighting points within walls and porticos.
2. New Entrance Portico
Construction of a new entrance portico with flooring and a reed-style canopy roof (not masonry).
The portico should:
Serve the upper-floor bedroom,
Create a dedicated and independent outdoor patio for the upstairs unit.
Evaluate roof design, views, and privacy in relation to the rest of the house.
Rear of the House
Renovation including:
New flooring,
Relaxation corner,
Small jacuzzi,
Laundry area with concealed clothesline (simple hidden wire solution).
There is significant outdoor space and the idea is to:
Create an independent sun/relaxation area + jacuzzi.
Create a shared pool/relaxation area serving three villas I own (see attached overall park view).
The area is located on the East side of the property, with a visible volcano.
The idea is that the relaxation area should enjoy a direct view of the volcano.
SPA:
Villa CATENESI – Reforma
1. Espacios Exteriores
Cocina exterior de obra
Construcción de cocina exterior de obra.
Evaluar dos opciones de ubicación:
Opción A: Mantener la posición actual.
Opción B: Trasladarla frente al volcán, en el área donde actualmente está el futbolín. Prever una isla central con encimera y/o zona social.
Zona comedor y asientos
Reconstrucción de mesa de obra.
Reforma completa de:
Pavimento exterior color piedra de Lecce o azulejos tradicionales (tonos azul/azul claro/blanco),
Banco de obra integrado en el área de comedor,
Sofá esquinero de obra entre la columna del fondo.
3. Planta Superior
Habitación / Unidad independiente
Reorganización de la habitación en la planta superior con:
Puerta de acceso independiente,
Zona de descanso con camas/banco tipo solución IKEA + mesita con sillas + sofá cama, armario contenedor y una cortina tipo teatro que cubra la gran ventana en forma de media luna.
Opción:
Mantener el pavimento verde y desarrollar un concepto decorativo verde/ocre,
O cambiar el pavimento por tonos claros tipo piedra de Lecce.
4. Planta Inferior
Baño
Ampliación del baño existente, eliminar el bidé e instalar ducha.
Redistribución funcional de los espacios interiores.
Zona día / noche
Reorganización del espacio para obtener:
Rincón living con sofá cama,
Zona de cama separada.
Evaluar dos soluciones alternativas:
Espacio abierto con funciones integradas,
Separación mediante estantería divisoria o elemento ligero (no de obra), como librería o listones de madera.
Funcionalidad General y Alquiler Independiente
Evaluar la posibilidad de que:
Planta superior y planta inferior puedan alquilarse por separado.
Zona Living Exterior
Diseñar sofá de obra con:
Compartimento interior de almacenamiento,
Espacio específico para guardar cojines y textiles al final de la temporada.
Iluminación exterior
Estudio completo de iluminación:
Funcional (cocina, mesa, recorridos),
Ambiental (zona living y patio).
Prever puntos de luz integrados en muros y porches.
2. Nuevo Porche de Entrada
Construcción de nuevo porche en la entrada principal con pavimento y cubierta de cañizo (no de obra).
El porche deberá:
Servir a la habitación de la planta superior,
Crear un patio exterior dedicado e independiente para la habitación superior.
Evaluar cubierta, vistas y privacidad respecto al resto de la vivienda.
Parte Trasera de la Casa
Reorganización con:
Nuevo pavimento,
Rincón relax,
Pequeño jacuzzi,
Zona lavandería con tendedero oculto (simple cable disimulado).
Existe mucho espacio exterior y la idea es:
Crear una zona independiente de relax/sol + jacuzzi.
Crear un espacio piscina/zona relax compartido para tres villas de mi propiedad (vista general del parque adjunta).
El área está ubicada al Este del terreno, con un volcán visible.
La idea es que desde la zona relax se tenga vista directa al volcán.
ITA:
Villa CATENESI ristrutturazione.
!!!! INTEGRAZIONE PER AREA ESTERNA.!!!! (3° render)
Il progetto deve prevedere la valorizzazione delle aree esterne, mantenendo una coerenza estetica mediterranea e garantendo il massimo orientamento visivo verso il Vulcano.
1. Area Privata (Retrostante l’Abitazione)
Uno spazio dedicato al relax esclusivo e ai servizi funzionali della casa:
-zona Wellness & Sun: area relax con solarium (prendisole) e predisposizione per una vasca idromassaggio (Jacuzzi).
-Zona Servizi: Area lavanderia integrata in modo discreto nel design esterno con stendi biancheria
2. Area Comune (Social & Sport)
Un’area condivisa con le altre due unità della proprietà, concepita come fulcro della vita sociale.
-Piscina Infinity: Dimensioni 12 x 6 metri, posizionata in modo da offrire una vista panoramica diretta sul Vulcano.
-Porticato Attrezzato: Un grande patio ombreggiato destinato a diverse attività:
Area Lounge: Zona conversazione con divani e poltrone.
Area Gaming: Spazio dedicato per calcio balilla e tavolo da ping pong.
Angolo Barbecue: Cucina esterna con tavolo da pranzo conviviale.
Zona Fitness: Piccola area dedicata all'allenamento, completa di tapis roulant e cyclette.
-------
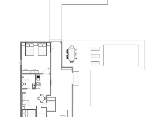
1. PORTICATO ESTERNO annesso all'abitazione
Cucina esterna in muratura
Realizzazione di cucina esterna in muratura.
Valutare due opzioni di posizionamento:
Opzione A: mantenere la posizione attuale.
Opzione B: spostarla fronte vulcano, nell’area dove attualmente è presente il calcio balilla. prevedere isola centrale con piano di lavoro e/o area conviviale.
Area pranzo e sedute
Rifacimento tavolo in muratura.
Rifacimento completo di:
pavimentazione esterna colore pietra leccese o azulejos tipico colori (blu/azzurro/bianco),
panca in muratura integrata all’area pranzo.
Divano in muratura angolare tra la colonna in fondo
2. PIANO SUPERIORE INDOOR
Camera / unità indipendente
Sistemazione della cameretta al piano superiore con:
porta di accesso indipendente,
zona notte con letti/panca tipo soluzione ikea + tavolino con sedie + divano letto, armadio contenitore, una bella tenda/teatro che copre la grande finestra a mezza luna.
Opzione: mantenere pavimentazione verde quindi un idea arredo sul verde ocra oppure cambiare pavimentazione con colori chiari tipo pietra leccese
3. PIANO INFERIORE INDOOR
Bagno. togli bidet e metti doccia
Ridistribuzione funzionale degli spazi interni.
Zona giorno / notte
Riorganizzazione della stanza per ottenere:
angolo living con divano letto MATRIMONIALE,
zona letto separata.
Valutare due soluzioni alternative:
open space con funzioni integrate,
separazione tramite libreria divisoria o elemento leggero non in muratura magari libreria o tasselli in legno
Funzionalità complessiva e affitto separato
Valutare progettualmente la possibilità che:
piano superiore e piano inferiore siano affittabili separatamente.
Il piano inferiore utilizzerà la cuicna esterna del patio esterno.
Il piano superiore utilizzerà la cucina presente all interno.
Zona living outdoor
Progettare divano in muratura con:
vano interno contenitore,
spazio dedicato per riporre cuscini e tessili a fine stagione.
Illuminazione esterna
Studio completo dell’illuminazione:
funzionale (cucina, tavolo, percorsi),
d’atmosfera (zona living e patio).
Prevedere punti luce integrati in murature e porticati.
2. Nuovo porticato di ingresso pavimento e copertura con incannucciata (non muratura)
Realizzazione di nuovo porticato all’ingresso principale.
Il porticato dovrà:
servire la stanzetta al piano superiore,
creare un patio outdoor dedicato e indipendente per la stanza sopra.
Valutare copertura, affacci e privacy rispetto al resto della casa.