
Rome, Metropolitan City of Rome Capital, Italy
Residential - Apartment
Briefing
ENG:
The apartment for sale is located in Rome, in the Aurelio district and more precisely in via Nostra Signora di Lourdes, inside a condominium with concierge service made up of four villas with nine units each, distributed over four floors in total.
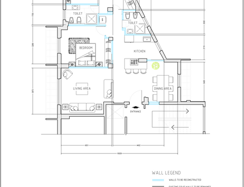
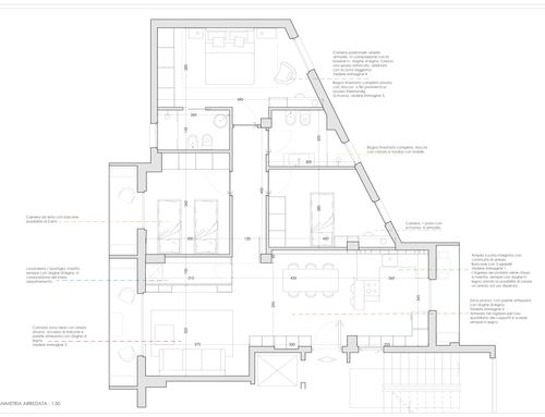
The property is located on the first floor of villa D and has a double entrance, a kitchen with balcony, an adjacent bathroom and utility room, a living room, two double bedrooms and a second bathroom.
The other two balconies serve the living room and the first of the two bedrooms respectively.
The property includes a relevant cellar, located in the basement of the building.
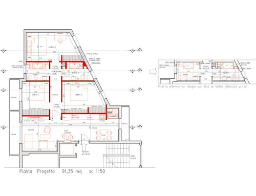
Despite the now dated classic-elegant style and, therefore, the need to modernize the finishes and equipment of the apartment, what emerges above all is the need to recover spaces and optimize the internal distribution.
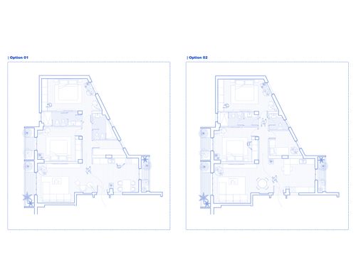
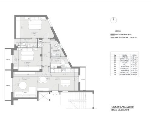
The presence of the double entrance clashes with the overall consistency and does not represent an advantage, given that the concept of workers of the past is missing. The area of the house that was originally intended for service staff today represents a great opportunity to gain square meters to be used for a different use (enlarging the second bathroom, for example).
At the same time, enlarging that space to create a third bedroom (probably thinking of an equally equipped but open kitchen) is an interesting hypothesis, especially with a view to purchasing the apartment for investment use.
A property that has potential and which, belonging to one of the most elegant contexts in the surrounding area, certainly deserves further investigation.
SPA:
El apartamento en venta está ubicado en Roma, en el barrio de Aurelio y más precisamente en via Nostra Signora di Lourdes, dentro de un condominio con servicio de conserjería compuesto por cuatro villas de nueve unidades cada una, distribuidas en cuatro plantas en total.
La propiedad está ubicada en el primer piso de la villa D y tiene una doble entrada, una cocina con balcón, un baño y lavadero adyacentes, una sala de estar, dos dormitorios dobles y un segundo baño.
Los otros dos balcones dan servicio al salón y al primero de los dos dormitorios respectivamente.
La propiedad incluye una relevante bodega, ubicada en el sótano del edificio.
A pesar del estilo clásico-elegante ya anticuado y, por tanto, de la necesidad de modernizar los acabados y equipamientos del apartamento, lo que surge sobre todo es la necesidad de recuperar espacios y optimizar la distribución interna.
La presencia de la doble entrada choca con la coherencia general y no representa una ventaja, dado que falta el concepto de trabajadores del pasado. La zona de la vivienda que originalmente estaba destinada al personal de servicio hoy representa una gran oportunidad de ganar metros cuadrados para destinarlo a un uso diferente (ampliar el segundo baño, por ejemplo).
Al mismo tiempo, ampliar ese espacio para crear un tercer dormitorio (probablemente pensando en una cocina igualmente equipada pero abierta) es una hipótesis interesante, especialmente de cara a la compra del apartamento para uso de inversión.
Una propiedad que tiene potencial y que, al pertenecer a uno de los contextos más elegantes de los alrededores, sin duda merece una mayor investigación.
ITA:
L’appartamento in vendita si trova a Roma, nel quartiere Aurelio e più precisamente in via Nostra Signora di Lourdes, all’interno di un condominio con servizio di portineria composto da quattro villini da nove unità ciascuno, distribuiti su quattro piani totali.
L’immobile è posto al primo piano del villino D e dispone di un doppio ingresso, una cucina abitabile con balcone, un bagno e uno stanzino di servizio adiacenti, un soggiorno, due camere matrimoniali e un secondo bagno.
Gli altri due balconi sono rispettivamente a servizio del soggiorno e della prima delle due camere da letto.
Completa la proprietà una cantina di pertinenza, posta al piano seminterrato dello stabile.
Al netto dello stile classico-signorile oramai datato e, quindi, della necessità di ammodernare le finiture e le dotazioni dell'appartamento, emerge soprattutto il bisogno di recuperare spazi ed ottimizzare la distribuzione interna.
La presenza del doppio ingresso stride con la consistenza globale e non rappresenta, venendo a mancare il concetto di maestranza di una volta, un vantaggio. La zona della casa che originariamente era destinata al personale di servizio, oggi rappresenta una grande opportunità per guadagnare metri quadrati da adibire ad un uso diverso (ingrandire il secondo bagno, per esempio).
Allo stesso tempo, ingrandire quello spazio per ricavare una terza camera (probabilmente pensando ad una cucina ugualmente attrezzata ma a vista) è un'ipotesi interessante, soprattutto nell'ottica di acquistare l'appartamento ad uso investimento.
Un immobile che ha del potenziale e che, appartenendo ad uno dei contesti più signorili del circondario, merita certamente un approfondimento.