
Cagliari, Metropolitan City of Cagliari, Italy
Residential - Sleaping Area
Briefing
ENG; ITA BELOW
Brief, video, and other documents available here:
https://drive.google.com/drive/folders/10JA69w-LdvbWo4o6H_EizWiD_gCQQdsa?usp=drive_link
PROJECT BRIEF: 4th Floor Apartment Renovation
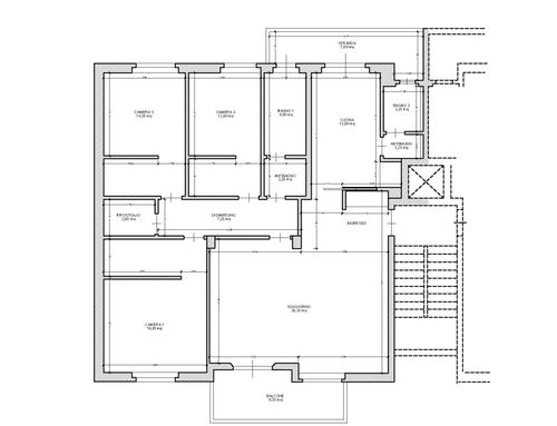
1. CONTEXT AND EXISTING CONDITIONS
Household: Family of four (2 adults, 2 children aged 9 and 14).
Location: 4th floor apartment with a south-facing balcony (excellent natural sunlight).
Current Layout:
Entrance hall
Large living room
Eat-in kitchen
3 bedrooms
1 main bathroom (with window opening onto an enclosed balcony)
1 storage room (at the end of the corridor)
1 external laundry/service room (accessible only from the balcony)
1 open balcony
1 enclosed balcony (aluminum/glass veranda)
2. OBJECTIVES AND REQUIREMENTS
A. Bathrooms and Laundry Reorganization
Second Bathroom – Internalization:
Convert the existing external service/laundry room into the apartment’s second bathroom.
Main challenge: create an internal access (from the entrance/kitchen area) in compliance with Italian regulations (mandatory anteroom/“antibagno”) and existing structural columns, without compromising the kitchen’s aesthetics.
Main Bathroom and Vanity Area:
If space allows, create a “vanity area” (washbasin/filter zone) preceding the sanitary area, suitable for guest use.
Balcony Access:
Replace the current bathroom window with a French door to allow direct access to the enclosed balcony (veranda).
New Laundry Area:
Relocate the washing machine and dryer to the enclosed balcony (legally approved veranda), reorganizing the space already housing the boiler and heat pumps.
B. Living Area (Entrance, Kitchen, Living Room)
Kitchen:
Design the main working area (cooktop, countertop, sink) beneath a full-width window.
Flexible Living Room:
Partially open the living room toward the entrance and kitchen to enhance daylight and visual continuity, while maintaining the option for full closure (e.g., sliding doors).
Provide for a large built-in wardrobe/closet in the entrance area.
Day/Night Separation:
Create a clear separation between living and sleeping areas by installing a door along the corridor.
C. Bedrooms and Storage
Walk-in Closets:
Create walk-in closets in all three bedrooms.
Master Bedroom:
The walk-in closet must include plumbing rough-ins (water supply and drainage) to allow future conversion into an en-suite bathroom.
Partition Constraints:
Existing bedroom partitions are not to be modified, except where strictly necessary to create the walk-in closets.
3. TECHNICAL AND SYSTEM CONSTRAINTS (MANDATORY)
Drainage Reliability:
The current WC drain stacks must remain in their existing positions. Any relocation that could compromise proper slopes or require lifting pumps is not permitted.
Structure:
The design must integrate the structural columns embedded in the walls of the entrance/kitchen area (as per existing floor plans).
Regulations:
Both bathrooms must be equipped with a bidet.
Legal Status of the Veranda:
The enclosed balcony is legally approved as habitable space, allowing the permanent relocation of the laundry area.
4. PROVISION FOR FUTURE SUBDIVISION
The current renovation must be designed as a preparatory step for a future subdivision of the apartment into two independent units (already planned by the ownership).
Within this perspective, the conversion of the main bathroom window into a French door and the strategic configuration of the entrance areas are binding design elements, intended to facilitate the future separation in a subsequent phase.
ITA
BRIEF DI PROGETTO: Ristrutturazione Appartamento 4° Piano
1. CONTESTO E STATO ATTUALE
Nucleo Famigliare: Famiglia di 4 persone (2 adulti, 2 figli di 9 e 14 anni).
Ubicazione: 4° piano, con balcone esposto a Sud (ottimo irraggiamento naturale).
Distribuzione Attuale: Ingresso, ampio salone, cucina abitabile, 3 camere da letto, 1 bagno principale (finestrato su balcone chiuso), 1 ripostiglio (fondo corridoio), 1 locale lavanderia esterno (accessibile solo dal balcone), 1 balcone aperto e 1 balcone chiuso (veranda in alluminio/vetro).
2. OBIETTIVI E NECESSITÀ
A. Riorganizzazione Bagni e Lavanderia
Internalizzazione Secondo Bagno: Trasformare l'attuale locale servizio/lavanderia esterno nel secondo bagno dell'appartamento. Sfida principale: ricavare un accesso dall'interno (zona ingresso/cucina) rispettando le normative italiane (antibagno) e i pilastri strutturali, senza compromettere l'estetica della cucina.
Bagno Principale e Vanity Area: Ricavare, se gli spazi lo consentono, una "vanity area" (zona lavabo/filtro) precedente l'accesso ai sanitari, ad uso degli ospiti.
Accesso al Balcone: Sostituire l'attuale finestra del bagno principale con una porta-finestra per consentire l'accesso diretto alla veranda.
Nuova Lavanderia: Spostare lavatrice e asciugatrice sul balcone chiuso (veranda condonata), riorganizzando lo spazio che già ospita caldaia e pompe di calore.
B. Zona Giorno (Ingresso, Cucina, Soggiorno)
Cucina: Progettare la zona operativa (piano cottura, piano lavoro, lavandino) sotto una finestra a tutta larghezza.
Soggiorno Dinamico: Apertura parziale verso ingresso e cucina per favorire la luminosità e l'unione visiva, mantenendo però la possibilità di chiusura totale (es. porte scorrevoli) e prevedendo un ampio armadio/guardaroba in zona ingresso.
Divisione Giorno/Notte: Netta separazione degli ambienti tramite l'inserimento di una porta lungo il corridoio.
C. Camere da Letto e Contenimento
Cabine Armadio: Creare cabine armadio in tutte e tre le camere da letto.
Camera Matrimoniale: La cabina armadio deve includere la predisposizione degli impianti (carico/scarico) per consentire, in futuro, la trasformazione in bagno padronale.
Vincolo Murature: Non si modificano le tramezzature delle camere, se non per quanto strettamente necessario alla creazione delle cabine armadio.
3. VINCOLI TECNICI E IMPIANTISTICI (Mandatori)
Affidabilità Scarichi: È tassativo mantenere la posizione attuale delle colonne di scarico WC. Non sono ammessi spostamenti che pregiudichino l'affidabilità funzionale (no pendenze critiche o pompe di sollevamento).
Struttura: La progettazione deve integrare i pilastri annegati nei muri della zona ingresso/cucina (come da planimetria).
Normativa: Entrambi i bagni devono essere dotati di bidet.
Stato Legale Veranda: Il balcone chiuso è regolarmente condonato come volume abitativo, permettendo la ricollocazione stabile della zona lavanderia.
4. PREDISPOSIZIONE PER FRAZIONAMENTO FUTURO
L'attuale ristrutturazione deve essere propedeutica alla futura divisione dell'appartamento in due unità indipendenti (già pianificata dalla proprietà). In quest'ottica, la trasformazione della finestra del bagno principale in porta-finestra e la configurazione strategica degli spazi d'ingresso sono elementi vincolanti che devono facilitare tale separazione in una fase successiva.
Resources