
Turin, Metropolitan City of Turin, Italy
Residential - Apartment
Briefing
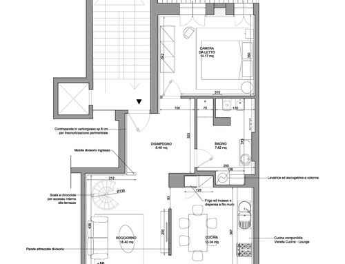
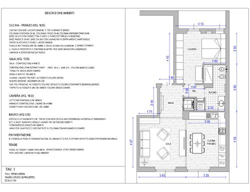
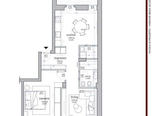
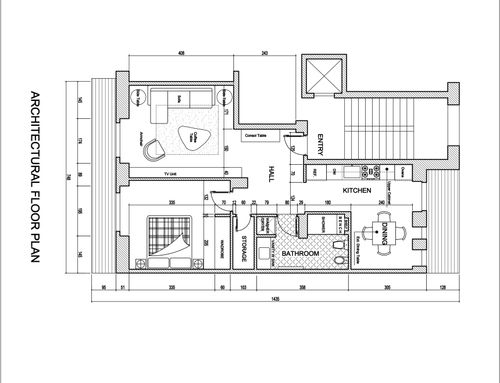
I’d like to renovate the entire apartment, make it more functional and modern. The bathroom is the least functional room, I wish I could include a dryer and replace the tub with the shower. I’d like to use the solar slab above the apartment somehow. Goal: (1) Total renovation with space optimization; separate day/night area; Use the solar slab as a terrace (in respect of Italian regulation) with access from the apartment and intrusion protections (2) Soundproofing the perimeter of the entire apartment; (3) Add dryer in the bathroom; shower instead of tub (4) Kitchen-tinello keep table from people. (5) New colors, furniture and materials.
The apartment had been modified for the first time in the 2000s.
I like a modern style with neutral colors to be revived depending on the seasons with colorful details
---
Mi piacerebbe ristrutturare l'intero appartamento, renderlo più funzionale e moderno. Il bagno è la stanza meno funzionale, vorrei poter includere un essiccatore e sostituire la vasca con la doccia. Vorrei usare la lastra solare sopra l'appartamento in qualche modo. Obiettivo: (1) Ristrutturazione totale con ottimizzazione dello spazio; area giorno/notte separata; Utilizzare la lastra solare come una terrazza con accesso dall'interno e protezioni intrusioni (2) Insonorizzazione del perimetro dell'intero appartamento; (3) Aggiungere l'asciugatrice in bagno; doccia invece di vasca (4) Cucina-tinello tenere tavolo da persone. (5) Nuovi colori, mobili e materiali.
L'appartamento era stato modificato per la prima volta negli anni 2000.
Mi piace uno stile moderno con colori neutri da rivivere a seconda delle stagioni con dettagli colorati.