
Pescara, PE, Italia
Residential - Apartment
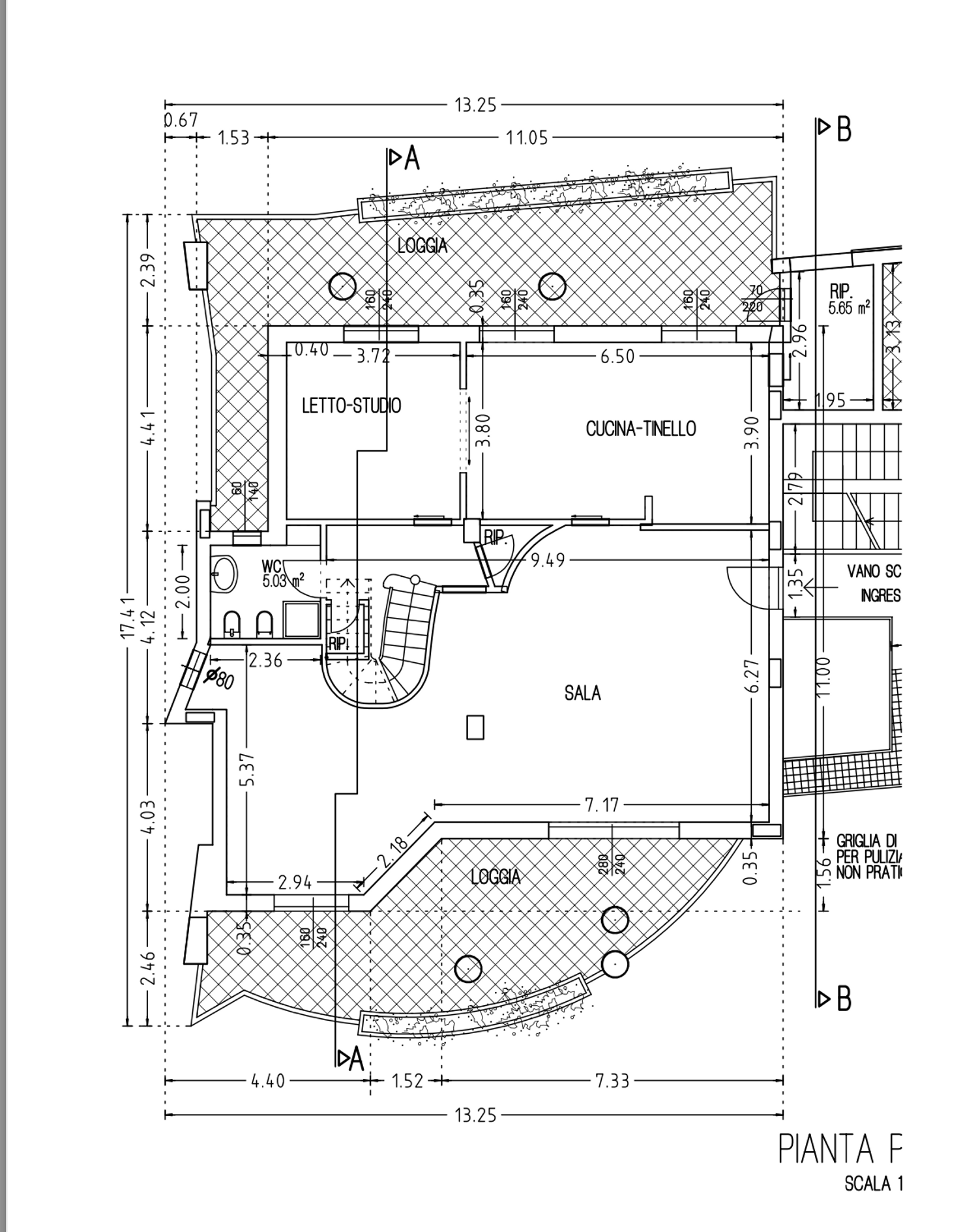
Briefing
ENG:
I need to redistribute the layout of this floor of the property.
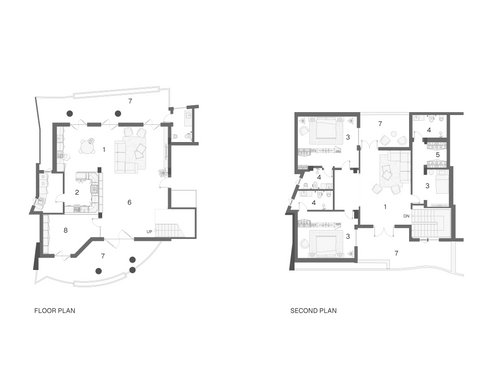
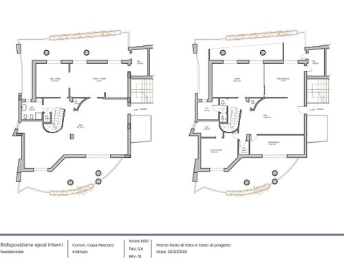
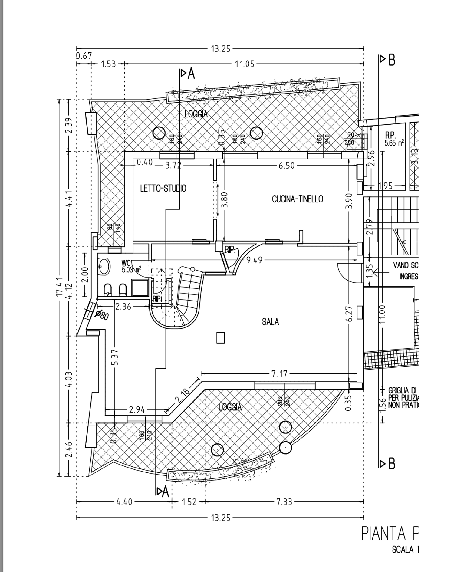
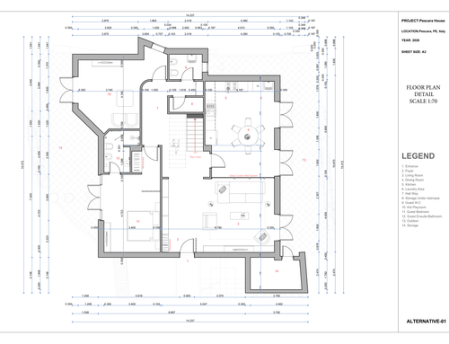
The side where the kitchen and dining nook are currently located faces the sea, therefore I would like this area to host the dining room and the living room.
In the other part of the house, I need to include the following spaces:
- a large kitchen, also connected to an outdoor kitchen on the terrace;
- a playroom;
- a laundry room;
- a guest bedroom with a small en-suite bathroom with sanitary fittings and a shower;
- a guest WC with only a washbasin and toilet (I was thinking it could be placed in the niche where the back kitchen area is currently located).
I am also considering options in which the staircase is relocated (it is currently made of wood).
SPA:
Necesito redistribuir la distribución de esta planta del inmueble.
El lado donde actualmente se encuentran la cocina y el comedor da al mar, por lo que me gustaría que en esa zona se ubicaran el comedor y el salón.
En la otra parte de la vivienda necesitaría incorporar los siguientes espacios:
- una cocina amplia, con conexión a una cocina exterior en la terraza;
- una sala de juegos;
- una lavandería;
- un dormitorio de invitados con un pequeño baño en suite con sanitarios y ducha;
- un aseo de cortesía con solo lavabo e inodoro (había pensado que podría situarse en el nicho donde actualmente se encuentra la parte trasera de la cocina).
También valoro opciones en las que se pueda desplazar la escalera (actualmente es de madera).
ITA:
Ho bisogno di ridistribuire questo piano di un immobile.
il lato dove ora è situata la cucina e il tinello è sul mare quindi vorrei che ci fosse la sala da pranzo e il salone. nell'altra parte della casa avrei bisogno di inserire:
- una grande cucina con anche cucina esterna su terrazzino
- una camera giochi
- una lavanderia
- una camera ospiti con bagnetto con sanitari e doccia
- un bagnetto per gli ospiti con solo lavandino e water (pensavo potesse essere messo nella nicchia dove oggi c'è il retro cucina).
valuto anche opzioni in cui viene spostata la scala (è di legno).