
81030 Cesa, Province of Caserta, Italy
Residential - House
Briefing
ENG
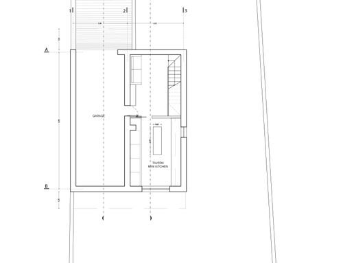
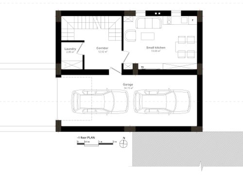
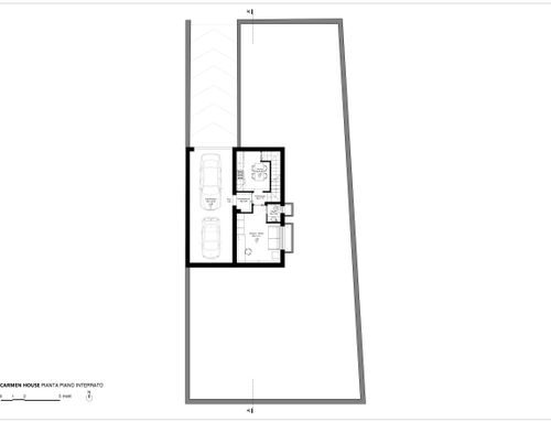
I would like to make my dream house completely modern, we really like black and white colors. Our dream is to have an outdoor swimming pool and we need a studio in the rumpus room and also a kitchen with garage on the - 1 floor.
On the ground floor we want to have many windows with kitchen, living room and laundry
On the first floor 3 bedrooms and a study
We really like bright places with lots of windows and we don't want to have the feeling that there is no space inside the house.
The projects I am uploading to you are an idea of how it should look but I leave it to you to choose the partitions and the exterior with many plants that we like very much.
I RECOMMEND MODERN
ITA
Vorrei realizzare la casa dei miei sogni del tutto moderna ci piacciono molto colori bianco e nero. Il nostro sogno e avere una piscina all'esterno e abbiamo necessita di uno studio nella tavernetta e anche un cucina con garage al piano - 1.
Al piano terra vogliamo avere molte finestre con cucina salone e lavanderia
Al primo piano 3 camere da letto e uno studio
Ci piacciono molto i posti luminosi con molte finestre e non vogliamo avere la sensazione che non ci sia spazio all'interno della casa.
I progetti che vi carico sono un'idea di come dovrebbe venire ma lascio a voi scegliere i tramezzi e l'esterno con molte piante che a noi piacciono molto.
MI RACCOMANDO MODERNO
SPA
Me gustaría hacer la casa de mis sueños completamente moderna, nos gustan mucho los colores blanco y negro. Nuestro sueño es tener una piscina al aire libre y necesitamos un estudio en la sala de juegos y también una cocina con garaje en el - 1 piso.
En la planta baja queremos tener muchas ventanas con cocina, salón y lavadero
En el primer piso 3 dormitorios y un estudio.
Nos gustan mucho los lugares luminosos con muchas ventanas y no queremos tener la sensación de que no hay espacio dentro de la casa.
Los proyectos que os estoy subiendo son una idea de como debe quedar pero os dejo a vosotros elegir las mamparas y el exterior con muchas plantas que nos gusta mucho.
RECOMIENDO MODERNO