
Monza, MB, Italia
Residential - Apartment
Briefing
ENG:
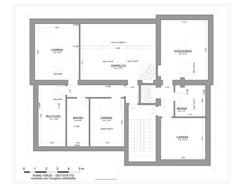
The property is located at Via Leopardi 1. It is a Liberty-style villa with a listed façade overlooking Monza Park. This is the top floor, above the attic.
There is no lift. I would like to create two apartments with balanced sizes, preferably with two bedrooms and two bathrooms (optional), with either an open-plan or separate kitchen.
Currently, there are two apartments with entrances from the landing, but this layout can be changed. I would like to enhance the classic style of the house and highlight the presence of fireplaces in the rooms. If you wish to see them, you can find the property for sale on Immobiliare and Idealista, where current photos are available.
The property will need renovation, but I do not have a large budget. The goal is rental or sale, possibly even a partial sale. I am looking for the best solution to create three-room or four-room apartments (no one-bedroom units).
I will also send details of the attic, which could be converted into a separate apartment, connected to the main one, or left as an attic at your discretion. Once the layout has been defined, I would like to proceed with the full project.
SPA:
La vivienda se encuentra en Via Leopardi 1. Es una villa de estilo Liberty con fachada protegida, con vistas al Parque de Monza. Se trata de la última planta, por encima del ático.
No hay ascensor. Me gustaría realizar dos apartamentos de dimensiones equilibradas, preferiblemente con dos dormitorios y dos baños (opcional), con cocina abierta o separada.
Actualmente existen dos apartamentos con acceso desde el rellano, pero esta distribución se puede modificar. Me gustaría poner en valor el estilo clásico de la casa y el hecho de que hay chimeneas en las estancias. Si desean verlas, pueden encontrar la vivienda en venta en Immobiliare e Idealista, donde hay fotos actuales.
Será necesaria una reforma, pero no dispongo de un gran presupuesto. El objetivo es el alquiler o la venta, incluso parcial. Busco la mejor solución para crear viviendas de tres o cuatro habitaciones (no apartamentos de un solo dormitorio).
También enviaré información sobre el ático, que puede convertirse en un apartamento independiente, estar conectado a la vivienda principal o mantenerse como ático, a su discreción. Una vez definida la distribución, me interesa continuar con el proyecto.
ITA:
La casa è in Via Leopardi 1, è una villa liberty con facciata vincolata affacciata sul parco di Monza. Si tratta dell'ultimo piano oltre sottotetto.
Senza Ascensore, vorrei realizzare 2 appartamenti equilibrati come dimensioni. Possibilmente con 2 stanze e 2 bagni (opzionale) cucina a vista o separata. Oggi sono 2 appartamenti con ingressi su pianerottolo ma si può cambiare. Vorrei valorizzare lo stile classico della casa il fatto che ci sono camini nelle stanze, se le volete vedere trovate la casa in vendita su immobiliare e idealista. Li vedete foto attuali. Dovrò ristrutturare ma non ho grande budget obiettivo affitto o vendita anche parziale. Cerco migliore soluzione per creare trilocali o quadrilocali (no bilocali). Vi mando anche sottotetto che può essere appartamento a parte collegato o lasciato come sottotetto a vostra discrezione. Individuata pianta mi interessa poi andare avanti con progetto