
Bergamo, Province of Bergamo, Italy
Residential - Apartment
Briefing
ENG:
very small apartment, 32 sq m gross internal surface
It is located on the ground floor of a condominium but with good windows that bring in light because it overlooks the courtyard and adjacent villa
The apartment will be rented
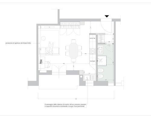
The current arrangement is old and will be overcome with the demolition of the partitions and the renovation of the bathroom
We don't ask for great support on the finishes, we have already recently renovated another apartment with satisfaction and we would like to confirm the choices already made (single-fired cladding, even medium/large size, white doors, false ceilings)
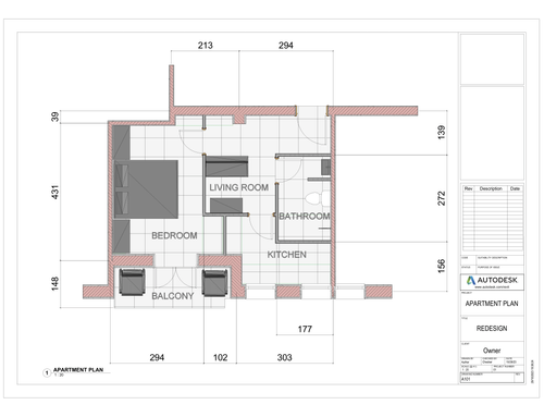
The aim of the contest is to have a new arrangement with the definition of spaces and ideas on furnishings
WISHES ABOUT FUNCTIONALITY
- we would like to leave open both the long-term rental option (one or two stable people) and the short-term rental (B&B)
- we would not like strange things (beds that descend from the ceiling, mezzanines like submariners, etc.) that would limit the usability of potential tenants
CONSTRAINTS ON THE PROJECT
- the load-bearing columns are indicated on the plan
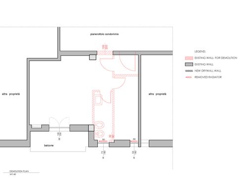
- the bathroom must be at least 4 square meters and have a door between the toilet and the kitchen (service area division), it is a constraint in the municipal hygiene regulation. the bathroom can be without windows
- provide a bidet in the bathroom, Italian way; we don't need a bathtub, just a shower
- municipal hygiene regulation requires to have 2 doors separating the toilet and the kitchen, therefore separating the toilet area from the sink area
- the systems will be able to run in the false ceiling for acoustic insulation towards the apartment above
- the bathroom drain is a constraint, we only want gravity drains, no sanitrit & similar. the screed is only 5 cm, therefore it is NOT possible to pass the drains under the floor but only on the perimeter walls, possibly creating a horizontal infill at the foot of the walls which will be integrated into the furniture
- the entrance door from the condominium hallway can be moved, compatibly with the column
SPA:
Apartamento muy pequeño, superficie interna bruta de 32 m2.
Está ubicado en la planta baja de un condominio pero con buenas ventanas que aportan luz porque da al patio y a la villa adyacente.
el apartamento se alquilará
La disposición actual es antigua y se superará con la demolición de los tabiques y la renovación del baño.
No pedimos un gran apoyo en los acabados, ya hemos renovado recientemente otro apartamento con satisfacción y nos gustaría confirmar las elecciones ya realizadas (revestimientos monococción, incluso de tamaño mediano/grande, puertas blancas, falsos techos)
El objetivo del concurso es tener un nuevo arreglo con la definición de espacios e ideas sobre mobiliario.
DESEOS DE FUNCIONALIDAD
- nos gustaría dejar abierta tanto la opción de alquiler a largo plazo (una o dos personas estables) como la opción de alquiler a corto plazo (B&B)
- no nos gustarían cosas extrañas (camas que descienden del techo, entrepisos tipo submarinistas, etc.) que limitarían la usabilidad de los posibles inquilinos.
LIMITACIONES DEL PROYECTO
- las columnas portantes están indicadas en el plano
- el baño debe tener al menos 4 metros cuadrados y tener una puerta entre el baño y la cocina (división del área de servicio), es una limitación en la normativa municipal de higiene. el baño puede ser ciego
- En el baño también hay un bidé, no necesitas bañera, solo ducha.
- en el reglamento municipal de higiene es obligatorio tener 2 puertas entre el baño y la cocina, separando así la zona del baño de la zona del lavabo
- los sistemas podrán funcionar en el falso techo también previsto para el aislamiento acústico hacia el apartamento de arriba
- el desagüe del baño es una limitación, solo queremos desagües por gravedad, sin desinfectante y similares. la solera mide solo 5 cm, por lo tanto NO es posible pasar los desagües debajo del piso sino solo en las paredes perimetrales, posiblemente creando un relleno horizontal al pie de las paredes que se integrará en los muebles.
- la puerta de entrada desde el rellano del condominio es móvil, compatible con la columna
ITA:
appartamento piccolissimo, 32 mq superficie interna lorda
è ubicato al piano terra in un condominio ma con buona finestratura che porta luce perchè affacciata su cortile e villetta adiacente
l'appartamento sarà affittato
la disposizione attuale è vetusta e sarà superata con l'abbattimento dei tramezzi e il rifacimento del bagno
non chiediamo grosso supporto sulle finiture, abbiamo già ristrutturato recentemente un altro appartamento con soddisfazione e vorremmo confermare le scelte già prese (rivestimenti in monocottura, anche di formato medio/grande, porte bianche, controsoffitti)
obiettivo del contest è avere una nuova disposizione con la definizione degli spazi e delle idee sull'arredo
DESIDERI SULLA FUNZIONALITA'
- vorremmo lasciarci aperte sia l'opzione affitto lungo (una o due persone stabili) sia l'affitto breve (B&B)
- non vorremmo cose strane (letti che scendono dal soffitto, soppalchi da sommergibilisti, etc..) che limiterebbero la fruibilità dei potenziali affittuari
VINCOLI SUL PROGETTO
- le colonne portanti sono indicate in pianta
- il bagno deve essere almeno 4 mq e avere una porta tra WC e cucina (divisione zona servizi), è un vincolo nel regolamento d'igiene comunale. il bagno può essere cieco
- nel bagno prevedere anche il bidet, non serve la vasca, basta una doccia
- nel regolamento di igiene comunale è obbligatorio avere 2 porte tra wc e cucina, dunque separare la zona WC dalla zona lavabo
- gli impianti potranno correre nel controsoffitto previsto anche per isolamento acustico verso l'appartamento sovrastante
- lo scarico del bagno è un vincolo, vogliamo solo scarichi a gravità, no sanitrit & simili. il massetto è di soli 5 cm, dunque NON si puo' far passare gli scarichi sotto il pavimento ma solo sui muri perimetrali, eventualmente creando un tamponamento orizzontale ai piedi dei muri che sarà integrato nei mobili
- la porta di ingresso dal pianerottolo condominiale puo' essere spostata, compatibilmente con la colonna