
55045 Pietrasanta, Province of Lucca, Italy
Residential - House
Briefing
Vorrei una villa stile moderno che si differenzi dal contesto attuale. Siamo sulla costa toscana nella Versilia tra le montagne Apuane e il mare. Pietrasanta è definita la piccola Atene per la sua inclinazione da sempre all'arte. Visse li anche Michelangelo e ora dimora di moltissimi artisti moderni e turismo internazionale legato all'arte. Dalle colline si ha vista sulle alpi e sul mare.
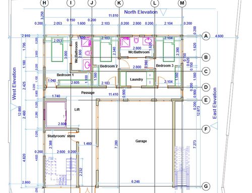
Bisogna demolire l'edificio esistente e restando nelle medesime perimetrazioni a piano terra, riedificarlo. Al piano primo bisogna tenere le distanze dai confini come evidenziato nel file dwg. Al piano superiore si puo ampliare di circa 60mq + terrazzi coperti. Al piano terra da prevedere frontalmente un garage doppio max 60 mq. La zona giorno verra posta la piano primo in quanto a sud/ovest si vede il mare e a nord le alpi apuane. Prevedere una terrazza con eventuali vetrate scorrevoli per ospitare un living esterno con jacuzzi.( possibilmente sul blocco garage). Al piano primo cucina, soggiorno, bagno, dispensa. A piano terra tre camere da letto, due bagni, guardaroba, e uno studio\ripostiglio con una scale di servizio interna per accesso interno al piano primo. L'accesso principale al piano primo sarà tramite scala esterna a giorno. Prevedere ascensore interno.