
Siena, SI, Italia
Residential - Apartment
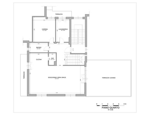
Briefing
ENG:
Good morning, I am interested in redesigning the layout of my apartment and furnishing the terrace.
I will specify my requirements. I need 6 bedrooms, a laundry room, and 2 bathrooms. I do not want to compromise the open-plan area adjacent to the terrace, which includes the living room and kitchen. In the kitchen, I would also like to create a storage room/pantry.
Additionally, I would like to change the position of the staircase in order to recover the two rooms and move the staircase closer to the entrance door.
SPA:
Buenos días, estoy interesada en redistribuir la distribución de mi apartamento y amueblar la terraza.
Especifico mis necesidades: necesito 6 dormitorios, un lavadero y 2 baños. No quiero sacrificar el espacio diáfano junto a la terraza, que incluye el salón y la cocina. En la cocina también me gustaría crear un trastero o despensa.
Además, me gustaría cambiar la ubicación de la escalera para recuperar las dos habitaciones y colocar la escalera cerca de la puerta de entrada.
ITA:
Buongiorno sono interessata a redistribuire il mio appartamento e arredare il terrazzo.
Specifico le mie esigenze. Mi occorrono 6 camere , una lavanderia e 2 bagni . Non voglio sacrificare L ambiente unico adiacente il terrazzo con sala e cucina nella cucina vorrei ricavare anche un ripostiglio . Inoltre vorrei cambiare la posizione della scala per recuperare le due stanze e mettere la scala vicino porta ingresso.
Resources