
Roma, RM, Italia
Residenziale - Appartamento
Descrizione
ENG:
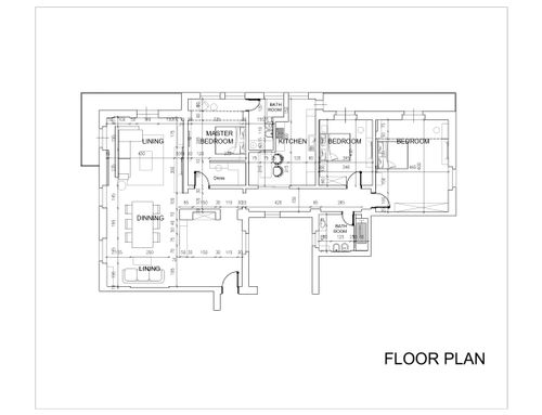
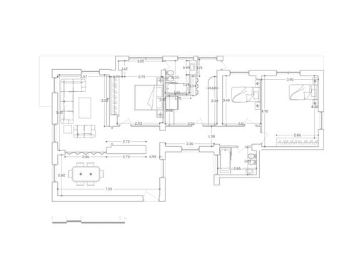
I am asking to design a renovation and interior design of my old 140m2 apartment, located on the 1st floor of a building with 4 floors in total. It consists of a large entrance hall and double living room, corridor, 1st large bedroom with small bathroom, eat-in kitchen, 2nd smaller bedroom, large bathroom with tub, 3rd large bedroom. The apartment is very bright and also has two balconies. We would like to keep the parquet which will be laminated and renovated and we would like a lighter color. We are not interested in changing the layout of the walls but in a total renovation of the interior, from the windows and French windows, to the 3 bedrooms, bathrooms, kitchen, and the large double living room. We are a young couple with a 1 year old daughter and with the desire to have another child soon.We would like a modern and industrial style that highlights the great brightness of the house and makes it warm and welcoming!
SPA:
Solicito diseñar una reforma y diseño interior de mi antiguo apartamento de 140m2, ubicado en el 1er piso de un edificio de 4 plantas. Consta de amplio recibidor y salón doble, pasillo, 1er dormitorio grande con baño pequeño, cocina comedor, 2do dormitorio más pequeño, baño grande con bañera, 3er dormitorio grande. El apartamento es muy luminoso y además dispone de dos balcones. Nos gustaría conservar el parquet que será laminado y renovado y nos gustaría un color más claro. No nos interesa cambiar la disposición de las paredes sino una renovación total del interior, desde las ventanas y puertas ventana, desde los 3 dormitorios, los baños, la cocina y el gran salón doble. Somos una pareja joven con una hija de 1 año y el deseo de tener otro hijo pronto.¡Nos gustaría un estilo moderno e industrial que resalte la gran luminosidad de la casa y la haga cálida y acogedora!
ITA:
Chiedo di progettare una ristrutturazione e l’arredamento interno di un mio vecchio appartamento di 140mq , posto al 1 piano di una palazzina di 4 piani totali. Composta da ampio ingresso e salone doppio, corridoio, 1a camera da letto grande con bagno piccolo, cucina abitabile, 2a camera da letto più piccola, bagno grande con vasca , 3a camera da letto grande. L’appartamento è molto luminoso e presenta anche due balconi. Vorremo tenere il parquet che verrà laminato e rinnovato e ci piacerebbe un colore più chiaro. Non siamo interessati al cambiamento della disposizione delle mura ma di un rinnovamento totale degli interni, dalle finestre e porte finestre, dalle 3 camere da letto, i bagni , cucina, e al grande salone doppio. Siamo una coppia giovane con una figlia di 1 anno e con la voglia di fare anche un altro figlio a breve. Ci piacerebbe uno stile moderno e industrial che risalti la grande luminosità della casa e che la renda calda e accogliente!