
Zibido San Giacomo, MI, Italia
Residenziale - Appartamento
Descrizione
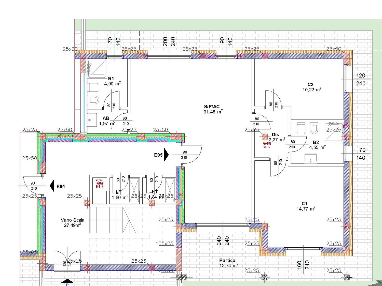
Aggiornamento 28.12.2025,
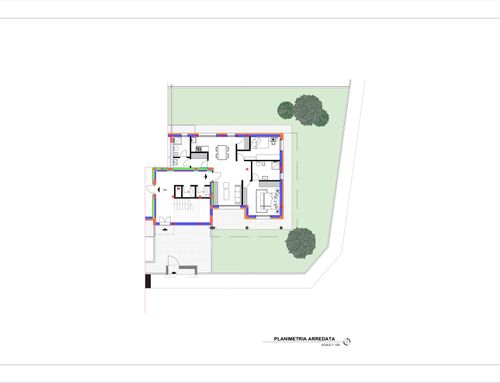
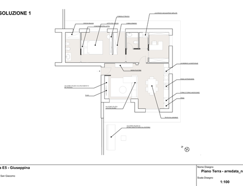
aggiunto 2 nuovi piani in JPG (plot da DWG che ho ricevuto a Natale). Speriamo possano essere di ulteriore aiuto per il vostro lavoro.
Update 28.12.2025,
2 new plans in JPG have been added (plots from DWG files that I received at Christmas). We hope they can be of further help for your work.
Actualización 28.12.2025,
se han añadido 2 nuevos planos en JPG (plots a partir de archivos DWG que recibí en Navidad). Esperamos que puedan ser de mayor ayuda para su trabajo.
Aggiornamento 18.12.2025,
aggiunto nuovo piano in JPG (plot da DWG che ho ricevuto solo pochi giorni fa) Speriamo migliori le condizioni di lavoro con un po' più di precisione. Grazie a tutti coloro che hanno accettato la sfida e buon lavoro.
Actualización 18.12.2025,
se ha añadido un nuevo plano en JPG (plano de DWG que recibí hace solo unos días). Esperemos que mejore las condiciones de trabajo con un poco más de precisión. Gracias a todos los que aceptaron el desafío y buen trabajo.
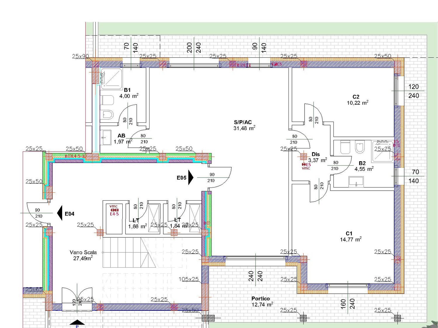
Update 18.12.2025,
new plan added in JPG (plot from DWG that I received only a few days ago). Hopefully, it will improve working conditions with a bit more precision. Thanks to everyone who accepted the challenge and good work.
Aggiornamento 05.12.2025
ITA: nella descrizione delle camere richieste c’è una matrimoniale di almeno 14 metri quadri e una singola di 9 m2. Questa seconda cameretta, per le nostre necessità, potrebbe anche essere più piccola per favorire il posizionamento di una lavanderia e/o ripostiglio e/o dispensa per la cucina
ESP: En la descripción de las habitaciones solicitadas hay una matrimonial de al menos 14 metros cuadrados y una individual de 9 m². Esta segunda habitación, según nuestras necesidades, podría ser incluso más pequeña para facilitar la ubicación de una lavandería y/o trastero y/o despensa para la cocina.
ENG: In the description of the requested rooms, there is a double bedroom of at least 14 square meters and a single bedroom of 9 m². This second small room, for our needs, could even be smaller to allow for the placement of a laundry area and/or storage room and/or kitchen pantry.
TESTO ORIGINALE DEL CONTEST:
ENG:
We are buying a new flat and we are not used to small spaces. The only constraints from the developer, as shown in the attached floor plan, are the perimeter walls, the windows, and the column located roughly in the middle of the plan (in the original project it is in the hallway leading to the bedrooms). Unfortunately, the layout is not regular, and we are struggling to imagine a possible division of the spaces.
Client needs:
We will be living in this flat as two adults, but we are coming from a much larger, three-storey house with plenty of space, so we will need to adjust our habits. The flat can be arranged freely, as all systems will be installed in the floor or ceiling. The building, energy class A, will feature underfloor heating and domestic hot water production with a heat pump.
All finishes will be decided later; for now, we need to fit in:
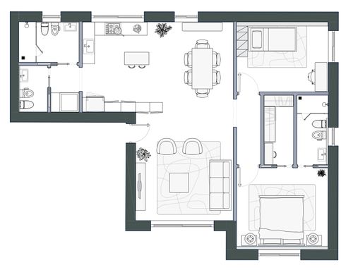
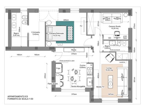
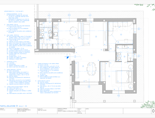
A master bedroom with en-suite bathroom of at least 14 m² and a walk-in wardrobe (even a small one).
A multifunctional bedroom of at least 9 m², with wardrobes, a small desk and a chair.
A main bathroom with toilet, bidet, sink, and walk-in shower.
A service bathroom with toilet and small sink (not necessarily with a window).
A living area with kitchen, whose shape will depend on positioning constraints, a round or rectangular table for 4 people (extendable to 6), a sofa, and a wall-mounted unit to house all technical/Wi-Fi equipment and support a 50" TV. The living room should also include a small glass coffee table on wheels.
A small storage space for a vacuum cleaner (Dyson Gen5), cleaning products, cloths, etc.
Kitchen requirements:
As listed below, the kitchen should include: steam oven, Bora hob, built-in microwave, dishwasher, fridge with freezer compartment, 40×50 sink, pantry unit, and drawers for cutlery.
We would like to reuse some existing furniture:
Zanotta Parco sofa: 287 × 95
Poliform sideboard: 200 × 45 × 68
Poliform wall-mounted TV unit, 3 modules: 290 × 49 × 53 (surface height)
Teo bed: 160 × 218
Our biggest doubts:
Where to place the kitchen (considering all required appliances).
Where to place washing machine and tumble dryer (stacked or side by side): in the service bathroom or elsewhere?
We do not like the idea of having the washing machine in the kitchen; we prefer placing it in the service bathroom, hidden behind sliding doors, or in another dedicated space.
Our existing furniture includes high-quality pieces that we would prefer to keep. The general style is quite minimal.
We remind the designers that the position and size of the perimeter walls, windows, and the central column are fixed and cannot be changed. Everything else can be freely arranged within the available space.
The attached floor plan is at a 1:100 scale, although it does not seem very precise.
All French windows provide access to the private garden, which surrounds the flat on three sides (approx. 190 m²). On the south and west sides there is a covered porch, formed by the terrace of the flat on the first and top floor. The technical room (heat exchanger, hot water system, etc.) is located in the stairwell, right next to the entrance door of the flat.
SPA:
Estamos comprando un nuevo apartamento y no estamos acostumbrados a espacios pequeños. Las únicas restricciones del constructor, según el plano adjunto, son los muros perimetrales, las ventanas y la columna situada aproximadamente en el centro de la planta (en el proyecto original está en el distribuidor hacia los dormitorios). Lamentablemente, la planta no es regular y nos cuesta imaginar una posible distribución de los espacios.
Necesidades de los clientes:
Viviremos en este apartamento dos adultos, pero venimos de una casa mucho más grande, de tres plantas y con mucho espacio, por lo que tendremos que adaptar un poco nuestros hábitos. El apartamento se puede distribuir libremente, ya que toda la instalación se colocará en el suelo o en el techo. El edificio, con clase energética A, contará con calefacción por suelo radiante y producción de agua caliente sanitaria mediante bomba de calor.
Las terminaciones se decidirán más adelante; por ahora, necesitamos incluir:
Dormitorio principal con baño en suite de al menos 14 m² y un vestidor (aunque sea pequeño).
Habitación multifuncional de al menos 9 m², con armarios, un pequeño escritorio y una silla.
Baño principal con WC, bidé, lavabo y ducha walk-in.
Baño de servicio con WC y lavamanos (no necesariamente con ventana).
Zona de estar con cocina (la forma dependerá de su ubicación), una mesa redonda o rectangular para 4 personas (extensible a 6), un sofá y un mueble colgado donde colocar toda la parte técnica/Wi-Fi y un televisor de 50". El salón también debe incluir una mesita de cristal con ruedas.
Un pequeño trastero para aspiradora (Dyson Gen5), productos de limpieza, paños, etc.
Requisitos de la cocina:
Como se detalla, la cocina debe incluir: horno de vapor, placa Bora, microondas empotrado, lavavajillas, frigorífico con congelador, fregadero 40×50, despensa y cajones para cubiertos.
Queremos reutilizar algunos muebles existentes:
Sofá Zanotta Parco: 287 × 95
Aparador Poliform: 200 × 45 × 68
Mueble de TV Poliform colgado, 3 módulos: 290 × 49 × 53 (altura superficie)
Cama Teo: 160 × 218
Nuestras mayores dudas:
Dónde colocar la cocina (con todos los electrodomésticos necesarios).
Dónde colocar lavadora y secadora (en columna o una al lado de la otra): ¿en el baño de servicio u otro espacio?
No nos gusta la idea de tener la lavadora en la cocina; preferimos ubicarla en el baño de servicio, oculta con puertas correderas, o en otro espacio dedicado.
Nuestros muebles actuales son piezas de alta calidad y nos gustaría conservarlas. El estilo general es bastante minimalista.
Recordamos a los diseñadores que la posición y el tamaño de los muros perimetrales, las ventanas y la columna central son fijos y no se pueden modificar. Todo lo demás puede distribuirse libremente dentro del espacio disponible.
El plano adjunto está a escala 1:100, aunque no parece muy preciso.
Todas las puertas-ventana dan acceso al jardín privado, que rodea el apartamento en tres lados (aprox. 190 m²). En los lados sur y oeste hay un porche cubierto, creado por la terraza del apartamento del primer y último piso. El cuarto técnico (intercambiador de calor, agua caliente, etc.) se encuentra en la escalera, justo al lado de la puerta de entrada del apartamento.
ITA:
Stiamo acquistando un nuovo appartamento e non siamo abituati a spazi piccoli. Gli unici vincoli del costruttore, vedi pianta allegata, sono muri perimetrali, le finestre e la colonnina sita più o meno in mezzo alla pianta (nel progetto originale è nel disimpegno verso le camere da letto. Purtroppo la pianta non è regolare e quindi fatichiamo ad immaginare la possibile suddivisione degli spazi.
Necessità dei committenti:
In pratica abiteremo in questo appartamento in due adulti ma veniamo da una casa molto più grande, su tre livelli, con tantissimo spazio mentre qui dovremo un po' ridimensionare le nostre abitudini. L'appartamento può essere disposto liberamente, tutta l'impiantistica verrà posata nel pavimento o nel soffitto. La costruzione, con classe energetica A, avrà un impianto di riscaldamento pavimento e produzione acqua calda sanitaria con pompa di calore, r
Tutte le finiture verranno decise in seguito, per ora dobbiamo riuscire a farci stare:
1 - camera matrimoniale con annesso bagno padronale di almeno 14 m2 e con cabina armadio (per piccola che potrà essere)
1 - cameretta polifunzionale di almeno 9 m2 che dovrà contenere armadi, una piccola scrivania con una sedia.
1 - bagno padronale con WC, bidet, lavello e doccia walk-in
1 - bagno di servizio con WC e lavamani (non necessariamente finestrato)
1 - living con cucina la cui forma sarà imposta dal posizionamento, un tavolo tondo o rettangolare per 4 persone eventualmente allungabile per 6, un divano e un mobile appeso in cui troverà posto tutta la parte tecnica/wifi ecc e su cui sarà posizionato un televisore da 50", completa il salotto un tavolino in vetro con rotelle.
1 - piccolo ripostiglio in cui poter mettere l'aspirapolvere (dyson gen5) e i prodotti di pulizia, gli stracci ecc
cucina: vedi sotto
Desideriamo, nel limite del possibile riutilizzare alcuni mobili esistenti:
divano Zanotta Parco: 287x95
madia Poliform: 200 x 45 x 68
mobile porta TV Poliform 3 elementi appesi: 290 x 49x53(h piano appoggio)
letto Teo 160x218
I nostri dubbi più grandi:
- dove posizionare la cucina (che dovrà avere: forno steamer, piano cottura Bora, forno a microonde incassato, lavastoviglie, frigo con comparto congelazione, lavello 40x50, dispensa e cassetti per posate.
- dove posizionare lavatrice e asciugatrice (se colonna o uno a fianco dell'altra) se nel bagno di servizio o in altro spazio.
A noi non piace l'idea di avere la lavatrice in cucina, piuttosto nel bagno di servizio, nascosta da porte scorrevoli o altrove.
Il nostro arredamento esistente consta di pezzi di un certo pregio e qualità a cui non vorremmo dover rinunciare. Lo stile in generale è piuttosto 'minimal'.
Ai progettisti rammentiamo che posizione e dimensione dei muri perimetrali, delle finestre e della colonnina centrale sono dati e imprescindibili. Tutto il resto è liberamente posizionabile all'interno dello spazio disponibile.
La piantina allegata è in scala 1:100 anche se non mi sembra molto precisa.
Tutte le portefinestre danno accesso al giardino privato che è su tre lati dell'appartamento (ca 190m2). Sui lati sud e ovest c'è un portico coperto, costituito dal terrazzo dell'appartamento al 1° ed ultimo piano. Il locale tecnico (scambiatore di calore, acqua calda ecc) si trova nel vano scale, proprio accanto alla porta d'entrata dell'appartamento.