
Silanus, NU, Italia
Residenziale - Appartamento
Descrizione
ENG:
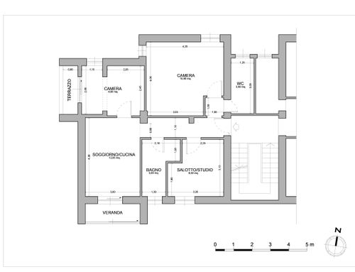
The apartment is located on the second floor in a popular building consisting of six apartments; this is on a raised floor with respect to the main road, it has a plot of land around it used as a resident parking lot. The general appearance of the building is quite dilapidated, dating back to the 50s, the condominium aspect (entrance, stairs, cellars, roof) has been significantly neglected. The door opens to the left and gives access to the passageway which essentially divides the living area from the sleeping area in two (left/right). My desire is to reverse this: bring the sleeping area to the north and the living area to the south; this is desired because now the bedrooms face the main road and instead to the north they would be more private. Entering, on the left, there is the bedroom which I would like to transform into a small living room/study. Further on, still on the left, is the bathroom, with a bathtub and sanitary ware on the right; here I would like to put the shower without a step, possibly not near the window. Further ahead is the master bedroom with a nice little terrace: here I would like to make the kitchen, closing half of the balcony and on a sliding glass door. The wall opposite the balcony borders half of the living room terrace and half of the living room itself; here I would like to open to expand the future kitchen and use the space also as a dining room/living room. The wall that divides the veranda from the living room (currently) would be recessed a little. The current dining room and kitchen would become a sleeping area... to be organized into two bedrooms. In the old washhouse I have already created a second bathroom, but I would like to eliminate the shower cubicle. Suggestions for heating/panels etc etc are welcome! Colors: NO RED! NO BLACK! NO GREY! NO ACID COLORS! Suggestions for arranging the spaces in front of the building and solutions for a possible elevator are also welcome. Thank you very much! 🙏🏻
SPA:
El apartamento se encuentra en la segunda planta de un popular edificio de seis apartamentos; se encuentra en una planta elevada con respecto a la calle principal y cuenta con un terreno a su alrededor que se utiliza como aparcamiento para residentes. El edificio, de los años 50, presenta un aspecto bastante ruinoso, con un aspecto de condominio (entrada, escaleras, sótanos, azotea) considerablemente descuidado. La puerta se abre a la izquierda y da acceso al pasillo que divide la sala de estar de la zona de dormitorios en dos (izquierda/derecha). Mi deseo es invertir esto: situar la zona de dormitorios al norte y la sala de estar al sur; esto es deseable porque ahora los dormitorios dan a la calle principal y, en lugar de estar al norte, tendrían más privacidad. Al entrar, a la izquierda, se encuentra el dormitorio, que me gustaría transformar en una pequeña sala de estar/estudio. Más adelante, también a la izquierda, está el baño, con bañera y sanitarios a la derecha; aquí me gustaría colocar la ducha sin escalón, posiblemente lejos de la ventana. Más adelante se encuentra el dormitorio principal con una bonita terracita: aquí me gustaría hacer la cocina, cerrando la mitad del balcón con una puerta corredera de cristal. La pared opuesta al balcón limita con la mitad de la terraza del salón y la otra mitad del propio salón; aquí me gustaría abrirla para ampliar la futura cocina y usar el espacio también como comedor/sala de estar. La pared que separa la terraza del salón (actualmente) se retranquearía un poco. El comedor y la cocina actuales se convertirían en una zona de descanso... que se organizaría en dos dormitorios. En el antiguo lavadero ya he creado un segundo baño, pero me gustaría eliminar la cabina de ducha. ¡Se agradecen sugerencias sobre calefacción, paneles, etc.! Colores: ¡NO ROJO! ¡NO NEGRO! ¡NO GRIS! ¡NO COLORES ÁCIDOS! También se agradecen sugerencias para la distribución de los espacios frente al edificio y soluciones para un posible ascensor. ¡Muchas gracias! 🙏🏻
ITA:
L' appartamento è sito al secondo piano in una palazzina popolare composta da sei appartamenti; questa è in un piano rialzato rispetto alla strada principale, ha attorno un terreno adibito a parcheggio residenti. L' aspetto generale dell' edificio è abbastanza fatiscente, risalente agli anni '50, notevolmente trascurato l' aspetto condominiale ( ingresso, scala, cantine,tetto.) Il portone ha l' apertura verso sinistra e da accesso all' andito che, sostanzialmente divide in due (sinistra/ destra)la zona giorno dalla zona notte. Il mio desiderio è ribaltare questo: portare la zona notte a nord e la zona giorno a sud; questo è voluto perché ora le camere da letto danno sulla strada principale e invece a nord sarebbero più riservate. Entrando,a sinistra, si trova la cameretta che vorrei trasformare in salottino/ studio. Più avanti sempre a sinistra il bagno,con vasca e sanitari a destra; qui vorrei mettere la doccia senza scalino, possibilmente non vicino alla finestra. Piu avanti la camera da letto matrimoniale con un bel terrazzino: qui ci vorrei fare la cucina, chiudendo per metà il poggiolo e su una vetrata scorrevole. La parete opposta al poggiolo è confinante per metà con la terrazza del soggiorno e metà il soggiorno stesso; qui vorrei aprire per ampliare la futura cucina e utilizzare lo spazio anche come sala pranzo/ soggiornino. Il muro che divide la veranda del soggiorno ( attualmente) verrebbe un po' rientrato. L' attuale sala da pranzo e la cucina diverrebbe zona notte..da organizzare in due camere da letto. Nel vecchio lavatoio ho già realizzato un secondo bagno,in cui però vorrei eliminare il box doccia. Sono graditi suggerimenti per riscaldamento/ pannelli ecc ecc! Colori: NO ROSSO! NO NERO! NO GRIGIO! NO COLORI ACIDI! graditi anche suggerimenti per sistemazione spazi antistante palazzina e soluzioni per eventuale ascensore.. grazie mille! 🙏🏻