
16039 Sestri Levante, Metropolitan City of Genoa, Italy
Residential - Apartment
Briefing
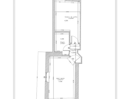
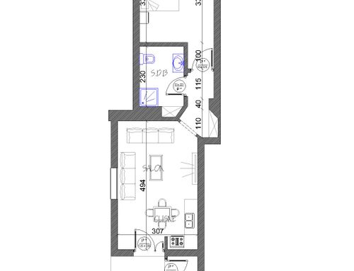
I am the owner of a small apartment that I would like to renovate and rent out for short stays, primarily during the summer season. The apartment is located on the ground floor of a house that includes three other apartments. Outside, there is a small garden.
The flooring will be done with terracotta-effect tiles. The furniture should be simple and functional. It should accommodate four people, with one double bed and one sofa bed. The walls will be painted white or in soft, neutral tones.
The kitchen should be fully equipped with all appliances. The bathroom (without windows) should include a shower, toilet, bidet, sink, and some cabinets for storage. The apartment is not very bright