
Milan, Metropolitan City of Milan, Italy
Commercial - Other
Briefing
Salve a tutti,
ho una piccola palazzina composta da 16 appartamenti dove vorrei realizzare un Quasi-Hotels per affitti brevi.
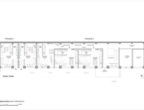
La struttura è suddivisa in tre piani fuori terra, piano Terra soppalcato, piano Primo e piano sottotetto.
Vi ho allegato la progettazione preliminare approvata che presenteremo a breve in comune, quindi non andrei a fare modifiche sostanziali per quanto riguarda le divisioni a meno che vedete e consigliate un miglioramento.
Piano terra: soggiorno/cucina al piano terra e camera da letto soppalcata oltre al bagno.
Piano Primo: soggiorno/cucina e camera da letto oltre al bagno.
Piano Sottotetto: soggiorno/cucina e camera da letto oltre al bagno.
La mia idea è di realizzare un arredo con un pizzico di eleganza e di lusso (utilizzando il pattern che vi forniremo come wallpaper vedi immagine 6 vicino allo specchio e sul tessuto del pouf viola nelle immagini di riferimento) sulla base di questi esempi di hotel moderni/futuristici... Hotel Brand: Moxy (Marriott) (moderno), Hub Hotels by Premier Inn (futuristico).
Altre info utili di dettagli:
- Due scenari luci, faretti e luce soffusa (illuminare elementi tipo frame tv ed eventuali mensole a vetri vedi referenze fotografiche)
- Luce sotto il letto notturna che si accende quando si scende dal letto e per il bagno (vedi referenze fotografiche)
- Letto o comunque in stanza prevedere zone portavaligie si veda referenza fotografica allegata.
- Zona "remote working" integrata al mobile soggiorno (vedi referenza fotografica)
- Zona "vanity desk" in camera da letto
- Interruttori personalizzati accensione luci/prese etc… (vedi Ave o proporre qualcosa)
- Soffione doccia e doccino con cromoterapia, aromaterapia, speaker etc. (vedi Aquaform o proporre qualcosa)
- Esterno edificio: posizionare logo in alto che sia visibile dai binari
I materiali dovranno avere costi bassi per la realizzazione in larga scala del progetto, dovranno essere resistenti al pubblico "di passaggio" e facilmente pulibili / sostituibili e con bassa manutenzione. Il progetto si espanderà prossimamente negli Emirati Arabi Uniti (Dubai) quindi preferire materiali facilmente adattabili al mercato di riferimento.
Quasi-Hotels
Revolutionizing the short-term rental
‘Quasi-Hotels’, is as simple as apartments, villas, and condos that are serviced to the level of hotels.
In essence, Quasi-Hotel is a hotel-quality room without the commercial feel of a hotel.
Risorse, vi lascio di seguito il modello 3D della struttura che può tornarvi utile per la progettazione d'interni:
- 3D Max: https://www.dropbox.com/s/lc10na9rdqehj29/MILANO_Via%20Gluck%2050_RENDER%20V2.max?dl=0
- FBX: https://www.dropbox.com/s/5vzheasj79dbh90/VIA_GLUCK_50_model.FBX?dl=0
- Texture: https://www.dropbox.com/s/nq8epgxai5pdya5/MILANO_Via%20Gluck%2050_RENDER%20V2.zip?dl=0
- Foto "Stato di fatto": https://www.dropbox.com/sh/aex8hxj47jzntp0/AADtdk3Ta79LaI2PAThdmODga?dl=0
- Quasi-Hotels loghi: https://www.dropbox.com/sh/s61d7ssbof7o0xr/AABswy-5A3rNW1y8iSeAHHF6a?dl=0
- Similar Hotels brochure: https://www.dropbox.com/sh/bh6kf6mg0autn35/AACcY4tUTW6_CQEVW-7F1_6Oa?dl=0
- Brand Guide: coming soon
- Pattern 1 source files: https://www.dropbox.com/sh/iu13cx3zmb8p4gy/AAAlWe0hM88zye5waFJzy39ca?dl=0
- Pattern 2 source files: https://www.dropbox.com/sh/dzfkqn1ilkeqc1p/AAA8OW85sgzU-qaisMTWpdbga?dl=0
- Arts: https://www.dropbox.com/t/i6DUjuPB1LDAxdyu
- 3D Logo: https://www.dropbox.com/sh/hcgiq2jmnx9vir7/AACB_HsZ0vTwC_wnqhh21BaJa?dl=0
- Colors: https://www.dropbox.com/t/1o81Wln9TFrrhtWP
ENG
Hello everyone,
I have a small building of 16 dwellings in which I would like to set up a quasi-hotel for short rentals.
The structure is divided into three floors above ground, a mezzanine first floor, second floor, and attic.
I have attached the approved blueprint that we will be submitting to the city council shortly, so I would not make any substantial changes to the divisions unless you see something that needs improvement.
First floor: living room/kitchen and mezzanine bedroom plus bathroom.
Second floor: living room/kitchen and bedroom plus bathroom.
Attic floor: living room/kitchen and bedroom plus bathroom.
My idea is to make a piece of furniture with a touch of elegance and luxury (using the pattern that we will provide as wallpaper... see image 6 next to the mirror and on the purple pouf fabric in the reference images) based on these examples of modern/futuristic hotels... Hotel brand: Moxy (Marriott) (modern), Hub Hotels by Premier Inn (futuristic).
Other useful information:
- Two light settings, spotlights and soft light (illuminate elements such as TV frames and glass shelves, see photo reference.
- Night light under the bed that turns on when you get up and for the bathroom (see photo references).
- Bed or otherwise in room provide storage areas see attached photo reference)
- "Remote working" zone integrated with living room cabinet (see photo reference)
- "Vanity desk" area in bedroom
- Custom light switches/plugs, etc. (see Ave or suggest something)
- Shower and hand shower with chromotherapy, aromatherapy, speaker, etc. (see Aquaform or propose something).
- Building exterior: place the logo on top that is visible from the railroad tracks.
Materials will have to be low cost for large-scale realization of the project and they will have to be resistant to the "walk-in" public and easy to clean/replace and low maintenance. The project will be extended to the United Arab Emirates (Dubai), so materials easily adaptable to the target market are preferred.
SPA
Hola a todos,
Tengo un pequeño edificio de 16 apartamentos en el que me gustaría montar un Quasi-hotel para alquileres cortos.
La estructura está dividida en tres plantas sobre rasante, entreplanta, primera planta y ático.
He adjuntado el anteproyecto aprobado que presentaremos al ayuntamiento en breve, así que yo no haría ningún cambio sustancial en las divisiones a no ser que se vean y recomendéis una mejora.
Planta baja: sala de estar/cocina y dormitorio en el entresuelo más baño.
Primera planta: salón/cocina y dormitorio más baño.
Planta ático: salón/cocina y dormitorio más baño.
Mi idea es hacer un mobiliario con un toque de elegancia y lujo (utilizando el estampado que proporcionaremos como papel de pared ver imagen 6 junto al espejo y en la tela del puf morado en las imágenes de referencia) basado en estos ejemplos de hoteles modernos/futuristas... Marca del hotel: Moxy (Marriott) (moderno), Hub Hotels by Premier Inn (futurista).
Otros datos útiles:
- Dos escenarios de luz, focos y luz suave (iluminan elementos como los marcos de la TV y las estanterías de cristal, ver referencias fotográficas)
- Luz bajo la cama por la noche que se enciende al salir de la cama y para el baño (ver referencias de la foto)
- Cama o en todo caso en la habitación proporcionar áreas de almacenamiento ver foto adjunta de referencia.
- Zona de "trabajo a distancia" integrada en el mobiliario del salón (ver foto de referencia)
- Zona de "escritorio" en el dormitorio
- Interruptores de luz/enchufes personalizados, etc. (ver Ave o sugerir algo)
- Ducha y teleducha con cromoterapia, aromaterapia, altavoz, etc. (ver Aquaform o proponer algo)
- Exterior del edificio: colocar el logotipo en la parte superior que sea visible desde las vías.
Los materiales deben ser de bajo coste para la realización a gran escala del proyecto, deben ser resistentes al público "de paso" y de fácil limpieza/sustitución y bajo mantenimiento. El proyecto se extenderá pronto a los Emiratos Árabes Unidos (Dubai), por lo que se deben preferir materiales fácilmente adaptables al mercado de destino.