
27100 Pavia, Province of Pavia, Italy
Commercial - Office
Briefing
ITA
Buongiorno, stiamo acquistando uno studio in avanzata fase di ristrutturazione da parte del costruttore di circa 125mq. Lo Studio conta tre stanze oltre servizi, due delle quali molto grandi sarebbero da dividere (possibilmente con privacy acustica) realizzando per una: un ingresso, un desk lavoro/accoglienza e una sala riunioni, in questa sala principale potrei valutare l'idea di creare un "soppalco" vista l'altezza di 5 metri tenendo in considerazione che non posso intervenire sulle murature perchè palazzo storico, però potremmo inserire una struttura autoportante che possa creare eventualmente un altro piano di lavoro - se ci fossero soluzioni anche di questo tipo le potremmo tenere in considerazione; per l’altra due stanze separate eventualmente con privacy acustica. Non abbiamo modo di intervenire con elementi edili tradizionali e pertanto cerchiamo soluzioni alternative che possano consentire di non perdere luminosità avendo lo studio affacci su un unico lato. La ricerca chiederebbe anche eventuali soluzioni di illuminazione che possano permettere una fruibilità delle stanze per l’intera giornata lavorativa eventualmente anche a luci accese considerato che la luminosità, almeno di una delle stanze da dividere, non è il massimo. Inoltre sarebbe gradita anche simulazione di arredo studio in stile moderno/elegante (mix classico moderno). Ringrazio per le soluzioni.
ENG
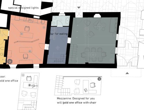
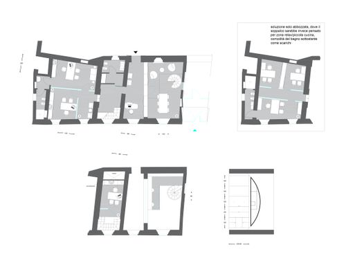
Hello, we are purchasing an office in an advanced phase of renovation by the builder of approximately 125sqm. The Office has three rooms plus services, two of which very large would be divided (possibly with acoustic privacy) creating for one: an entrance, a work / reception desk and a meeting room, in this main room I could evaluate the idea of creating a "mezzanine" given the height of 5 meters taking into account that I cannot intervene on the walls because it is a historic building, but we could insert a self-supporting structure that could possibly create another work surface - if there were also solutions of this type we could keep in consideration; for the other two separate rooms possibly with acoustic privacy. We have no way of intervening with traditional building elements and therefore we are looking for alternative solutions that can make it possible not to lose brightness by having the studio facing on one side only. The research would also ask for any lighting solutions that can allow the rooms to be usable for the entire working day, possibly even with the lights on, considering that the brightness, at least of one of the rooms to be divided, is not the best. Furthermore, a simulation of study furniture in a modern / elegant style (modern classic mix) would also be appreciated. Thank you for the solutions.
SPA
Buenos días, estamos comprando un estudio en un estado avanzado de renovación por el constructor de unos 125qm. El estudio tiene tres habitaciones más los baños, dos de las cuales son muy grandes y hay que dividirlas (posiblemente con privacidad acústica), creando para una: un hall de entrada, una zona de trabajo/recepción y una sala de reuniones. En esta habitación principal podría considerar la idea de crear un "entresuelo", dada la altura de 5 metros, teniendo en cuenta que no puedo intervenir en las paredes porque es un edificio histórico, pero podríamos insertar una estructura autoportante que podría crear eventualmente otra superficie de trabajo - si hubieran soluciones de este tipo podríamos tenerlas en consideración; para las otras dos habitaciones separadas, posiblemente con privacidad acústica. No tenemos forma de intervenir con elementos constructivos tradicionales, por lo que buscamos soluciones alternativas que nos permitan no perder luz, ya que el estudio da a un solo lado. En la investigación también se pedirían posibles soluciones de iluminación que permitieran utilizar las salas durante toda la jornada laboral, posiblemente incluso con las luces encendidas, teniendo en cuenta que la luminosidad, al menos en una de las salas a dividir, no es la mejor. También se agradecería una simulación de muebles de estudio de estilo moderno/elegante (mezcla clásica moderna). Gracias por las soluciones.