
96100 Syracuse, Free municipal consortium of Syracuse, Italy
Residential - Apartment
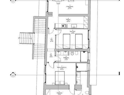
Briefing
Ciao a tutti ho una casa di circa 200mq la quale vorrei ristrutturare, sono in possesso di una soluzione progettuale, lo scoto del Contest vorrei Idee per gli esterni e migliorie per interni, rendering Facciate esterne con idea di colazioni uso di materiale moderni ma poveri (pietra, legno, ecc)
--
Hello everyone, I have a house of about 200 square meters which I would like to renovate, I have a design solution, the result of the Contest I would like Ideas for the exterior and improvements for the interior, rendering External facades with idea of breakfasts use of modern but poor materials (stone, wood, etc.)
--
Hola a todos, tengo una casa de unos 200m2 que me gustaría renovar, tengo una solución de diseño, la puntuación del Concurso, me gustaría ideas para el exterior y mejoras para el interior, renderizado de fachadas exteriores con la idea de desayunos, uso de materiales modernos pero pobres (piedra, madera, etc.)