Luxembourg
Residential - House
Briefing
Hello,
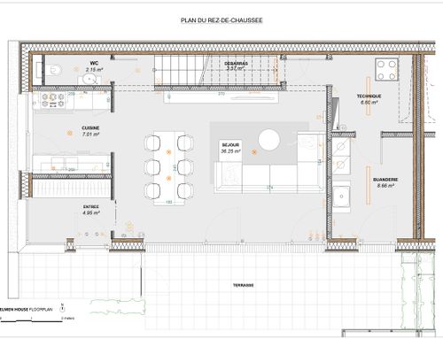
We would like to launch a decoration project for our new house. Please
find the enclosed electricity and floor plans. Please note, that we
cannot move walls, change places for electricity and electrical
installations. As well, pipes and water pipes should be in exactly at
the same location as it is in the plans. Regarding materials, the
floors will be covered with bleached oak parquet in the living room,
sleeping rooms and second floor corridor. Light grey tiles are chosen
at the entrance corridor, kitchen, WC, bathroom shower room and in the
auxiliary premises.
WC: chosen materials: light grey tiles, water sink with white
furniture. Please note, that tiles will not cover all walls. Please
see the enclosed plan for tiles. The walls should be painted by us. We
need to choose colors, preferably light ones.
Shower room: light grey tiles on the floor, part of walls and shower
area will be covered by tiles which color is egg shell ("Blanc
casse"), furniture selected with 2 sinks is natural oak colour (please
see enclosed picture).
Bathroom room: will have a bath and furniture which is also natural
oak color (different design than sink in shower room). Floor tiles
will be light grey, part of walls will be also with egg shell tiles
(please find enclosed tiles plan).
Please note that we cannot select materials for ceilings and it is
already planned that the whole ground floor will have wooden oak
ceilings, and the second floor will have white plasterboard ceilings.
The House will have stairs which material we can not change and it is
from concrete.
I am attaching pictures of the model house which shows exactly how
stairs, ceilings, windows will look like. We have selected white doors
in the whole house ( please see in the pictures).
The House has 3 bedrooms: 1 for parents (next to the shower room) and
other 2 bedrooms for 2 boys (2 and 5 years old).
Our preference for furniture and decorations:
- we would like to have bright house;
- we would like to have bright kitchen (white or any other light color);
- dining table and chairs easy to clean;
-dining table (2,30 m or can be extendable), if fits.
- comfortable sofa (darker color, as kids at home) in the living room
for 4 persons (can be L shape), with sleeping option and with legs if
possible.
-not so many open shelves in the living room;
-we don't want so much furniture, better more space for kids to play.
- arrange furniture in a way that it would not reduce space.
-no day curtains in the living room as 2 boys will be at home, can be
night curtains, or even without curtains. We will have blinds from
outside for all windows.
-home office in the parents' sleeping room and big wardrobe if possible.
-bed dimension in parents room of 200x200 if possible;
-dimensions of beds in kids rooms 90x200 (we have one white bed, but
need to buy other bed).
Budget for furniture, lightings and decorations 60-70k EUR (30EUR for
kitchen from this amount).
We live in Luxembourg, so preference for furniture is from France,
German, Belgium or Luxembourg shops.
We like Vilmers brand sofas. But can also be any other brand.
Some furniture can be from: https://abitare-living.lu/
Some things can be from Belgium IKEA.
Some things can be from:
https://www.maisonsdumonde.com
Interiors styles we like:
- preference to contemporary style;
-can be modern with contemporary,
-can be some industrial style elements.