
Bologna, BO, Italia
Residenziale - Appartamento
Descrizione
ENG:
Complete renovation project for a two-bedroom flat on the 4th floor.
The property features 2 balconies, an open-plan kitchen/living area, one bedroom, a study/guest room, a walk-in wardrobe, a laundry room, and a bathroom.
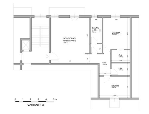
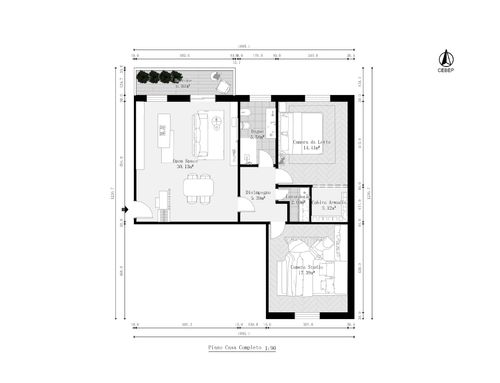
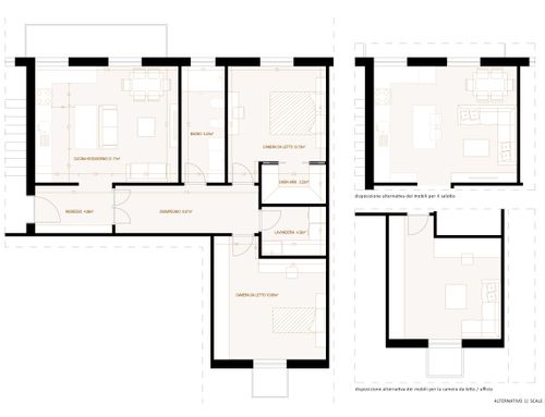
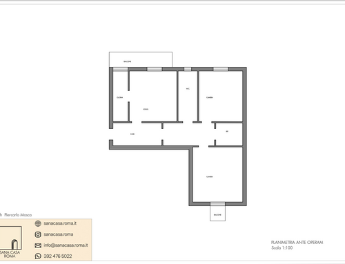
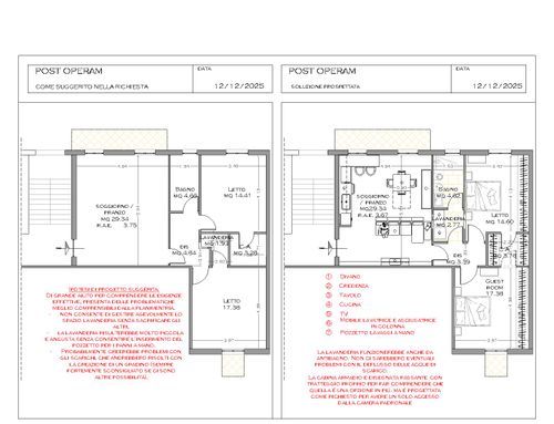
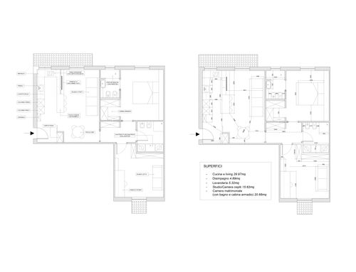
In the floor plans you will find the existing layout, the measured plan, and a proposed layout that I would like to achieve (not mandatory — it’s only to give an idea).
A spacious open-plan kitchen/living area is essential, and I would really like to have a small laundry room separated from the other rooms, as well as a walk-in wardrobe inside the bedroom.
The laundry room must include both a washing machine and a tumble dryer (not stacked), and I would like to have a deep sink where I can hand-wash clothes and wash my medium-sized dog.
I chose to place the bedroom in the smaller room due to external noise (the larger room faces a very busy road).
Regarding the kitchen/living room: I love cooking and would really like to have a kitchen with a peninsula. I’m not sure if it’s feasible with the available space, so I welcome suggestions, questions, or alternative proposals. I can do without it if adding a peninsula compromises the rest of the layout, but I would love to have one if possible. In the living area, I obviously need a dining table and a sofa/TV setup.
All walls are non-structural and can be demolished or moved.
SPA:
Proyecto de reforma completa de un piso de tres estancias en la 4ª planta.
La vivienda cuenta con 2 balcones, un espacio abierto cocina/salón, un dormitorio, un estudio/habitación de invitados, un vestidor, una lavandería y un baño.
En los planos encontrarás el estado actual, el plano acotado y una propuesta de distribución que me gustaría realizar (no obligatoria — es solo para dar una idea).
Es fundamental tener un espacio abierto cocina/salón, y me gustaría mucho contar con una pequeña lavandería separada del resto de los ambientes, así como con un vestidor en el dormitorio.
La lavandería debe incluir una lavadora y una secadora (separadas), y me gustaría tener un lavabo profundo donde pueda lavar ropa a mano y también lavar a mi perro de tamaño medio.
He decidido colocar el dormitorio en la habitación más pequeña por motivos de ruido exterior (la habitación grande da a una calle muy transitada).
En cuanto a la cocina/salón: me encanta cocinar y me gustaría mucho tener una cocina con península. No estoy seguro de si es posible con el espacio disponible, así que acepto sugerencias, preguntas u otras propuestas. Puedo prescindir de ella si colocar la península compromete el resto del espacio, pero me gustaría muchísimo poder tenerla. En la zona del salón necesito obviamente una mesa para comer y un conjunto sofá/TV.
Todas las paredes no son estructurales y pueden demolerse o desplazarse.
ITA:
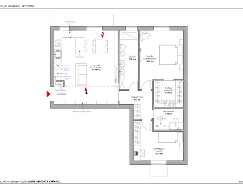
Progetto di ristrutturazione completa trilocale al 4 piano.
2 balconi, un openspace cucina/soggiorno, una camera da letto, uno studio/guest room, cabina armadio, lavanderia e bagno.
Nelle planimetrie troverete lo stato attuale, la planimetrie con le misure, e una planimetria con un ipotesi di progetto che mi piacerebbe realizzare. (non obbligatoria, è per dare un idea)
Fondamentale l open space cucina/soggiorno, e mi piacerebbe molto avere una piccola lavanderia separata dal resto degli ambienti, e una cabina armadio nella camera da letto.
Nella lavanderia deve ovviamente esserci lavatrice e asciugatrice (separate), e mi piacerebbe avere un lavabo profondo, dove poter lavare a mano indumenti e il mio cane di medie dimensioni.
Ho scelto di mettere la camera da letto nella stanza piu piccola per questioni di rumore esterno (la stanza grande da su una strada molto trafficata).
Per quanto riguarda la cucina/soggiorno, io adoro cucinare e mi piacerebbe molto poter avere una cucina con penisola. Non sono sicuro sia possibile farla con gli spazi che ho a disposizione, accetto suggerimenti/domande o altre proposte. Posso farne a meno se inserirla distrugge il resto dell ambiente, ma mi piacerebbe molto averla. Nel soggiorno ho ovviamente bisogno di tavolo per mangiare e divano/tv.
Tutti i muri non sono portanti e possono essere abbattuti/spostati