
Frattamaggiore, NA, Italia
Commerciale - Co-Working
Descrizione
ENG:
The unit subject to renovation is located on the second floor of a commercial building (VEGA 58), with a net area of approximately 330 sqm, already served by a central staircase and common access.
The goal is to define an optimal layout for spaces intended for professional use and, partially, for third-party rentals (business center), including potential coworking areas.
Design Objectives
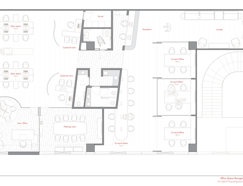
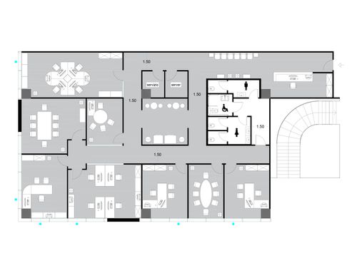
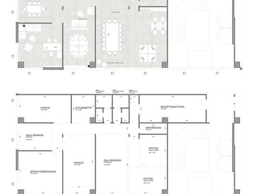
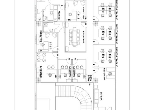
Tax and labor data processing center, consisting of:
8 workstations;
one executive office of approximately 30 sqm;
a meeting room of approximately 40 sqm (which can be shared with external users);
a reception area near the entrance (approximately 30 sqm).
Business center and offices for temporary rental or 6+6 lease agreements, to be created from the remaining space, while ensuring:
presence of natural light and windows;
autonomous or semi-autonomous access;
surfaces of 16–20 sqm each.
Optimization of blind (windowless) areas for:
server/IT room;
restrooms.
Dimensional and Technical Constraints
Surface: approximately 26.53 m x 13.90 m
Single entrance from central staircase
Some rooms lack natural light: these should be highlighted, with suitable proposed uses
Furniture Preferences
Workstations: double desks in open space (maximum 6 per room)
Support room, maximum 20 sqm, for client meetings by operational staff
Executive office with internal meeting table (4 seats)
Main meeting room: table for 8 people
Reception area with counter and client waiting area
Project Deliverables
Scaled floor plan (with functional labels)
Possible alternative layout for rental offices
Indication of square meters for each area
Project Target Users
Accountants, labor consultants, payroll specialists, independent professionals
External clients for infrequent appointments
SPA:
La unidad objeto de intervención se encuentra en la segunda planta de un edificio comercial (VEGA 58), con una superficie neta de aproximadamente 330 m², ya equipada con escalera central y acceso común.
El objetivo es definir una distribución óptima de los espacios destinados al uso profesional y, en parte, al alquiler a terceros (business center), sin excluir la posibilidad de coworking.
Objetivos del Proyecto
Centro de procesamiento de datos fiscales y laborales, compuesto por:
8 puestos de trabajo;
un despacho de dirección de aproximadamente 30 m²;
una sala de reuniones de aproximadamente 40 m² (compartible con externos);
una recepción cerca de la entrada (aproximadamente 30 m²).
Business center y oficinas para alquiler temporal o contrato 6+6, a distribuir en el espacio restante, garantizando:
presencia de luz natural y ventanas;
accesibilidad autónoma o semi-autónoma;
superficies de 16–20 m² cada una.
Optimización de espacios ciegos (sin ventanas) para:
sala de servidores / CPD;
servicios higiénicos.
Condicionantes Dimensionales y Técnicos
Superficie: aproximadamente 26,53 m x 13,90 m
Entrada única desde la escalera central
Algunos ambientes carecen de luz natural: deberán señalarse y proponerse usos adecuados
Preferencias de Mobiliario
Puestos operativos: escritorios dobles en open space (máximo 6 por sala)
Sala de apoyo, máximo 20 m², para atención a clientes por parte del personal operativo
Despacho de dirección con mesa de reuniones interna (4 plazas)
Sala de reuniones principal: mesa para 8 personas
Recepción con mostrador y zona de espera para clientes
Contenido del Proyecto
Plano a escala (con etiquetas de funciones)
Distribución alternativa propuesta de las oficinas en alquiler, si procede
Indicación de la superficie en m² de cada ambiente
Destinatarios del Proyecto
Contadores, asesores laborales, especialistas en nóminas, profesionales autónomos
Clientes externos para citas no frecuentes
ITA:
Contesto
L’unità oggetto dell’intervento si trova al secondo piano di un edificio commerciale (VEGA 58), con superficie netta di circa 330 mq, già servita da scala centrale e accesso comune.
L’obiettivo è definire una distribuzione ottimale degli ambienti destinati all’uso professionale e, parzialmente, all’affitto a terzi (business center), non escluso il coworking
Obiettivi progettuali
1. Centro elaborazione dati fiscale e del lavoro, composto da:
- 8 postazioni operative;
- una stanza direzionale da circa 30 mq;
- una sala riunioni da circa 40 mq (condivisibile con esterni);
- una reception in prossimità dell’ingresso (30 mq circa).
2. Business center e uffici in affitto temporaneo o contratto 6+6, da ricavare dal residuo spazio, compatibilmente con:
- presenza di luce naturale e finestre;
- accessibilità autonoma o semi-autonoma;
- superficie di 16–20 mq ciascuno.
3. Ottimizzazione spazi ciechi (senza finestra) per:
- sala server/CED,
- servizi igienici
Vincoli dimensionali e tecnici
- Superficie: 26,53 m x 13,90 m circa
- Ingresso unico da scala centrale
- Alcuni ambienti non dispongono di luce naturale: evidenziarli e proporne usi adeguati
Preferenze arredamento
- Postazioni operative: scrivanie doppie in open space (max 6 per sala)
- Stanza di appoggio, max 20 mq., per ricezione cliente da parte degli operativi
- Stanza direzionale con tavolo riunione interno (4 posti)
- Sala riunioni principale: tavolo per 8 persone
- Reception con bancone e attesa clienti
Cosa deve contenere il progetto
- Planimetria in scala (con etichette funzioni)
- Eventuale distribuzione alternativa degli uffici affitto
- Indicazione delle metrature per ciascun ambiente
Destinatari del progetto
- Commercialisti, consulenti del lavoro, addetti paghe, professionisti autonomi
- Clienti esterni per appuntamenti non frequenti.