
Verona, VR, Italia
Commerciale - B&B
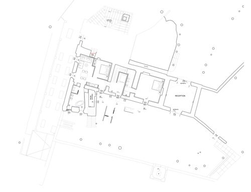
Descrizione
ENG:
The project involves the construction of a Bed and Breakfast inside a historic villa protected by the Italian Heritage Authority (Superintendency), consisting of two separate buildings.
The type of restriction does not allow any form of demolition but does allow the creation of internal partitions made exclusively with drywall and insulated plasterboard. The attached drawings clearly indicate the numbered rooms which will be subject to renovations. The perimeter walls must also be constructed with drywall and insulated plasterboard.
The internal layout must be designed according to the following guidelines: bathrooms with large showers, sink, and possibly, a separate WC and bidet area (even with a door within the bathroom itself). A sleeping area and a living area with a small kitchenette (possibly integrated within a cabinet) equipped with an induction hob, sink, refrigerator, and small pantry. The living area must be easily convertible into a sleeping area thanks to appropriate furnishing.
SPA:
El proyecto prevé la construcción de un Bed and Breakfast dentro de una villa histórica protegida por la Superintendencia de Patrimonio Italiano, compuesta por dos edificios separados.
El tipo de restricción no permite ninguna forma de demolición, pero sí autoriza la creación de tabiques interiores realizados exclusivamente con placas de yeso laminado y paneles de yeso aislados.
En los planos adjuntos se indican claramente las habitaciones numeradas que serán objeto de reforma.
Las paredes perimetrales también deberán construirse con placas de yeso laminado y paneles aislantes de yeso.
La distribución interior deberá diseñarse de acuerdo con las siguientes directrices:
Baños con duchas amplias, lavabo y, si es posible, una zona separada para el inodoro y el bidé (incluso mediante una puerta dentro del propio baño).
Una zona de dormitorio y una zona de estar con pequeña cocina (preferiblemente integrada en un mueble) equipada con placa de inducción, fregadero, frigorífico y pequeña despensa.
La zona de estar debe poder convertirse fácilmente en dormitorio gracias a un mobiliario adecuado.
ITA:
Il progetto prevede la realizzazione di un Bed and Breakfast all’interno di una villa storica tutelata dalla Soprintendenza ai Beni Culturali, composta da due edifici separati.
Il tipo di vincolo non consente alcuna forma di demolizione, ma permette la realizzazione di tramezzi interni realizzati esclusivamente in cartongesso e lastre di gesso rivestito isolate.
Nei disegni allegati sono chiaramente indicate le stanze numerate che saranno oggetto di intervento.
Anche le pareti perimetrali dovranno essere realizzate in cartongesso e pannelli isolanti in gesso rivestito.
La distribuzione interna dovrà essere progettata seguendo le seguenti linee guida:
Bagni con ampie docce, lavabo e, possibilmente, un’area separata per WC e bidet (anche tramite una porta interna al bagno stesso).
Una zona notte e una zona giorno con angolo cottura (preferibilmente integrato in un mobile) dotato di piano cottura a induzione, lavello, frigorifero e una piccola dispensa.
La zona giorno dovrà essere facilmente convertibile in zona notte grazie a un arredo appropriato.