Bagnolo Mella, Italy
engineer
Work experiences
Architect and 3d archiviz specialist
Valentina Turchetti
Dec 2006 / Sep 2016
Freelance: architecture planning, 3d modeling, rendering, archiviz specialist, graphic designer
Education
Laurea magistrale
Ingegneria Edile/Architettura Università degli Studi di Pavia
Dec 2006 / Sep 2016
Laurea magistrale in Ingegneria edile/architettura
Diploma
Liceo scientifico N. Copernico
Dec 2006 / Sep 2016
Maturità scientifica
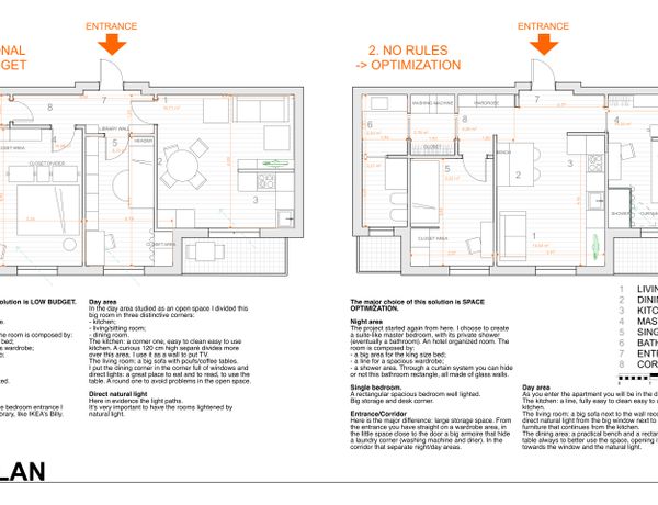
Skills