
Residential - House
Nadia Fucà
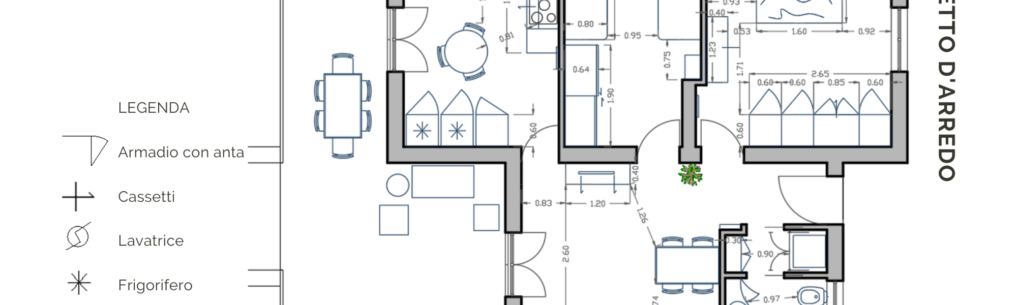
Il progetto prevede la ristrutturazione integrale del piano terra della villetta fronte mare, sita in Sicilia. Il progetto prevede la realizzazione, in un soggiorno, cucina separata due camere da letto e un bagno con antibagno.