Skip to content
🔥 CYBER MONDAY 24H: 60% off all prices! Only until midnight. Code CYBERMONDAY25 👉🏼
GET IT NOW
🔥 CYBER MONDAY 24H: 60% off all prices on the site! Only until midnight. Use code CYBERMONDAY25 👉🏼
GET IT NOW
How It Works
Projects
Designers
Prices
Courses
News
How It Works
Projects
Designers
Prices
Courses
News
Login
Login
IT
EN
IT
EN
Launch a project
home
/
browse designers
/
kendrick abdiel carrion espinal
Back to designers
kendrick abdiel carrion espinal
Huancayo, Perú
Member since: 24/07/2020
architect
Submissions
1
Placement
0
Contest
About
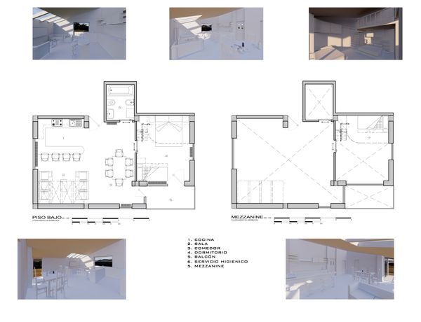
penthouse
5.6
How It Works
Projects
Designers
Prices
Courses
News
IT
EN
IT
EN
launch a project