Work experiences
Designer Progettista
ça ? oui !!! architecture - Lille - FRANCE
Sep 2010 / Jun 2018
Designer Progettista, dal rilievo al cantiere
Education
Licenza
Ecole d'architecture de lille FRANCIA
Sep 2010 / Jun 2018
Ecole nationale supérieure d'architecture et de paysage de Lille
Skills
Autocad
Sketchup
Autocad 3d
Photoshop
Illustrator
In Design
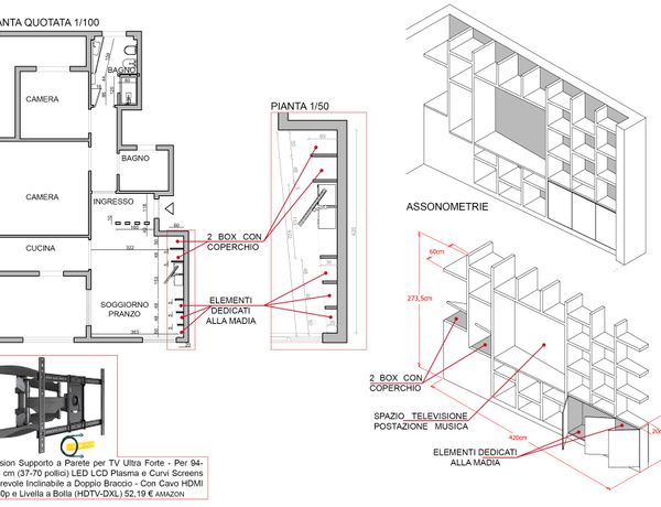
Interni
Ristrutturazioni