
Trieste, UTI Giuliana, Italia
Residential - Apartment
FERNANDO BALETTE
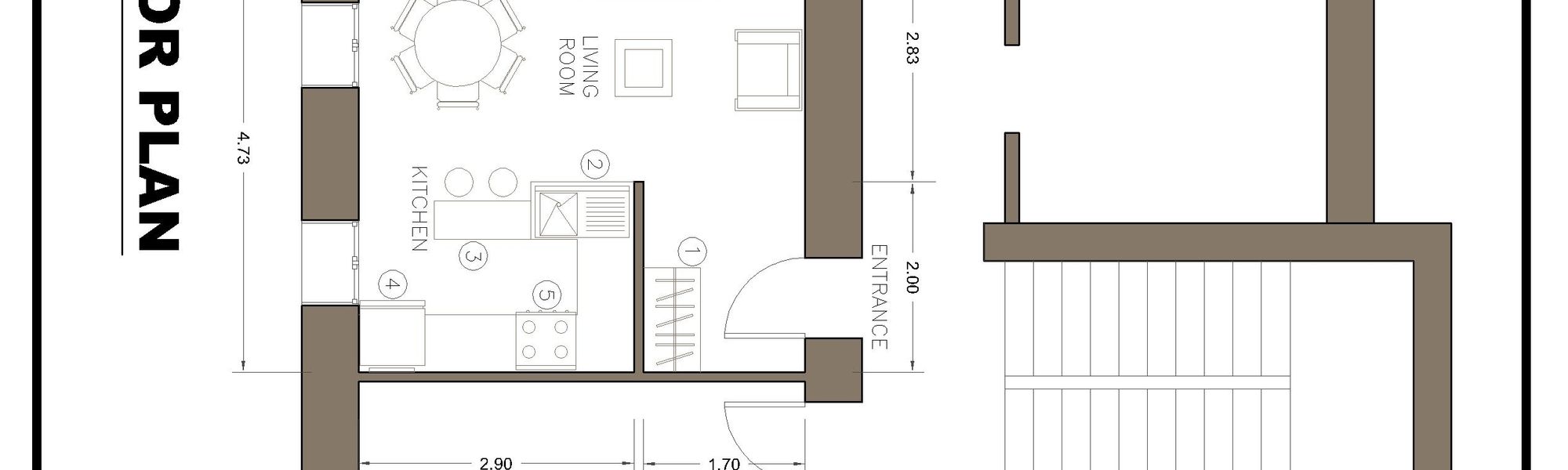
EL PROYECTO “VIA EDMONDO DE AMICIS” ES UN PISO PEQUEÑO, EN EL QUE SE HAN DISTRIBUIDO LOS SIGUIENTES ESPACIOS: UNA ENTRADA CON SU ARMARIO, UNA SALA CON SOFÁ Y SILLÓN, UNA MESA REDONDA PARA SEIS PERSONAS, UNA COCINA CON SU BARRA DE DESAYUNO, BAÑO CON LAVABO, ASEO, BIDET Y DUCHA, Y UN DORMITORIO CON SU VESTIDOR. EL DISEÑO EN GENERAL ES MINIMALISTA Y MODERNO, PERO AL MISMO TIEMPO sobrio y elegante. EN GENERAL SE UTILIZARON COLORES NEUTRO (GRIS, BLANCO Y NEGRO) CON ALGUNOS ACENTUOS EN LA MADERA, ASÍ COMO EL SUELO, QUE ES DEL TIPO PARQUET. LA DISTRIBUCIÓN DE LOS ESPACIOS OBEDEZCA LA NECESIDAD DE MANTENER UNA BUENA ILUMINACIÓN EN TODOS LOS ESPACIOS. SOLO EL BAÑO TENÍA QUE SACRIFICARSE Y PERMANECIÓ CIEGO (SIN VENTANAS), PARA PODER TENER VENTANAS EN LOS ESPACIOS MÁS IMPORTANTES.