
Merate, Provincia de Lecco, Italia
Residential - House
FERNANDO BALETTE
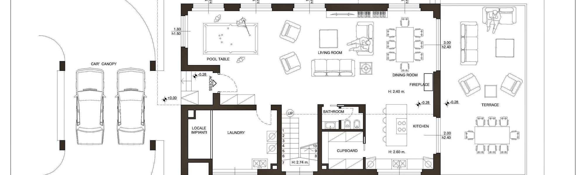
EL PROYECTO: “VILLA MODERNA CON CARÁCTER EN BRIANZA LUCIDA” FUE CREADO CON UN ESTILO MODERNO Y MINIMALISTA. LA DISTRIBUCIÓN DE PLANTA PROPUESTA POR EL CLIENTE FUE MANTENIDA EN TÉRMINOS GENERALES, SOLO SE MODIFICÓ EL TAMAÑO Y UBICACIÓN DE ALGUNAS VENTANAS PARA MEJORAR EL DISEÑO DE CADA UNA DE LAS FACHADAS. SE REALIZÓ LA RECUPERACIÓN DEL ÁTICO DE LA SEGUNDA PLANTA, MANTENIENDO UNA ALTURA MEDIA DE 2,40 METROS. EN GENERAL, EN LAS FACHADAS SE PROPONEN SUPERFICIES LISAS EN COLOR BLANCO Y ALGUNOS Acentos CON PIEDRA PORCELANA EN TONOS DE GRIS, PARA DARLE UN CARÁCTER MODERNO Y MINIMALISTA. SE PROPONE UNA ZONA PARA COCHES CUBIERTA CON PÉRGOLA FRENTE A LA ENTRADA DE LA CASA, PARA EVITAR QUE LAS PERSONAS SE MOJEN DE LA LLUVIA. EN LA CUBIERTA DEL LADO NORTE (AMBAS CAÍDAS) TENDRÁ PANELES FOTOVOLTAICOS. TODAS LAS BARANDILLAS, TANTO EN LAS TERRAZAS COMO EN LA ESCALERA, SERÁ FABRICADA EN ALUMINIO Y VIDRIO. TODAS LAS VENTANAS SERÁN REEMPLAZADAS POR VENTANAS DE PVC, CON PERSIANAS ARMADAS. EN EL SECTOR NORTE DE LA CASA SE ACEPTA LA PROPUESTA DEL CLIENTE DE TERRAZA TIPO INVERNADERO. Y EN LA PARTE INFERIOR Y EN EL CENTRO DEL TERRENO, SE DISEÑÓ UNA PISCINA CON YACUZI Y UNA SALA DE ESTAR.