
Fiumalbo, Provincia de Modena, Italia
Residential - House
FERNANDO BALETTE
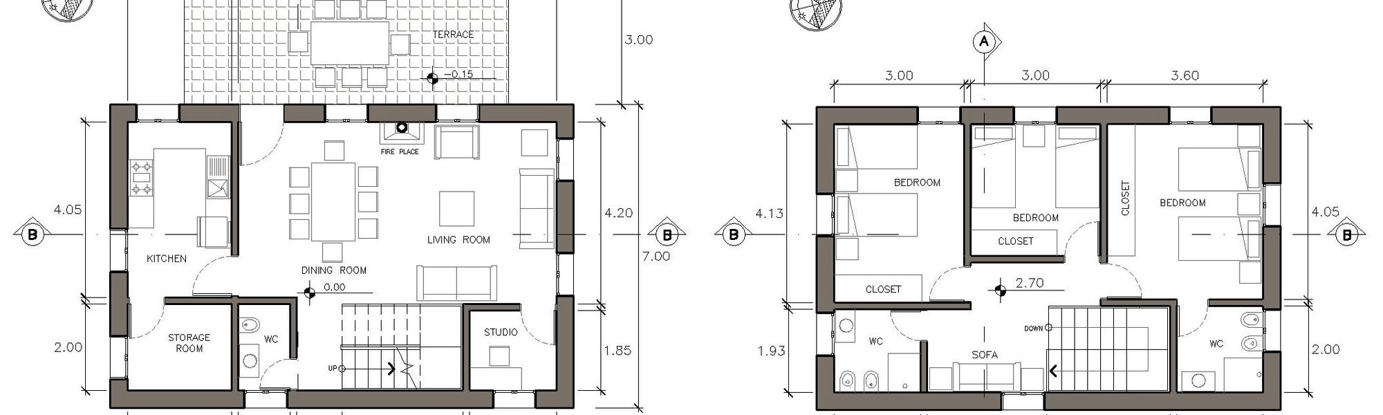
En este proyecto trato de preservar el concepto de cabaña celtica, en forma, estilo, tipo de material, etc. En la planta baja se encuentran los siguientes espacios: sala-comedor, cocina, estudio, baño y trastero. en la parte exterior se encuentra la terraza. En el primer piso se encuentran los siguientes espacios: una recámara principal con su baño, dos recámaras secundarias con su baño compartido y una pequeña área para un sofá. cada dormitorio con su placard. El acceso a la cabaña se encuentra por el lado oeste, a través de la terraza. Todos los espacios principales y la terraza están ubicados en el lado oeste, ya que es el lado con mayor vista al exterior. Los espacios secundarios como baños, estudio y trastero se ubican en el lado sur, que es el lado con menos vista. La escalera se ubicó en el centro y en el lado sur para facilitar la conexión con otros espacios. Los materiales utilizados son: muros exteriores de piedra, muros internos de paneles de madera, piso exterior de piedra laja, la estructura del techo de la terraza es de madera, el piso interior es de madera, tipo parquet, las puertas y ventanas son de madera. La escalera es de madera, la estructura del techo será de madera y la cubierta tipo pizarra. El estilo de las ventanas es de madera tipo cabaña celta, no muy grande (1.00 mts) las ventanas de la planta baja no están en línea con las del primer piso, ya que fueron diseñadas en esa época. El piso interior es de madera, tipo parquet, las puertas y ventanas son de madera. La escalera es de madera, la estructura del techo será de madera y la cubierta tipo pizarra. El estilo de las ventanas es de madera tipo cabaña celta, no muy grande (1.00 mts) las ventanas de la planta baja no están en línea con las del primer piso, ya que fueron diseñadas en esa época. El piso interior es de madera, tipo parquet, las puertas y ventanas son de madera. La escalera es de madera, la estructura del techo será de madera y la cubierta tipo pizarra. El estilo de las ventanas es de madera tipo cabaña celta, no muy grande (1.00 mts) las ventanas de la planta baja no están en línea con las del primer piso, ya que fueron diseñadas en esa época.