
Milan, Metropolitan City of Milan, Italy
Residential - Apartment
Briefing
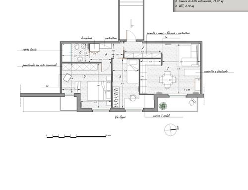
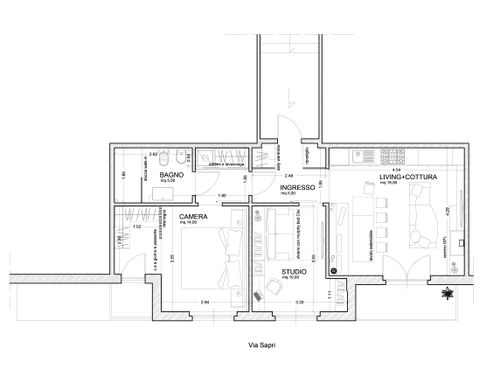
Sono un giovane professionista 30enne, neoacquirente di un bilocale di 69mq da ristrutturare e trasformare in un piccolo trilocale.
Ho necessità di creare una piccola stanza, al momento da utilizzare come studio/stanza ospiti ed in futuro come cameretta per un bimbo.
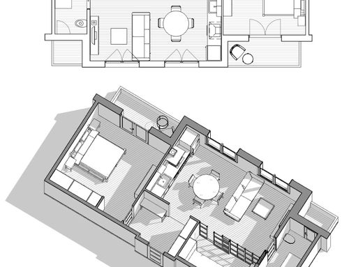
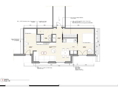
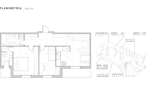
L'appartamento necessita di una ristrutturazione completa e l'obiettivo è personalizzare la casa rivedendo l'attuale organizzazione degli spazi in modo da creare:
una camera matrimoniale,
una piccola camera,
un soggiorno con angolo cottura
un bagno (anche cieco)
Il tutto attraverso un miglior utilizzo del corridoio.
Cerco una ristrutturazione intelligente, funzionale e lineare che ripensi in modo creativo gli spazi. Privilegio quindi un restyling che non sia troppo invasivo ed oneroso in termini di ristrutturazione, costi e modifica degli impianti.
Stile semplice, scandinavo, toni chiari, sul bianco, pavimento in ceramica "finto legno", con qualche tocco di personalizzazione come i mattoni a vista o elementi in cartongesso.
English
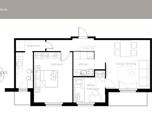
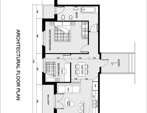
I am a young 30-year-old professional, new owner of a two-room apartment of 69sqm to be restored and transformed into a small three-room apartment.
I need to create a small room, currently used as a study / guest room and in the future as a bedroom for a child.
The apartment needs a complete renovation and the goal is to customize the house by reviewing the current organization of the spaces in order to create:
a double bedroom,
a small room,
a living room with a kitchenette
a bathroom (also blind)
All this through a better use of the corridor.
I look for an intelligent, functional and linear restructuring that thinks creatively about the spaces. Personally, I prefer a restyling that is not too invasive and burdensome in terms of restructuring, costs and modification of the plants.
Simple style, Scandinavian, light tones, on white, "faux wood" ceramic floor, with a touch of personalization such as exposed bricks or plasterboard elements.