
55045 Pietrasanta, Province of Lucca, Italy
Residential - Apartment
Briefing
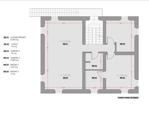
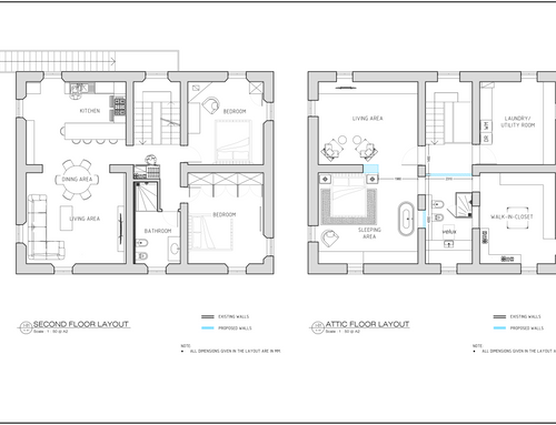
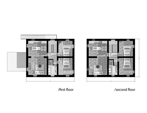
L’appartamento è composto a piano secondo oltre a piano sottotetto. L’unità immobiliare in oggetto è di vecchia costruzione con elementi architettonici in muratura in pietra oltre a solai con travicelli e mezzane. Mi piacerebbe un stile moderno che riprenda le caratteristiche architettoniche della casa.
The apartment is composed of a second floor as well as an attic. The real estate unit in question is of old construction with architectural elements in stone masonry as well as attics with beams and mezzanines. I would like a modern style that reflects the architectural characteristics of the house.
El apartamento consta de una segunda planta más una planta abuhardillada. La unidad inmobiliaria en cuestión es de construcción antigua con elementos arquitectónicos en mampostería de piedra así como áticos con vigas y ladrillos. Me gustaría un estilo moderno que refleje las características arquitectónicas de la casa.