Briefing
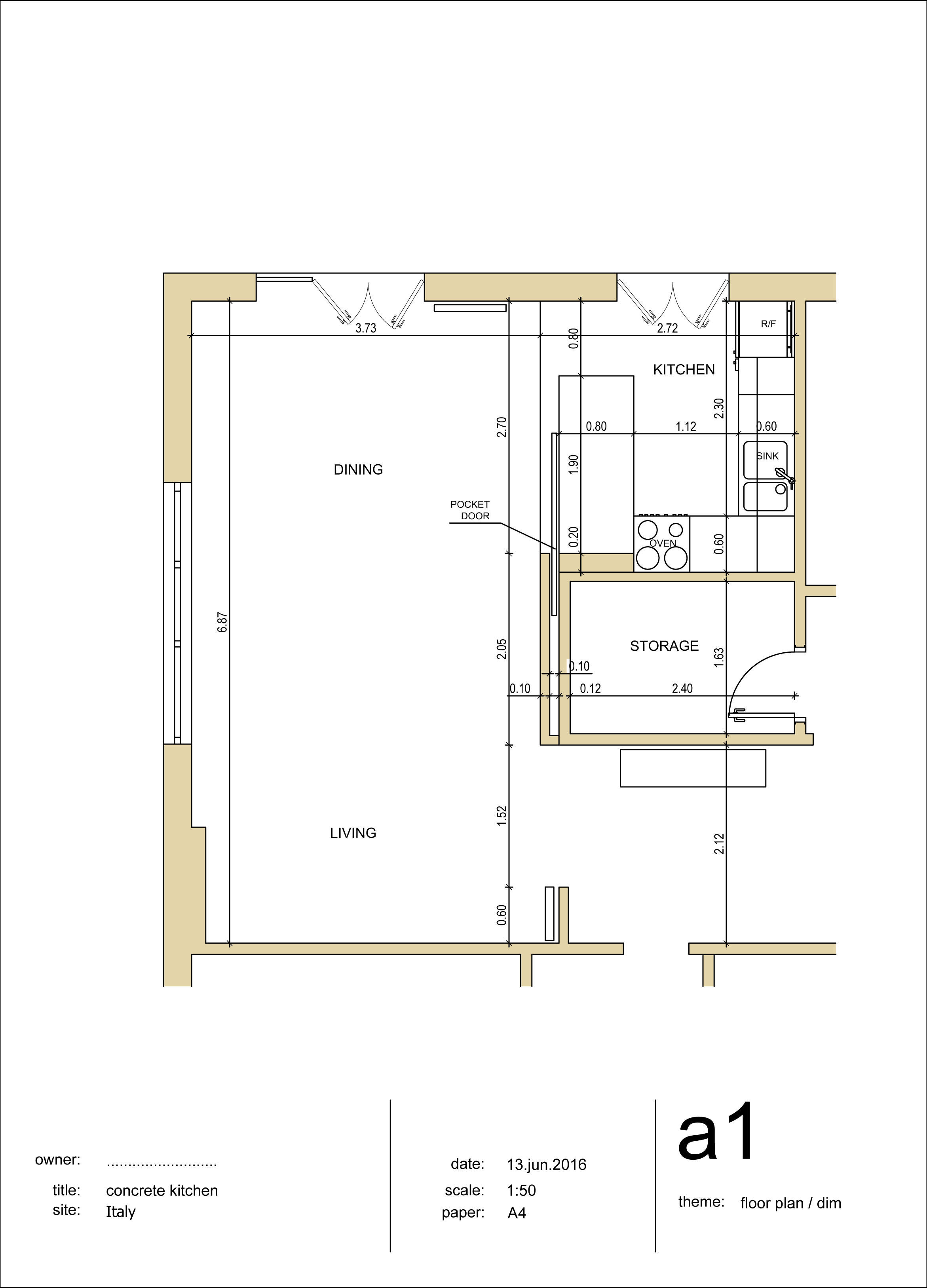
Attualmente la cucina è separata dalla sala ma abbiamo intenzione di ridurre la superficie della cucina per poterne ricavare una cabina armadio e cottura+isola che arriva a filo della sala.Per far ciò abbiamo pensato di aprire una porta nel primo disimpegno e di ricavare dalla cucina una cabina armadio di 2,40m x 1,60m circa.
Di conseguenza aprire totalmente o parzialmente la restante parete che divide la cucina dalla sala.La pavimentazione in marmo della sala va tenuta e smantellata totalmente quella della cucina.Ci piacerebbe un isola con 5 posti a sedere e piano cottura ad induzione sull'isola. Nella sala dobbiamo posizionare un tavolo 190x90.