
95038 Santa Maria di Licodia, Province of Catania, Italy
Residential - Living/Sleeping Area
Briefing
ENGLISH VERSION:
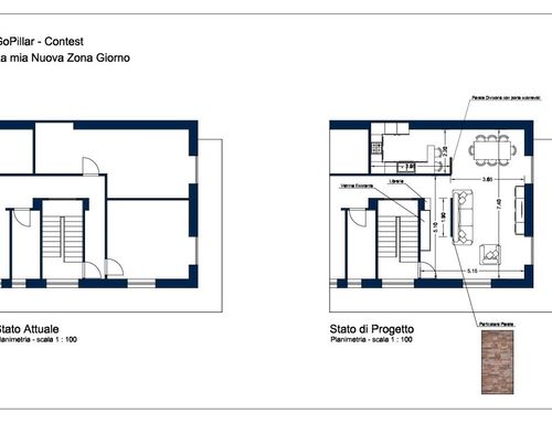
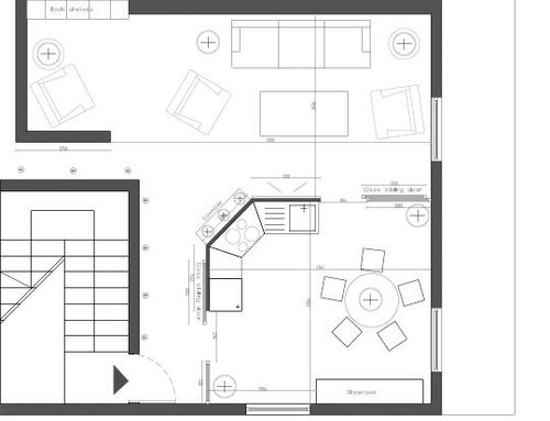
Hi I have to redesign my new living area, I would like to create a single environment but I need a kitchen that sometimes has to be able to close maybe with a sliding door. I would like to make the most of the spaces, I like a shabby style and I would like to keep the showcase measuring 2 meters as you can see in the photo. I would like to know where to put the kitchen that is no longer there, I await your ideas on how to best redistribute the space.
As for the plan, I inserted a piece of paper where the kitchen was present. The walls to be knocked down are the front and side walls of the kitchen to make a single room. I tell you that the kitchen measures 4x4.
SPANISH VERSION:
Hola, tengo que rediseñar mi nueva sala de estar, me gustaría crear un entorno único, pero necesito una cocina que a veces pueda cerrarse, quizás con una puerta corredera. Me gustaría aprovechar al máximo los espacios, me gusta un estilo desgastado y me gustaría mantener el escaparate de 2 metros como se puede ver en la foto. Me gustaría saber dónde colocar la cocina que ya no está allí, espero sus ideas sobre cómo redistribuir mejor el espacio.
En cuanto al plan, inserté un pedazo de papel donde estaba presente la cocina. Las paredes a derribar son las paredes frontales y laterales de la cocina para hacer una habitación individual. Te digo que la cocina mide 4x4.
ITALIAN VERSION:
Salve devo progettare la mia nuova zona giorno,vorrei creare un unico ambiente...però ho bisogno di una cucina che ha volte devo poter chiudere magari con una porta scorrevole. Vorrei sfruttare gli spazi al meglio, mi piace uno stile shabby e vorrei mantenere la vetrina che misura 2 metri come vedete in foto. Vorrei sapere dove mettere la cucina che attualmente non c'è più, attendo vostre idee su come ridistribuire al meglio lo spazio.
Per quanto riguarda la planimetria, ho inserito un pezzettino di carta dove era presente la cucina. Le pareti da abbattere sono quella frontale e laterale della cucina per fare un unico ambiente. Vi dico che la cucina misura 4x4.