
81100 Caserta, Province of Caserta, Italy
Residential - House
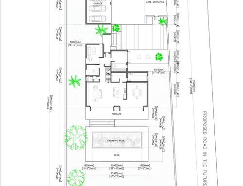
Briefing
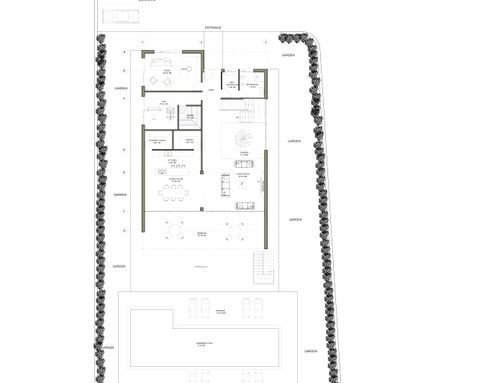
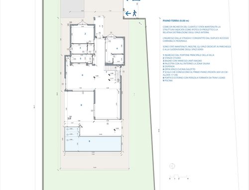
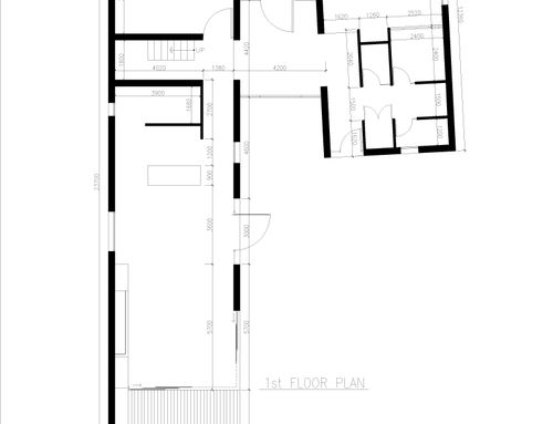
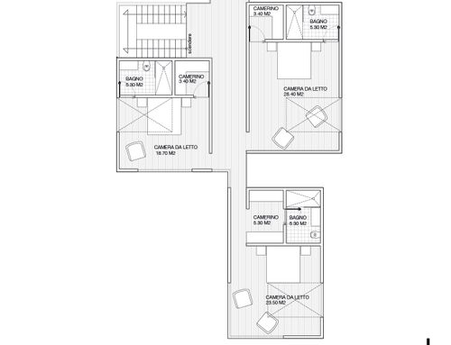
Vorrei costruire una villa singola su due livelli da 200mq cadauno, con scala interna, piano superiore 4 camere da letto con bagni ,piano inferiore vorrei una zona giorno open pranzo soggiorno ,uno studio, una palestra con sauna,mi piacerebbe uno stile moderno
I would like to build a single villa on two levels of 200sqm each, with internal staircase, upper floor 4 bedrooms with bathrooms, lower floor I would like an open living room, a study, a gym with sauna, I would like a modern style
Me gustaría construir una sola villa en dos niveles de 200m2 cada uno, con escalera interior, piso superior 4 habitaciones con baños, piso inferior Me gustaría una sala de estar abierta, un estudio, un gimnasio con sauna, quisiera un estilo moderno