
Rome, Metropolitan City of Rome, Italy
Residential - Living/Sleeping Area
Briefing
Buongiorno a tutti! Sono Francesca.
Io, mio marito e mio figlio ci trasferiremo a breve nella nostra nuova casa che stiamo ristrutturando. I lavori di ristrutturazione sono già iniziati sulla base di un progetto che un mio amico ci ha aiutato a fare. Ora però abbiamo bisogno di un qualcosa in più, di un aiuto che solo un professionista ci può dare. Avremmo bisogno di un progetto specifico per il nostro ingresso, il salone, la cucina e lo studio.
Ci piacciono le case con arredamenti moderni. Preferiamo i colori chiari, il bianco soprattutto. Il pavimento sarĂ in parquet rovere naturale in tutta la casa eccetto i bagni.
Ci piace anche la carta da parati e non escludiamo che una parete possa essere con la carta o di un colore diverso.
La cucina ci piacerebbe bianca e rovere con il tavolo sotto la finestra.
Tra il salone e la cucina vorremmo una bella porta in vetro.
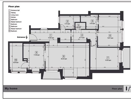
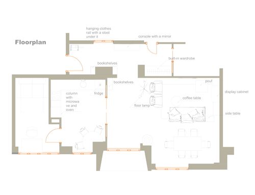
Nell'ingresso ci piacerebbero delle nicchie e una libreria. Ci sarà anche un armadio per i vestiti degli ospiti che ci vengono a trovare. La nicchia è già predisposta nel progetto. Allego la piantina dello stato attuale e alcune immagini di arredi che mi piacciono. La planimetria non la vorrei modificare. La disposizione degli arredi indicati nella planimetria allegata può essere cambiata come ritenete opportuno.
Ho inserito alcune foto: una è la vista dell’ingresso, l’altra è il salone e l’altra è l’entrata della cucina dove è stato montato lo scrigno per la porta a vetri.
Goodmorning everyone! I'm Francesca.
I, my husband and my son will soon move into our new house that we are renovating. The renovations have already begun on the basis of a project that a friend of mine has helped us to do. But now we need something more, a help that only a professional can give us. We would need a specific project for our entrance, the living room, the kitchen and the studio.
We like houses with modern furnishings. We prefer light colors, white above all. The floor will be natural oak parquet throughout the house except the bathrooms.
We also like wallpaper and do not exclude that one wall could be with paper or a different color.
We would like a kitchen white and oak with the table under the window.
We would like a beautiful glass door between the living room and the kitchen.
In the entrance we would like some niches and a bookcase. There will also be a wardrobe for the clothes of the guests who come to visit us. The niche is already prepared in the project. I enclose the map of the current state and some images of furniture that I like. I would not like to change the floor plan but obviously you can decide how to dispose the furinishing like you want in the project.
I attached some pictures: one is the view of the entrance, the other is the living room and the other is the entrance to the kitchen where will be the glass door.