
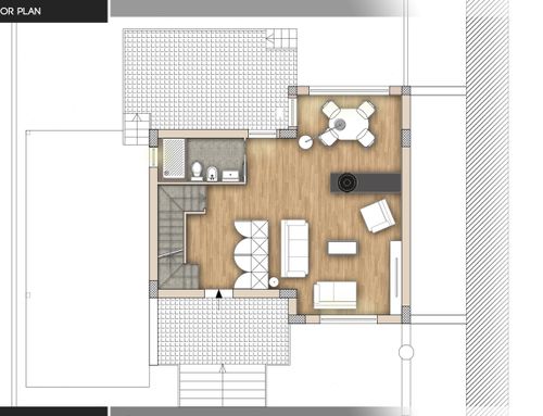
98057 Milazzo, Province of Messina, Italy
main-room - living-room
Briefing
l'idea è quella di creare un ambiente unico (soggiorno) luminoso, dai colori prettamente chiari (bianco e tortora in primis) cercando di ottenere una zona conversazione (possibilmente con divani frontali e qualche poltrona) e una zona con divano e tv con parete attrezzata. Eventuale inserimento di un camino (a etanolo o simili) con funzione principalmente estetica. Valorizzazione dell'ampia vetrata fissa (circa mt. 2,80) che dà sul giardino.   inserimento di piccolo armadio/guardaroba ove ritenuto più opportuno. Collocazione di specchio o altro avente funzione di ingresso posto fronte portone d'ingresso.  Valorizzazione della scala alla sinistra del portone d'ingresso, preferendo alla piu tradizionale ringhiera,  qualcosa in cristallo o misto cristallo e vetrine (sempre sul moderno)  che lasci trasparire in parte la scala stessa (vgs immagine indicativa). In merito alla scala che va al piano superiore, da tener conto che sotto di essa c'è altra scala che scende in cantina e che si vorrebbe chiudere con porta possibilmente in vetro.   in ultimo, per ciò che riguarda l 'illuminazione, lasciamo a voi la possibilità di proporne una tradizionale o in alternativa una perimetrale a soffitto, al fine di ottenere la migliore resa estetica in base al progetto da voi proposto.
A parziale rettifica di quanto indicato in piantina, preciso che in merito alla vetrata fissa che dà sul retro ho inserito in modo errato la misura dell'altezza (140)  e non ho specificato che vorrei lasciare circa 20 centimetri da terra. quindi, le misure sarebbero 280 centimetri di larghezza e 220 di altezza.