
Milan, Metropolitan City of Milan, Italy
Residential - Apartment
Briefing
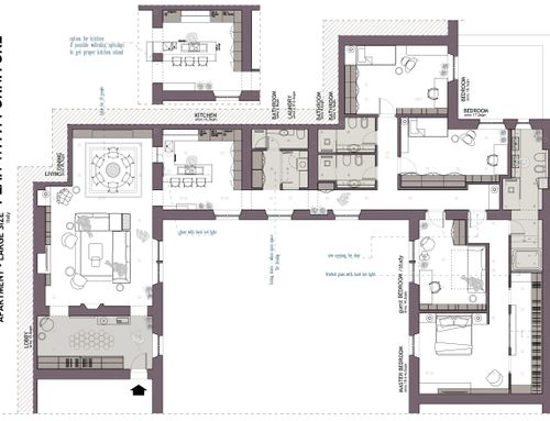
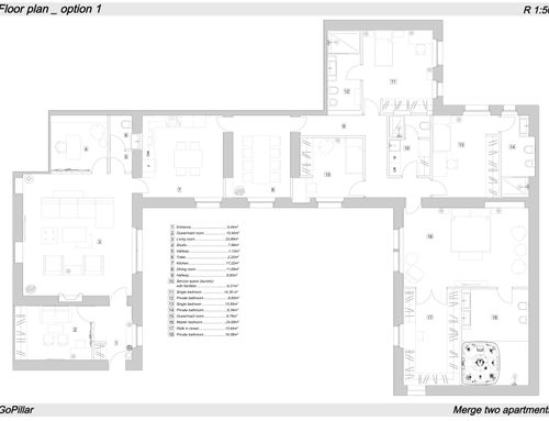
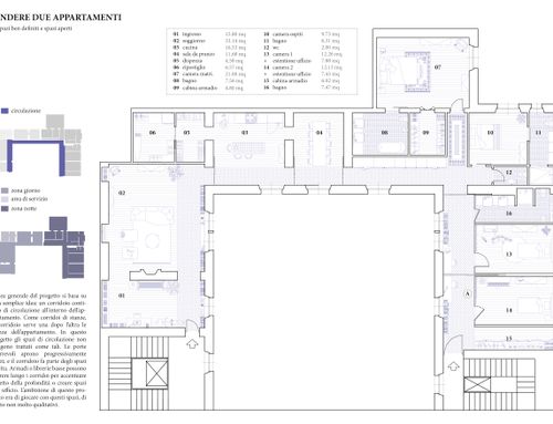
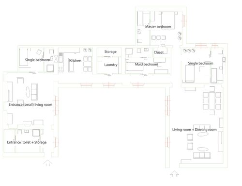
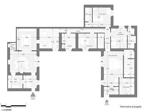
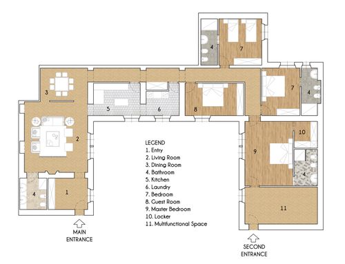
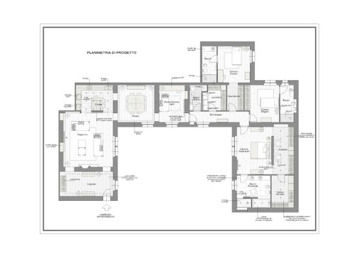
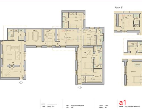
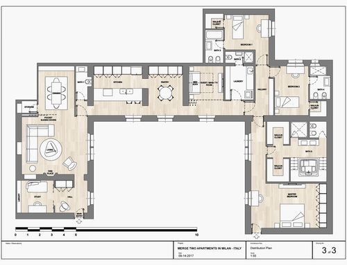
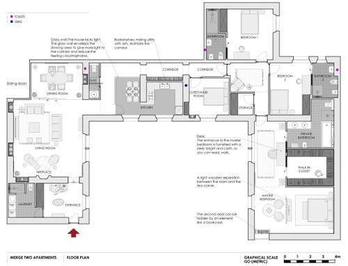
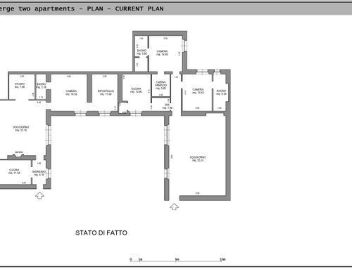
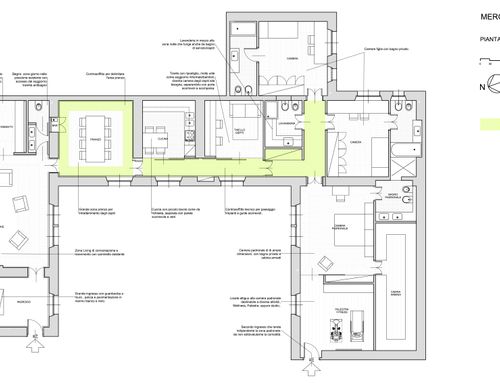
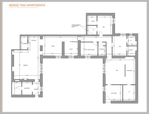
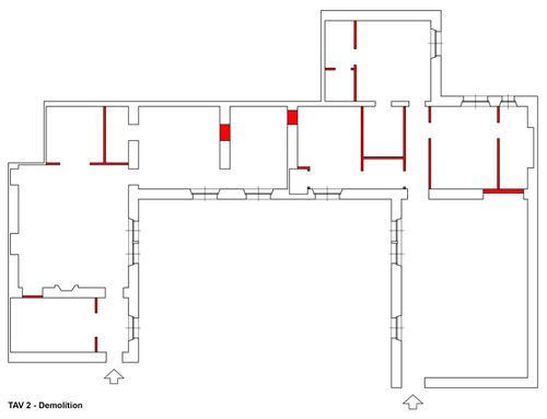
Merge two apartments with a difficult layout (both are L-shaped, so final apartment will be U-shaped!) to create a larger one with a large living, separate dining room, a nice entrance, a large kitchen, a master bedroom with walk-in closet and private bath, two single bedroom, both with a private bath, plus a guest/maid room and some service space (laundry). Main entrance will be from the left (current smaller apartment), and secondary entrance should be preserved somehow. Connection between the apartments is at the red arrow on floorplans, but new openings can be opened in the walls. The house is an old building (1896) in the center of Milan, with high ceiling (3.3mts) and big windows, however both apartments overlook the internal courtyard so outside light is a little scarce and should be preserved. Also, there's a fireplace in the current living room that should be kept.