
Pordenone, Province of Pordenone, Italy
Residential - Loft
Briefing
Who are we:
A 50-year-old couple (she is a business woman and he’s sales manager) an 11-year-old son with a passion for guitar.
We love having people over at our house for dinner, we love to travel, go sightseeing and relax!
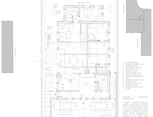
We come from an open-plan penthouse, being too small and outside to the city center; therefore after a year of research and lots of patience, we managed to find the ideal place for us, i.e. a former
fruits and vegetables warehouse, ready to be reinvented.
What we would like:
A functional, smart home where plant technology makes you feel good and save money.
Be attentive to the position of the building and its cardinal points when studying the layout of the rooms and large windows. The use of sunlight for the living-dining room is indeed very important for us.
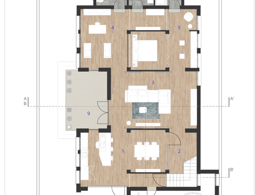
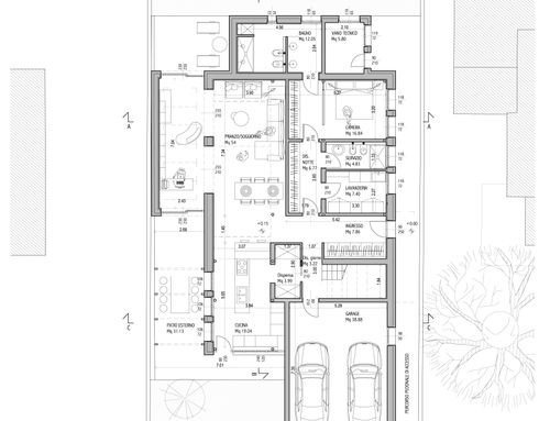
We love the mezzanine solution, but how? Where…..? The first floor will be reserved to our son, with a studio-bedroom apartment and a bathroom, while our sleeping area will be on the ground floor, with a bedroom, a dressing room and a bathroom (but not “rooms”, necessarily).
A living area with a glass-sliding door, opening to the west side-patio, an open space kitchen-dining area (or with folding glass doors, eventually) with hidden storage-cellar. The utility room with adjacent laundry.
We would also like to obtain a large study that can become a guest bedroom, when needed, with a bathroom that is normally used as a living area bathroom.
We would also like to recover the old partitions of the "office" area, by adapting them to an entry compass or kitchen partition.
We would like also 40-45 sq.m. garage, connected to the building, to hold two cars, one motorbike and 3 bicycles.
On behalf of the technician:
From an urban perspective, the current openings to the west and the east are defined as "lights" and not views. It is not possible to extend them to the ground unless you move them back, up to 10 meters, from the other windowed walls. As for the windows on the west side, it is sufficient to build a back porch (patio…), of a couple of meters. On the contrary, on the east side things are more complex, because the wall in front of the window is closer and therefore, it should be moved back too much.
On the west side it is possible to carry out an extension up to the border. On the south side, facing the road, it is possible to extend, up to 5 meters from the road.
_____________________________________________________________________________________________________
Chi siamo:
Una coppia 50enne (Lei imprenditrice nei servizi, Lui dirigente commerciale) con un figlio di 11 anni con la passione per la chitarra.
Amiamo organizzare cene in casa, amiamo viaggiare per visitare, curiosare e rilassarci!
Arriviamo da un attico open-space, ma troppo piccolo e fuori dal centro cittadino; per cui dopo un anno di ricerca e tanta pazienza siamo riusciti a trovare quello che fa per noi ovvero un ex deposito di ortofrutta da reinventare.
Quello che vorremmo:
Una casa funzionale, intelligente in cui la tecnologia degli impianti ti fa stare bene e risparmiare.
Attenzione alla posizione dell'immobile rispetto i punti cardinali per lo studio della disposizione dei locali e delle vetrate, infatti lo sfruttamento della luce solare per il living-pranzo sarà importante.
La soluzione del soppalco ci piace, ma come? Dove...? Il primo piano è riservato a nostro figlio, con studio camera e bagno mentre la nostra zona notte dovrà essere al piano terra, con camera, cabina armadio e bagno (non necessariamente “stanze”....).
La zona giorno con vetrata che apre nel patio esterno lato ovest, cucina-pranzo open (o da studiare con vetrata richiudibile) con dispensa-cantina a scomparsa. Il locale tecnico con lavanderia attigua.
Vorremmo ricavare inoltre un ampio studio che all'occorrenza possa diventare camera ospiti con il bagno che di norma viene utilizzato come bagno della zona giorno.
Ci piacerebbe inoltre recuperare i vecchi divisori della zona "ufficio" adattandoli ad una bussola d'ingresso o divisorio cucina.
Vorremmo un garage di 40-45 mq collegato direttamente all'edificio per contenere due auto una moto e le biciclette.
La parola del tecnico:
Le attuali aperture sui lati ovest ed est si configurano urbanisticamente come “luci” e non vedute. Non è possibile allargarle fino a terra se non arretrandole fino a 10 metri dalle altre pareti finestrate. Per quanto riguarda le finestre sul lato ovest, basterebbe creare un portico arretrato di circa un paio di metri. Per quanto riguarda il lato est invece è più problematico perché la parete finestrata antistante è più vicina e pertanto bisognerebbe arretrarsi troppo.
Sul lato ovest c'è la possibilità di realizzare un ampliamento fino a confine. Sul lato sud verso la strada c'è la possibilità di ampliare fino a 5 metri dalla strada.