Angri SA, Italy
Residential - Apartment
Briefing
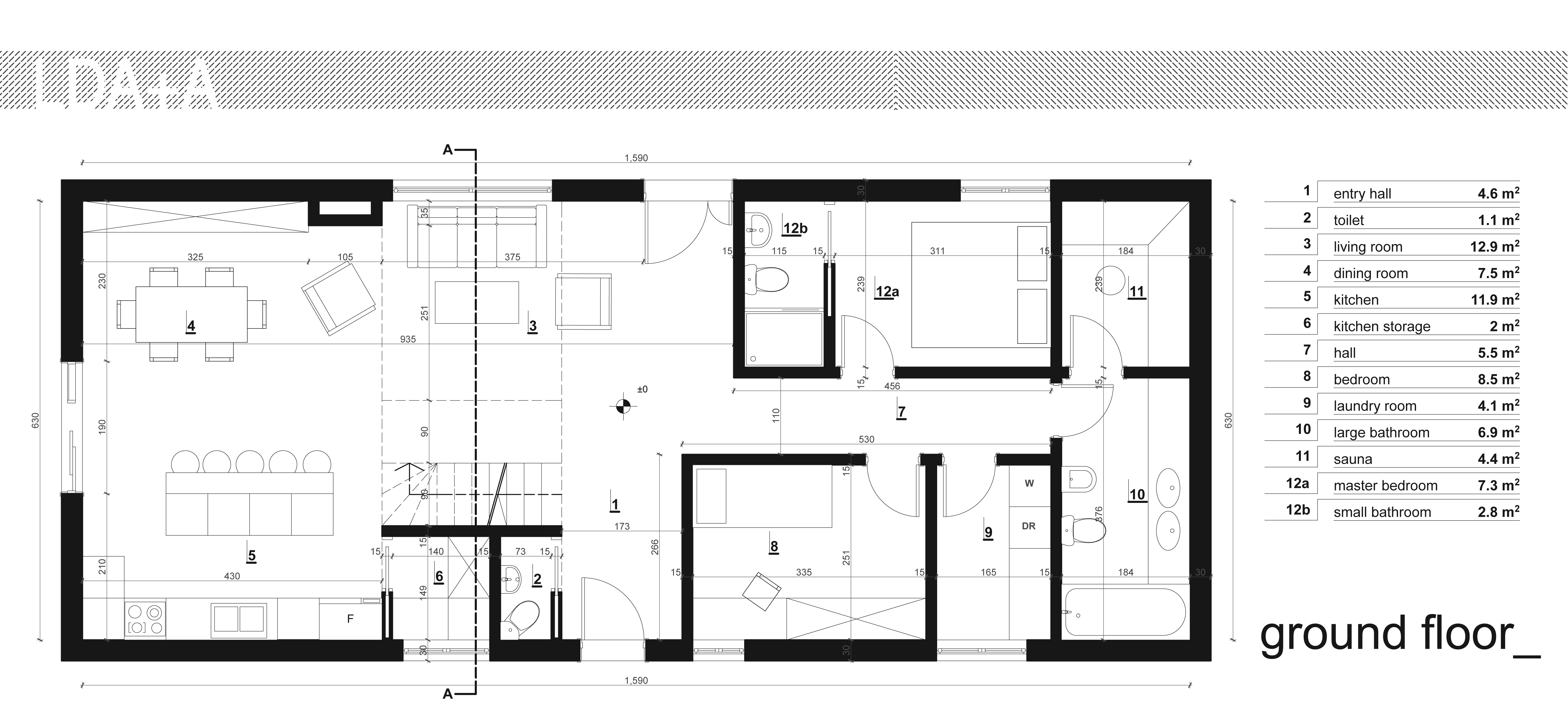
In allegato la piantina dell'appartamento,situato al piano terra.
L'ingresso è situato nella parte anteriore,a sinistra sul lato corto c'è il balcone gradirei inserire la cucina visto che c'è un piccolo giardino.
nella parte posteriore della casa(in pianta sarebbe la parte superiore)c'è una finestrone(la prima a sinistra)in quella zona c'è un pergolato.
il soffitto è alto 3,80 m.
Necessiterei di almeno 2 camere da letto,2 bagni(magari uno in camera),cucina,ripostiglio e lavanderia ed infine un bel camino.
Buon lavoro e che vinca il migliore
Silvia
P.S.
Se è possibile troviamo un posticino per una piccola sauna? ;)
Resources