
81100 Caserta, Province of Caserta, Italy
Commercial - Restaurant
Briefing
ENG:
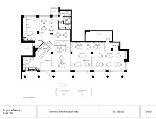
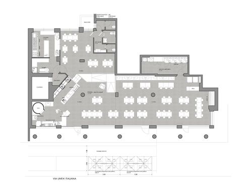
The existing pizzeria is in the process of being expanded. It must be reorganized without demolishing the existing part. We are interested in making the environment warmer, we are inclined towards small changes to internal divisions. Create equipped and floral walls for example. We are interested in making the place welcoming and warm (with colours).
SPA:
La pizzería existente está en proceso de ampliación. Hay que reorganizarlo sin demoler la parte existente. Nos interesa hacer el ambiente más cálido, nos inclinamos por pequeños cambios en las divisiones internas. Crea paredes equipadas y florales, por ejemplo. Nos interesa que el lugar sea acogedor y cálido (con colores).
ITA:
La pizzeria esistente è in procinto di essere ampliata. Deve essere riorganizzata senza effettuare demolizione della parte esistente. Ci interessa rendere l'ambiente più caldo, siamo propensi a piccole modifiche di divisioni interne. Creare delle pareti attrezzati e floreali per esempio. Ci interessa rendere il locale accogliente e caloroso (con i colori).