
San Francisco, CA, USA
Residential - living area
Briefing
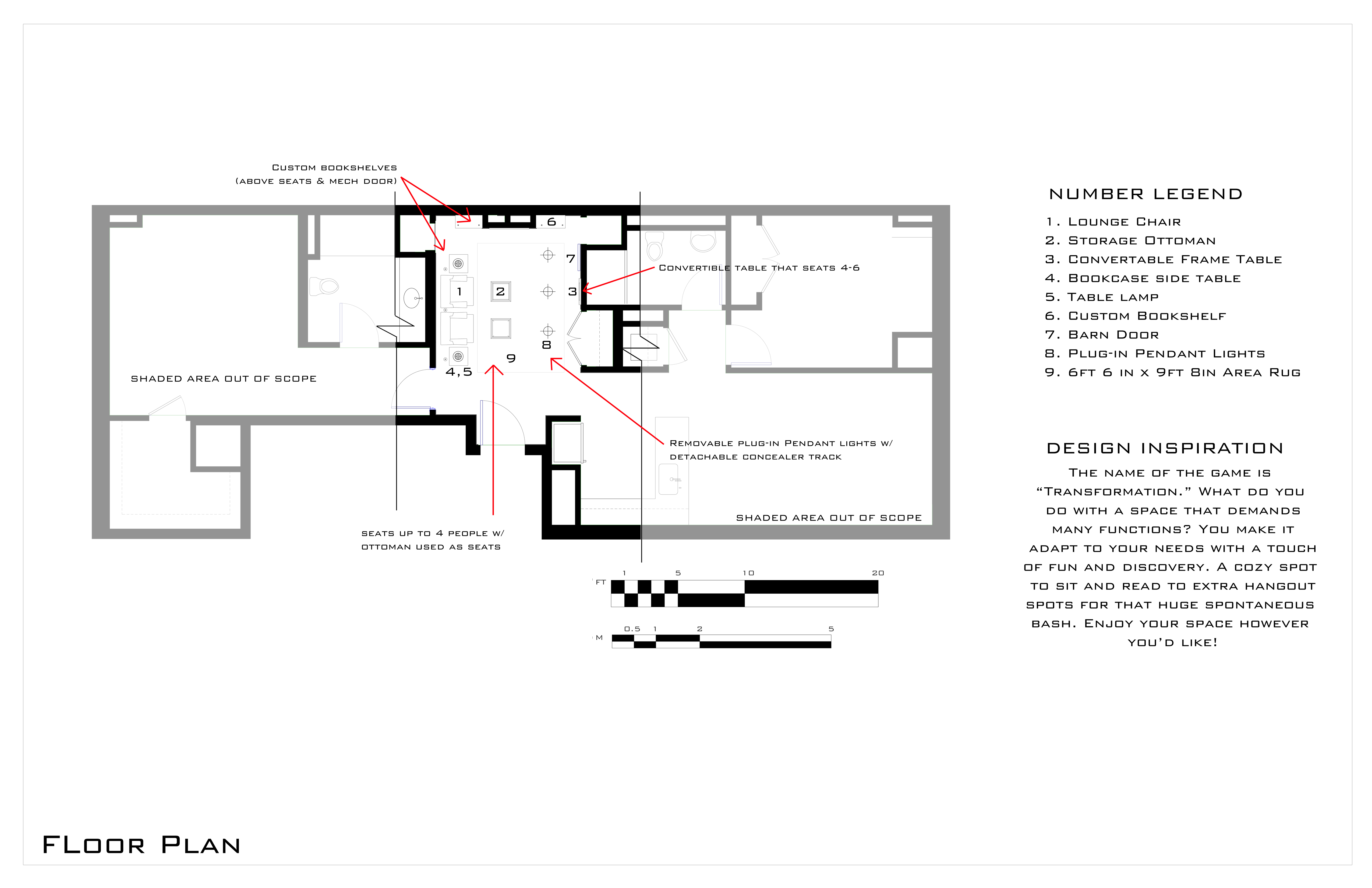
I live in a 2BRDM / 2BA luxury condo in San Francisco's soma district. Referencing the unit layout provided, this contest is specifically focused on the area denoted as "STUDY / OFFICE," and 'FOYER.' You will also notice that this room is the first room one effectively enters and sees when they enter the unit. Background: every unit in the development is afforded a "STUDY/OFFICE," area. My floor plan is somewhat unique (there are only three others like in a development of 650 units), and the placement of the room is unique. Hence, to me (and visitors) this is effectively an entryway that leads into a living area. Additionally, and in the context of the rest of the unit, it can also be seen as a transitional space: i.e. one turns right to enter the kitchen and the main living room (as well as access to the guest bedroom and bath); or turns left to enter the master bedroom and bath.
Aesthetically and conceptually, the objective is to pull people into the room and not be just transitional. Suggestions to make the room an office and dining room didn't seem right for the space nor me: 1) I wouldn't want the first impression of a visitor to be "oh, this is where you work," and/or, 2) I don't entertain/host a ton of dinner parties which means it would eventually turn into a working space one way or the other. I've attached some pictures of what I think would work in the space: a small library/study/reading room as well as a place to sit down and chat w/friends. Making the room inviting, comfortable/cozy, and interesting are all key. I've included both photos and clips of aesthetics that appeal to me as well as include a couple of pinterest links:
https://www.pinterest.com/simonnaldoza/shelves/
https://www.pinterest.com/simonnaldoza/ideas-for-the-house/
The room does come with it's challenges, namely: 
1. Space: it's 11'8" x 10'6" / 125.6 square feet
2. Closets: there are three closets (one coat, one storage, one HVAC) that take up usable space and potentially limits the amount of furniture that can fit in the space; 
3. Lighting: there is no source of natural light
4. HOA/CC&R restrictions: limited ability to drill into the concrete ceiling
Thoughts and ideas for wish list include: 
1. Is there a way to convert the doors for the HVAC (back left) and storage closet (back right) into pocket doors? This would increase the amount of usable space and potentially open the room up for . . . 
2. Centering the back outcrop (would require a small build out) and potentially open up the room to do built-in bookshelves
3. Some type of book shelving on the left wall (built-in preferred)
4. Lighting: are my only options floor-based? How would light boxes work in this room (assume 8' ceiling height). I'm confirming w/the HOA's architectural committee but we should keep this in mind for any ideas submitted.