
Naples, Metropolitan City of Naples, Italy
Residential - living area
Briefing
Hi dear designers,
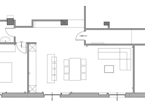
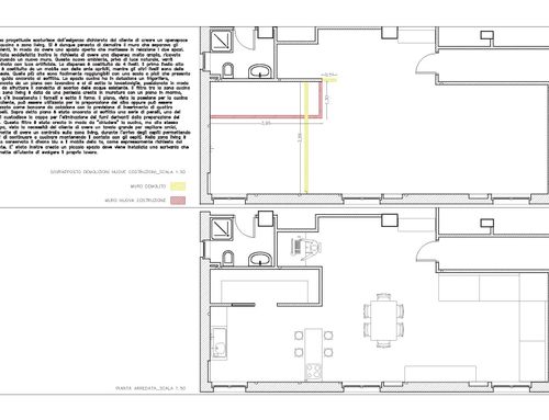
my house is getting old. It is a wide apartment with a big terrace, unfortunately the house is a bit dark because it is on the ground floor of a building. My first and foremost concern is to totally renovate the kitchen and connect it to the living area (I’d like to remove the partition wall here). I’d like a handmade kitchen, essential and simple, with high-tech instalments and appliances. I really like to cook. I’d also like to have a counter and some element (not a wall) that could partly divide the kitchen from the living. I need a big table to host many friends at dinner and also a small table in the kitchen where I could sit and work with some privacy. I’d like a pantry in masonry with a ladder with a trail to move it and with a good lighting.
I’d like the style to be informal, cosy and modern, without too much frills. I like warm colors, also dark ones but they have to be natural. I’d like the kitchen counters to be made of concrete or solid wood and resins. In the living area I’d like the parquet with wide planks, for the kitchen flooring something “cosy”. For the walls, I love wallpapers.
I’ve uploaded the photos of the pieces of furniture that I’d like to keep.
Thank you
-----------------------------------
ITA
La mia grande casa sta invecchiando.
Si tratta di un appartamento che affaccia su un grande terrazzo ma Ă© un Po buia perche si trova al piano terra di un palazzo.
Il mio primo desiderio e ristrutturare completamente la cucina e collegarla, abbattendo un muro, al grande salone.
Vorrei una cucina artigianale, semplice nelle forme e nei materiali ma molto tecnologica in impianti ed elettrodomestici.
Amo molto cucinare.
Mi piacerebbe avere un bancone ed un filtro parziale con la zona divano, vorrei un grande tavolo per mangiare con tanti amici ma anche un angolo in cucina dove sedermi a lavorare in disparte.
Fondamentale la dispensa in muratura con una scala a pioli spostabile su un corrente ed una buona illuminazione.
Immagino un ambiente informale, caldo e moderno, scevro da decorazioni e fronzoli ma definito dai colori caldi, pieni anche scuri ma naturali.
per la cucina preferirei un piano di lavoro in cemento o legno massello e resine.
per la zona soggiorno desidero il parquet a listoni grandi e per la cucina un pavimento cozy. allego le foto dell'arredamento da conservare.
per i rivestimenti amo la carta da parati.
l'altezza degli ambienti è di 292 cm