
Porto Garibaldi FE, Italy
Residential - Other
Briefing
In order to understand the place where the property is located and the type of tourist who visits it, I make a brief introduction.
We are located in a seaside resort in Emilia Romagna in the center, a few steps from the sea. A fishing village, called Porto Garibaldi, where history, culture and local traditions intrigue the tourist to visit it even in winter. During the summer season the place is animated by local dances with traditional gastronomy located in the streets of the place and overlooking the harbor where fishing boats moor together with tourist boats. Clearly, being in a beach resort, the main tourist part is given by the bathing establishments with their beaches.
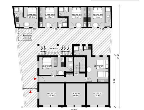
This residence, purchased by Mrs. Zerbini in 1970, was transformed into mini apartments on the ground floor and guest houses (with kitchenette) on the first floor. On the attic floor, which has been raised, 3 mini apartments have been built. Ms. Zerbini, now in her nineties, has decided to leave the business to her son who would like to redevelop it in order to continue in the business, being from the tourism sector.
Some problems to be solved in the design phase are:
- The ground floor units facing the street (first commercial space then transformed into a home) as they do not offer privacy to the houses and the large windows which give the appearance of staying in a shop;
- The first and second floors do not offer a lift to access them;
As for the services that must exist, within the individual units and in any case in the structure are:
- each home must have a kitchenette and its own bathroom;
- possibility of a warehouse / closet, in the structure, to store linen and products, to be able to clean the houses;
- an area to place some bicycles to be able to rent;
- a space (it can be assumed to recover the roof of the apartments on the back) for use as a terrace, in order to offer breakfasts - sunbathe - carry out collective dinners;
-
It is required to carry out the distribution of internal and external spaces and to create a rendering in order to be able to reward the winning project and deepen it in detail later.
For design ideas, it is also recommended to evaluate the following aspects:
A - on the ground floor to design commercial environments, to support the housing structure (physiotherapy, narrow food, self-service laundry, etc.) and use of an external audience;
B - Since the local administration authorizes the possibility of being able to demolish the building, in order to adapt it to the seismic regulations, it is proposed to evaluate the construction of a new building, maintaining the same shape by increasing the covered area in elevation for the main body only. The increase would be a further 180 square meters. In this case it would be interesting to use the roof surface of the building (being sea view) to create spaces for common use of the entire structure or of the individual housing units
SOME IMAGES OF THE PLACE
https://www.google.com/search?q=PORTO+GARIBALDI+TURISMO&client=safari&rls=en&source=lnms&tbm=isch&sa=X&ved=2ahUKEwiZ5vmH_s32AhVFgv0HHbVMAAUQ_AUoAXoECAIQAw&biw=1108&bih=751&dpr=1
ESPAÑOL
Para entender el lugar donde se encuentra el inmueble y el tipo de turista que lo visita, hago una breve introducción.
Estamos ubicados en un balneario en Emilia Romagna en el centro, a pocos pasos del mar. Un pueblo de pescadores, llamado Porto Garibaldi, donde la historia, la cultura y las tradiciones locales intrigan al turista para visitarlo incluso en invierno. Durante la temporada de verano el lugar es animado por bailes locales con gastronomía tradicional ubicados en las calles del lugar y con vista al puerto donde atracan barcos pesqueros junto a barcos turísticos. Claramente, al estar en un balneario, la parte turística principal la dan los establecimientos balnearios con sus playas.
Esta residencia, adquirida por la Sra. Zerbini en 1970, se transformó en mini apartamentos en la planta baja y casas de huéspedes (con cocineta) en el primer piso. En la planta ático, que se ha elevado, se han construido 3 miniapartamentos. La Sra. Zerbini, ahora en sus noventa años, ha decidido dejar el negocio a su hijo a quien le gustaría reconstruirlo para continuar en el negocio, siendo del sector turístico.
Algunos problemas a resolver en la fase de diseño son:
- Las unidades de planta baja que dan a la calle (primero local comercial y luego transformado en vivienda) ya que no ofrecen privacidad a las viviendas y los grandes ventanales que dan la apariencia de estar en un local comercial;
- El primer y segundo piso no ofrecen ascensor para acceder a ellos;
En cuanto a los servicios que deben existir, dentro de las unidades individuales y en todo caso en la estructura son:
- cada vivienda debe tener una pequeña cocina y su propio baño;
- posibilidad de un almacén / armario, en la estructura, para almacenar ropa y productos, para poder limpiar las casas;
- un área para colocar algunas bicicletas para poder alquilar;
- un espacio (se puede suponer recuperar el techo de los apartamentos en la parte trasera) para uso como terraza, para ofrecer desayunos - tomar el sol - realizar cenas colectivas;
Se requiere realizar la distribución de espacios internos y externos y realizar un render para poder premiar el proyecto ganador y profundizarlo en detalle posteriormente.
Para las ideas de diseño, también se recomienda evaluar los siguientes aspectos:
A - en la planta baja para el diseño de ambientes comerciales, para el apoyo de la estructura de la vivienda (fisioterapia, comida estrecha, autoservicio de lavandería, etc.) y el uso de un público externo;
B - Dado que la administración local autoriza la posibilidad de poder demoler el edificio, para adecuarlo a la normativa sísmica, se propone evaluar la construcción de un nuevo edificio, manteniendo la misma forma aumentando la superficie cubierta en alzado por el cuerpo principal solamente. El aumento sería de otros 180 metros cuadrados. En este caso sería interesante aprovechar la superficie de la cubierta del edificio (al ser vista al mar) para crear espacios de uso común de toda la estructura o de las viviendas individuales.
ALGUNAS IMÁGENES DEL LUGAR
https://www.google.com/search?q=PORTO+GARIBALDI+TURISMO&client=safari&rls=en&source=lnms&tbm=isch&sa=X&ved=2ahUKEwiZ5vmH_s32AhVFgv0HHbVMAAUQ_AUoAXoECAIQAw&biw=1108&bih=751&dpr=1
ITALIANO
Al fine di comprendere il luogo nel quale l’immobile si trova e il tipo di turista che lo frequenta faccio una breve introduzione.
Ci troviamo in una località balneare dell’Emilia Romagna in pieno centro a pochi passi dal mare. Un paese di pescatori, chiamato Porto Garibaldi, dove storia cultura e tradizioni locali, incuriosiscono il turista a frequentarlo anche in inverno. Durante la stagione estiva il luogo è animato da serate danzanti locali con gastronomia tradizionale situati tra le vie del luogo e affacciati sul porto dover ormeggiano barche da pesca insieme alle barche da turismo. Chiaramente, essendo in una località di spiaggia, la parte turistica principale è data dagli stabilimenti balneari con le sue spiagge.
Questo residenza, acquistata dalla Sig,ra Zerbini nel 1970, fu trasformata in mini appartamenti al piano terra e affittacamere (con angolo cottura) al piano primo. Al piano mansardato, il quale è stato oggetto di sopraelevazione sono stati realizzati 3 mini appartamenti. La Sig.ra Zerbini, ora novantenne, ha deciso di lasciare l’attività, al figlio il quale avrebbe piacere di riqualificarlo per poter continuare nell’attività, essendo del nel settore del turismo.
Alcuni problemi da risolvere in fase di progettazione sono:
- Le unità al piano terra affacciate sul fronte strada (prima locale commerciale poi trasformato in abitazione) in quanto non offrono privacy alle abitazioni e le grandi vetrate le quali danno la parvenza di soggiornare un negozio;
- Il piano primo e secondo non offre un ascensore per potervi accedere;
Per quanto riguarda i servizi che vi devono essere, all’interno delle singole unità e comunque nella struttura sono:
- ogni abitazione deve avere un angolo cottura e un proprio bagno;
- possibilità di un magazzino / ripostiglio, nella struttura, per stoccare la biancheria e i prodotti, per poter effettuare le pulizie delle abitazioni;
- una zona per collocare alcune biciclette per poter locare;
- uno spazio ( si può ipotizzare di recuperare il tetto degli appartamenti sul retro) per utilizzo come terrazzo, al fine di offrire le colazioni – prendere il sole – effettuare cene collettive;
Si richiede di realizzare la distribuzione degli spazi e interni ed esterne e di realizzare un rendering al fine di poter premiare il progetto vincitore e approfondirlo nei dettagli successivamente.
Per le idee progettuali, si consiglia anche di valutare i seguenti aspetti:
- al piano terra di progettare ambienti commerciali, a supporto della struttura abitativa (fisioterapia, strett food, lavanderia self service ecc..) ed utilizzo di un pubblico esterno;
- Poiché l’amministrazione locale, autorizza la possibilità di poter demolire il fabbricato, per poterlo adeguare alle normative sismiche, si propone di valutare la costruzione di un nuovo fabbricato, mantenendo la medesima sagoma incrementando la superficie coperta in elevazione per solo corpo principale. L’aumento sarebbe di ulteriori 180 mq. In questo caso sarebbe interessante, utilizzare la superficie a tetto del fabbricato (essendo vista mare) per realizzare spazi ad utilizzo comune dell’intera struttura o delle singole unità abitative
ALCUNE IMMAGINI DEL LUOGO
https://www.google.com/search?q=PORTO+GARIBALDI+TURISMO&client=safari&rls=en&source=lnms&tbm=isch&sa=X&ved=2ahUKEwiZ5vmH_s32AhVFgv0HHbVMAAUQ_AUoAXoECAIQAw&biw=1108&bih=751&dpr=1
PORTUGUÊS
Para entender o local onde o imóvel está localizado e o tipo de turista que o visita, faço uma breve introdução.
Estamos localizados em uma estância balnear em Emilia Romagna no centro, a poucos passos do mar. Uma vila de pescadores, chamada Porto Garibaldi, onde história, cultura e tradições locais intrigam o turista a visitá-la mesmo no inverno. Durante a temporada de verão o local é animado por danças locais com gastronomia tradicional localizadas nas ruas do local e com vista para o porto onde os barcos de pesca atracam junto com os barcos de turismo. Claramente, estando numa estância balnear, a principal parte turística é dada pelos estabelecimentos balneares com as suas praias.
Esta residência, adquirida pela Sra. Zerbini em 1970, foi transformada em mini-apartamentos no piso térreo e casas de hóspedes (com kitchenette) no primeiro andar. No sótão, que foi elevado, foram construídos 3 mini-apartamentos. A Sra. Zerbini, agora na casa dos noventa, decidiu deixar o negócio para o filho que gostaria de desenvolvê-lo para continuar no negócio, sendo do setor de turismo.
Alguns problemas a serem resolvidos na fase de projeto são:
- As unidades do rés-do-chão viradas para a rua (primeiro espaço comercial depois transformado em habitação) porque não oferecem privacidade às casas e as grandes montras que dão a impressão de estar numa loja;
- O primeiro e segundo andares não possuem elevador para acessá-los;
Quanto aos serviços que devem existir, dentro das unidades individuais e em qualquer caso na estrutura são:
- cada casa deve ter uma kitchenette e casa de banho própria;
- possibilidade de um armazém/armário, na estrutura, para guardar roupa e produtos, para poder limpar as casas;
- uma área para colocar algumas bicicletas para poder alugar;
- um espaço (pode-se presumir a recuperação do telhado dos apartamentos nas traseiras) para utilização como terraço, de forma a oferecer pequenos-almoços - apanhar sol - realizar jantares colectivos;
-
É necessário realizar a distribuição dos espaços internos e externos e criar uma renderização para poder premiar o projeto vencedor e aprofundá-lo em detalhes posteriormente.
Para ideias de design, também é recomendado avaliar os seguintes aspectos:
- no térreo para projetar ambientes comerciais, de apoio à estrutura habitacional (fisioterapia, alimentação estreita, lavanderia self-service, etc.) e utilização de um público externo;
- Dado que a administração local autoriza a possibilidade de demolição do edifício, de forma a adequá-lo às normas sísmicas, propõe-se avaliar a construção de um novo edifício, mantendo a mesma forma, aumentando a área coberta em elevação para apenas o corpo principal. O aumento seria de mais 180 metros quadrados. Neste caso seria interessante utilizar a superfície da cobertura do edifício (sendo vista para o mar) para criar espaços de uso comum de toda a estrutura ou das unidades habitacionais individuais
ALGUMAS IMAGENS DO LUGAR
https://www.google.com/search?q=PORTO+GARIBALDI+TURISMO&client=safari&rls=en&source=lnms&tbm=isch&sa=X&ved=2ahUKEwiZ5vmH_s32AhVFgv0HHbVMAAUQ_AUoAXoECAIQAw&biw=1108&bih=751&dpr=1