
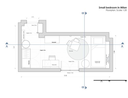
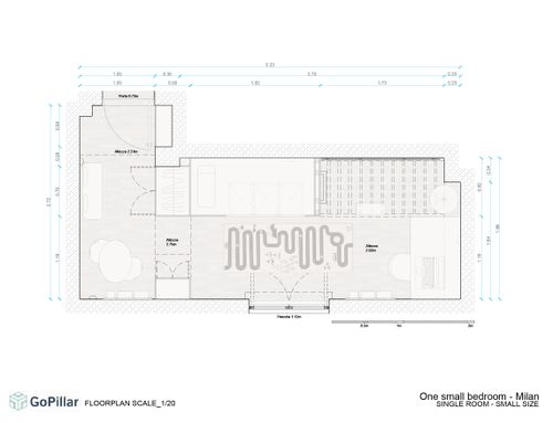
Milan, Metropolitan City of Milan, Italy
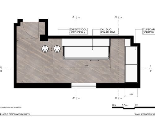
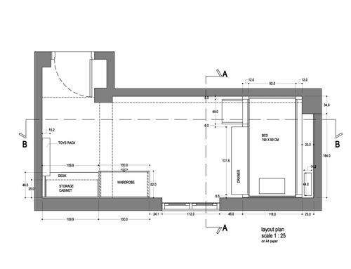
main-room - bedroom
Briefing
Design of the interior of a small bedroom for kids (currently 1 who is about 5 years old, but ready to host a 2nd kid). The furniture should include a desk and a section for hanging adult-sized clothes (h 2 mt) and it should take advantage of the whole height of the room (2.93mt). No shabby chic style. Max budget for furnitures is 4,000€