
23038 Valdidentro, Province of Sondrio, Italy
Residential - Sleaping Area
Briefing
La Baita si trova a 2000 di altitudine, circondata da prati e boschi; in posizione soleggiata per la maggior parte della giornata; la facciata a sud si affaccia sui prati mentre il lato nord è delineato da un sentiero all’interno del bosco. Per l’altitudine a cui si trova, per circa 6 mesi l’anno, è impossibile da raggiungere con mezzi a motore, causa neve, lungo il percorso e intorno alla baita.
Anche per questi motivi, si prevede riscaldamento a radiatori collegati a termocucina a legna giĂ esistente.
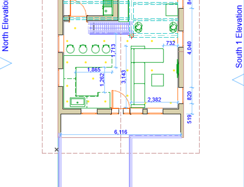
Sono vincolate le posizioni del WC per lo scarico, circa la posizione della termocucina per il camino in angolo la quale è comoda anche per cucinare..
Lo stile pensato per finiture è arredamento, è pertanto uno stile alpino, rustico con utilizzo di legno e pietra, da evitare finiture civili prediligendo ambientazione tipica di una casa di montagna a 2000 metri
Oggi i locali sono allo stato rustico, con pareti divisorie per il bagno e una struttura soppalco.
Il soppalco è pensato come zona letto, ma essendo molto basso, è previsto solo il posizionamento dei letti. Si dovrà installare una protezione dalla caduta fatta in struttura leggera e/o poco invadente.
Dalla soletta rustica tra impianti, massetto e pavimento ci sono 12 cm.
Le pareti verranno isolate termicamente come scritto sul disegno
Il fabbricato verrĂ utilizzato come abitazione estiva per dei week end con possibilitĂ di dormire 3 figli sopra e genitori in un divano letto nella zona salotto.
Si utilizzerĂ la casa saltuariamente anche per ritrovi con 20 persone circa
La zona nord è meno luminosa essendo il fabbricato in adiacenza al bosco.