
08299 Rellinars, Barcelona, Spain
Residential - Apartment
Briefing
Make the interior design project of my apartment according my style and requirements.
Attached pictures of my style and what I like, is for an appartment inisde a big countryside house where my family lives and they gave this appartment to me. So the farmhouse has 3 floors and they allowed me to live in the top one. It has an entrance from inside the main house and another from the terrace outside.
for sure it has to have:
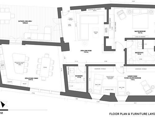
kitchen
salon and dinning room with fireplace
ensuite room for me and my partner.
room for the kids (twins are coming) that on the future can be divided in 2 rooms once they get older.
(any idea is welcomed we think they maybe want to have their own independent room once they get older but right now will be easier to manage both of them in the same one.)
Good distribution so there is No corridor or aisle or to reduce it,
separate sleeping areas than living areas (night/day zones)
good ideas are welcomed matching with our style
Mandatory Deliverables:
Detailed Floorplan in pdf & autocad with the design.